フロア詳細情報

東洋須田町(東京都千代田区神田須田町1丁目5番1号)のフロア情報

東洋須田町のビル詳細を見る
空室状況はお電話一本でスムーズにご案内!まずはお気軽に0120-939-204へどうぞ。
でお問い合わせ(無料メール 簡単1
※上記の写真は人物等が映っている場合、修正・加工が施されています。
物件情報更新日: 2025/11/13

東洋須田町の物件概要

ビル名
東洋須田町
物件番号/物件ID 7775
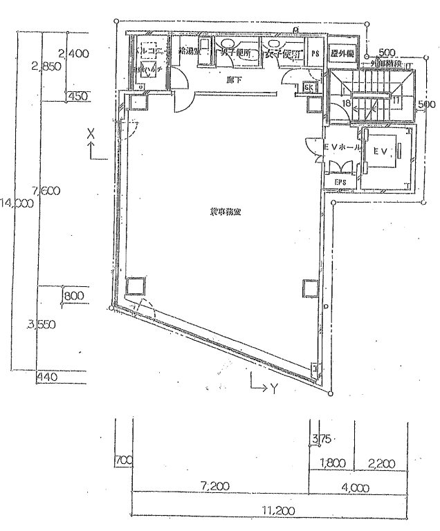
住所 東京都千代田区神田須田町1丁目5番1号 面積(平米) 101.71㎡
最寄り駅
【最寄り駅1】

都営地下鉄新宿線 小川町駅  徒歩3分

【最寄り駅2】

東京メトロ丸ノ内線 淡路町駅  徒歩3分

【最寄り駅3】

東京メトロ銀座線 神田駅  徒歩3分

【最寄り駅4】

JR京浜東北線 秋葉原駅  徒歩5分

坪数 30.77坪
実行面積
空調
竣工 1997年08月01日
構造 鉄骨地上9階建
エレベーター基数 1 荷物用エレベーター基数
階数 地上 4階 退去日 退去日の詳細につきましては、お問い合わせください。
備考
ビル名
東洋須田町
住所 7775
最寄り駅
【最寄り駅1】

都営地下鉄新宿線 小川町駅  徒歩3分

【最寄り駅2】

東京メトロ丸ノ内線 淡路町駅  徒歩3分

【最寄り駅3】

東京メトロ銀座線 神田駅  徒歩3分

【最寄り駅4】

JR京浜東北線 秋葉原駅  徒歩5分

エレベーター基数 1
階数 4階
物件番号/物件ID 7775
面積(平米) 101.71㎡
坪数 30.77坪
実行面積
空調
竣工 1997年08月01日
構造 鉄骨地上9階建
荷物用エレベーター基数
退去日 退去日の詳細につきましては、お問い合わせください。
備考

東洋須田町の募集価格

総額 坪単価
賃料 非公開 賃料 非公開
共益費 非公開 共益費 非公開
月額合計 非公開 月額合計 非公開
保証金/敷金 非公開 保証金/敷金 非公開
礼金 非公開 礼金 非公開
賃料条件補足事項 更新料・償却:記載なし要確認・契約年数5年
総額
賃料 非公開
共益費 非公開
月額合計 非公開
保証金/敷金 非公開
礼金 非公開
坪単価
賃料 非公開
共益費 非公開
月額合計 非公開
保証金/敷金 非公開
礼金 非公開
賃料条件補足事項 更新料・償却:記載なし要確認・契約年数5年
空室情報や物件見学などお気軽にお問い合わせください。
ESTATE AGENCY
株式会社エステートエージェンシー
定休日:日曜日・祝日 営業時間:09:00~19:00
でお問い合わせ(無料メール 簡単1 電話でお問い合わせ(無料)

東洋須田町の基本情報

インフォメーション
この東洋須田町ビルは住所東京都千代田区神田須田町1丁目5の1997年竣工、地上9階建の賃貸オフィスビルです。最寄駅は、都営地下鉄新宿線小川町駅徒歩2分のアクセス。設備情報は光回線。是非一度ご内覧下さいませ! その他、事務所、オフィス移転、不動産の事なら何でもお気軽にご相談下さい。
※貸主様からのご要望の為、条件を未公開としている場合がございます。詳しくお聞きになりたい場合は、弊社までご連絡ください。
※賃料、共益費、礼金、その他費用には別途消費税が掛かります。
※上記金額は募集条件です。条件交渉などについてはお気軽にお問い合わせください。
※確認時点での情報のため、リアルタイム情報はお問合せください。

東洋須田町の施設情報カテゴリ

1棟貸可能
駅直結
大型EV
大型駐車場
大通り沿い
傘いらず
貸会議室
空中店舗相談
ヴィンテージ・レトロ
シャワートイレ
セキュリティ
SOHO(住居兼事務所)
デザイナーズ・個性派
トイレ男女別
荷物EVあり
ハイグレードオフィス
ネット回線引込可
ビル内貸倉庫
免振・制振構造
有人警備
ランドマーク
リニューアル
フリースペース
レンタルオフィス
新耐震
駅近(出口
築浅
川沿い、公園沿い
自転車置場

自転車置場料金: ー 円

東洋須田町のアクセスマップ

空室情報や物件見学などお気軽にお問い合わせください。
ESTATE AGENCY
株式会社エステートエージェンシー
定休日:日曜日・祝日 営業時間:09:00~19:00
でお問い合わせ(無料メール 簡単1 電話でお問い合わせ(無料)