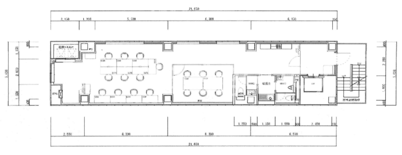
フロア詳細情報

TWG日本橋イーストⅡ(東京都中央区日本橋富沢町丁目なし10番11号)のフロア情報

空室状況はお電話一本でスムーズにご案内!まずはお気軽に0120-939-204へどうぞ。
でお問い合わせ(無料メール 簡単1
※上記の写真は人物等が映っている場合、修正・加工が施されています。
物件情報更新日: 2026/04/23

TWG日本橋イーストⅡの物件概要

ビル名
TWG日本橋イーストⅡ
物件番号/物件ID 8363
住所 東京都中央区日本橋富沢町丁目なし10番11号 面積(平米) 99.37㎡
最寄り駅
【最寄り駅1】

都営地下鉄新宿線 馬喰横山駅  徒歩3分

【最寄り駅2】

都営地下鉄浅草線 東日本橋駅  徒歩4分

【最寄り駅3】

都営地下鉄浅草線 人形町駅  徒歩5分

【最寄り駅4】

東京メトロ日比谷線 小伝馬町駅  徒歩5分

坪数 30.06坪
実行面積
空調 個別
竣工 2021年10月01日
構造 鉄骨地上10階建地下0階
エレベーター基数 1 荷物用エレベーター基数
階数 地上 6階 退去日 退去日の詳細につきましては、お問い合わせください。
備考
ビル名
TWG日本橋イーストⅡ
住所 8363
最寄り駅
【最寄り駅1】

都営地下鉄新宿線 馬喰横山駅  徒歩3分

【最寄り駅2】

都営地下鉄浅草線 東日本橋駅  徒歩4分

【最寄り駅3】

都営地下鉄浅草線 人形町駅  徒歩5分

【最寄り駅4】

東京メトロ日比谷線 小伝馬町駅  徒歩5分

エレベーター基数 1
階数 6階
物件番号/物件ID 8363
面積(平米) 99.37㎡
坪数 30.06坪
実行面積
空調 個別
竣工 2021年10月01日
構造 鉄骨地上10階建地下0階
荷物用エレベーター基数
退去日 退去日の詳細につきましては、お問い合わせください。
備考

TWG日本橋イーストⅡの募集価格

総額 坪単価
賃料 非公開 賃料 非公開
共益費 非公開 共益費 非公開
月額合計 非公開 月額合計 非公開
保証金/敷金 非公開 保証金/敷金 非公開
礼金 非公開 礼金 非公開
賃料条件補足事項 償却:無し・保証会社加入により敷金減額相談可
総額
賃料 非公開
共益費 非公開
月額合計 非公開
保証金/敷金 非公開
礼金 非公開
坪単価
賃料 非公開
共益費 非公開
月額合計 非公開
保証金/敷金 非公開
礼金 非公開
賃料条件補足事項 償却:無し・保証会社加入により敷金減額相談可

TWG日本橋イーストⅡのその他空室情報

階数 広さ 賃料合計(税別) 坪単価 保証金・敷金 礼金
9F 30.06坪 非公開 非公開 非公開 非公開
フロア詳細
フロア詳細
5F 30.06坪 非公開 非公開 非公開 非公開
フロア詳細
フロア詳細
空室情報や物件見学などお気軽にお問い合わせください。
ESTATE AGENCY
株式会社エステートエージェンシー
定休日:日曜日・祝日 営業時間:09:00~19:00
でお問い合わせ(無料メール 簡単1 電話でお問い合わせ(無料)

TWG日本橋イーストⅡの基本情報

インフォメーション
このLDB日本橋富沢町ビルは住所東京都中央区日本橋富沢町1丁目番11号の2021年竣工、地上10階建の賃貸オフィスビルです。最寄駅は、都営地下鉄新宿線馬喰横山駅徒歩3分のアクセス。設備情報はセキュリティ、トイレ男女別、24時間利用可能、光回線、保証会社加入義務あり、OAフロア、部屋セキュリティ。是非一度ご内覧下さいませ! その他、事務所、オフィス移転、不動産の事なら何でもお気軽にご相談下さい。
※貸主様からのご要望の為、条件を未公開としている場合がございます。詳しくお聞きになりたい場合は、弊社までご連絡ください。
※賃料、共益費、礼金、その他費用には別途消費税が掛かります。
※上記金額は募集条件です。条件交渉などについてはお気軽にお問い合わせください。
※確認時点での情報のため、リアルタイム情報はお問合せください。

TWG日本橋イーストⅡの施設情報カテゴリ

1棟貸可能
駅直結
大型EV
大型駐車場
大通り沿い
傘いらず
貸会議室
空中店舗相談
ヴィンテージ・レトロ
シャワートイレ
セキュリティ
SOHO(住居兼事務所)
デザイナーズ・個性派
トイレ男女別
荷物EVあり
ハイグレードオフィス
ネット回線引込可
ビル内貸倉庫
免振・制振構造
有人警備
ランドマーク
リニューアル
フリースペース
レンタルオフィス
新耐震
駅近(出口
築浅
川沿い、公園沿い
自転車置場

自転車置場料金: ー 円

TWG日本橋イーストⅡのアクセスマップ

空室情報や物件見学などお気軽にお問い合わせください。
ESTATE AGENCY
株式会社エステートエージェンシー
定休日:日曜日・祝日 営業時間:09:00~19:00
でお問い合わせ(無料メール 簡単1 電話でお問い合わせ(無料)

よく似た物件

最近チェックした物件