フロア詳細情報

神田美倉町(東京都千代田区神田美倉町丁目なし9番)のフロア情報

神田美倉町のビル詳細を見る
空室状況はお電話一本でスムーズにご案内!まずはお気軽に0120-939-204へどうぞ。
でお問い合わせ(無料メール 簡単1
※上記の写真は人物等が映っている場合、修正・加工が施されています。
物件情報更新日: 2025/12/04

神田美倉町の物件概要

ビル名
神田美倉町
物件番号/物件ID 20048
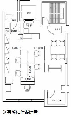
住所 東京都千代田区神田美倉町丁目なし9番 面積(平米) 41.65㎡
最寄り駅
【最寄り駅1】

JR総武本線 新日本橋駅  徒歩4分

【最寄り駅2】

東京メトロ日比谷線 小伝馬町駅  徒歩4分

【最寄り駅3】

JR山手線 神田駅  徒歩4分

【最寄り駅4】

東京メトロ銀座線 三越前駅  徒歩6分

坪数 12.60坪
実行面積
空調 個別
竣工 2006年03月01日
構造 鉄骨地上13階建地下0階
エレベーター基数 1 荷物用エレベーター基数
階数 地上 7階 退去日 退去日の詳細につきましては、お問い合わせください。
備考
ビル名
神田美倉町
住所 20048
最寄り駅
【最寄り駅1】

JR総武本線 新日本橋駅  徒歩4分

【最寄り駅2】

東京メトロ日比谷線 小伝馬町駅  徒歩4分

【最寄り駅3】

JR山手線 神田駅  徒歩4分

【最寄り駅4】

東京メトロ銀座線 三越前駅  徒歩6分

エレベーター基数 1
階数 7階
物件番号/物件ID 20048
面積(平米) 41.65㎡
坪数 12.60坪
実行面積
空調 個別
竣工 2006年03月01日
構造 鉄骨地上13階建地下0階
荷物用エレベーター基数
退去日 退去日の詳細につきましては、お問い合わせください。
備考

神田美倉町の募集価格

総額 坪単価
賃料 200,000円 賃料 15,874円
共益費 32,000円 共益費 2,540円
月額合計 232,000円 月額合計 18,414円
保証金/敷金 800,000円 保証金/敷金 63,493円
礼金 0円 礼金 0円
賃料条件補足事項
総額
賃料 200,000円
共益費 32,000円
月額合計 232,000円
保証金/敷金 800,000円
礼金 0円
坪単価
賃料 15,874円
共益費 2,540円
月額合計 18,414円
保証金/敷金 63,493円
礼金 0円
賃料条件補足事項
空室情報や物件見学などお気軽にお問い合わせください。
ESTATE AGENCY
株式会社エステートエージェンシー
定休日:日曜日・祝日 営業時間:09:00~19:00
でお問い合わせ(無料メール 簡単1 電話でお問い合わせ(無料)

神田美倉町の基本情報

インフォメーション
神田美倉町ビルは神田エリアの基準階 約12坪のワンフロアワンテナントのオフィスビルです。 エントランスにオートロックがあり、エレベーター不停止機能も付帯しておりセキュリティ性を高めております。 貸室内はエレベーター出てすぐから部屋内になっており、 東側の窓が天地窓になっていることもあり目の前の首都高速より上のフロアは眺望・採光も良いビルです。
※貸主様からのご要望の為、条件を未公開としている場合がございます。詳しくお聞きになりたい場合は、弊社までご連絡ください。
※賃料、共益費、礼金、その他費用には別途消費税が掛かります。
※上記金額は募集条件です。条件交渉などについてはお気軽にお問い合わせください。
※確認時点での情報のため、リアルタイム情報はお問合せください。

神田美倉町の施設情報カテゴリ

1棟貸可能
駅直結
大型EV
大型駐車場
大通り沿い
傘いらず
貸会議室
空中店舗相談
ヴィンテージ・レトロ
シャワートイレ
セキュリティ
SOHO(住居兼事務所)
デザイナーズ・個性派
トイレ男女別
荷物EVあり
ハイグレードオフィス
ネット回線引込可
ビル内貸倉庫
免振・制振構造
有人警備
ランドマーク
リニューアル
フリースペース
レンタルオフィス
新耐震
駅近(出口
築浅
川沿い、公園沿い
自転車置場

自転車置場料金: ー 円

神田美倉町のアクセスマップ

空室情報や物件見学などお気軽にお問い合わせください。
ESTATE AGENCY
株式会社エステートエージェンシー
定休日:日曜日・祝日 営業時間:09:00~19:00
でお問い合わせ(無料メール 簡単1 電話でお問い合わせ(無料)