フロア詳細情報

安和宝町(東京都中央区八丁堀4丁目1番3号)のフロア情報

安和宝町のビル詳細を見る
空室状況はお電話一本でスムーズにご案内!まずはお気軽に0120-939-204へどうぞ。
でお問い合わせ(無料メール 簡単1
※上記の写真は人物等が映っている場合、修正・加工が施されています。
物件情報更新日: 2026/03/01

安和宝町の物件概要

ビル名
安和宝町
物件番号/物件ID 2112
住所 東京都中央区八丁堀4丁目1番3号 面積(平米) 12.99㎡
最寄り駅
【最寄り駅1】

都営地下鉄浅草線 宝町駅  徒歩2分

【最寄り駅2】

東京メトロ日比谷線 八丁堀駅  徒歩5分

【最寄り駅3】

東京メトロ銀座線 京橋駅  徒歩5分

【最寄り駅4】

東京メトロ有楽町線 新富町駅  徒歩6分

坪数 3.93坪
実行面積 100.00%
空調 個別
竣工 1970年03月01日
構造 SRC地上6階建地下0階
エレベーター基数 1 荷物用エレベーター基数
階数 地上 6階 退去日 退去日の詳細につきましては、お問い合わせください。
備考 共用部リニューアル(2016)
EV改修(2020/4)
ビル名
安和宝町
住所 2112
最寄り駅
【最寄り駅1】

都営地下鉄浅草線 宝町駅  徒歩2分

【最寄り駅2】

東京メトロ日比谷線 八丁堀駅  徒歩5分

【最寄り駅3】

東京メトロ銀座線 京橋駅  徒歩5分

【最寄り駅4】

東京メトロ有楽町線 新富町駅  徒歩6分

エレベーター基数 1
階数 6階
物件番号/物件ID 2112
面積(平米) 12.99㎡
坪数 3.93坪
実行面積 100.00%
空調 個別
竣工 1970年03月01日
構造 SRC地上6階建地下0階
荷物用エレベーター基数
退去日 退去日の詳細につきましては、お問い合わせください。
備考 共用部リニューアル(2016)
EV改修(2020/4)

安和宝町の募集価格

総額 坪単価
賃料 非公開 賃料 非公開
共益費 非公開 共益費 非公開
月額合計 非公開 月額合計 非公開
保証金/敷金 非公開 保証金/敷金 非公開
礼金 非公開 礼金 非公開
賃料条件補足事項 償却無、更新料:新賃料1ヶ月
総額
賃料 非公開
共益費 非公開
月額合計 非公開
保証金/敷金 非公開
礼金 非公開
坪単価
賃料 非公開
共益費 非公開
月額合計 非公開
保証金/敷金 非公開
礼金 非公開
賃料条件補足事項 償却無、更新料:新賃料1ヶ月

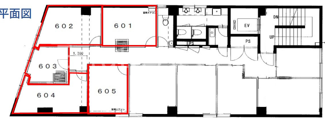
安和宝町のその他空室情報

階数 広さ 賃料合計(税別) 坪単価 保証金・敷金 礼金
6F 4.23坪 非公開 非公開 非公開 非公開
フロア詳細
フロア詳細
6F 2.72坪 非公開 非公開 非公開 非公開
フロア詳細
フロア詳細
6F 3.63坪 非公開 非公開 非公開 非公開
フロア詳細
フロア詳細
空室情報や物件見学などお気軽にお問い合わせください。
ESTATE AGENCY
株式会社エステートエージェンシー
定休日:日曜日・祝日 営業時間:09:00~19:00
でお問い合わせ(無料メール 簡単1 電話でお問い合わせ(無料)
※貸主様からのご要望の為、条件を未公開としている場合がございます。詳しくお聞きになりたい場合は、弊社までご連絡ください。
※賃料、共益費、礼金、その他費用には別途消費税が掛かります。
※上記金額は募集条件です。条件交渉などについてはお気軽にお問い合わせください。
※確認時点での情報のため、リアルタイム情報はお問合せください。

安和宝町の施設情報カテゴリ

1棟貸可能
駅直結
大型EV
大型駐車場
大通り沿い
傘いらず
貸会議室
空中店舗相談
ヴィンテージ・レトロ
シャワートイレ
セキュリティ
SOHO(住居兼事務所)
デザイナーズ・個性派
トイレ男女別
荷物EVあり
ハイグレードオフィス
ネット回線引込可
ビル内貸倉庫
免振・制振構造
有人警備
ランドマーク
リニューアル
フリースペース
レンタルオフィス
新耐震
駅近(出口
築浅
川沿い、公園沿い
自転車置場

自転車置場料金: ー 円

安和宝町のアクセスマップ

空室情報や物件見学などお気軽にお問い合わせください。
ESTATE AGENCY
株式会社エステートエージェンシー
定休日:日曜日・祝日 営業時間:09:00~19:00
でお問い合わせ(無料メール 簡単1 電話でお問い合わせ(無料)