フロア詳細情報

東プレ(東京都千代田区五番町丁目なし4番2)のフロア情報

東プレのビル詳細を見る
空室状況はお電話一本でスムーズにご案内!まずはお気軽に0120-939-204へどうぞ。
でお問い合わせ(無料メール 簡単1
※上記の写真は人物等が映っている場合、修正・加工が施されています。
物件情報更新日: 2025/12/18

東プレの物件概要

ビル名
東プレ
物件番号/物件ID 21762
住所 東京都千代田区五番町丁目なし4番2 面積(平米) 188.42㎡
最寄り駅
【最寄り駅1】

JR中央・総武線 市ケ谷駅  徒歩1分

【最寄り駅2】

東京メトロ有楽町線 市ケ谷駅  徒歩2分

【最寄り駅3】

都営地下鉄新宿線 市ヶ谷駅  徒歩3分

【最寄り駅4】

JR中央線 四ツ谷駅  徒歩8分

坪数 57.00坪
実行面積
空調 個別
竣工 1978年12月01日
構造 SRC地上8階建地下2階
エレベーター基数 1 荷物用エレベーター基数
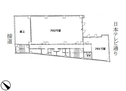
階数 地上 7階 退去日 退去日の詳細につきましては、お問い合わせください。
備考
ビル名
東プレ
住所 21762
最寄り駅
【最寄り駅1】

JR中央・総武線 市ケ谷駅  徒歩1分

【最寄り駅2】

東京メトロ有楽町線 市ケ谷駅  徒歩2分

【最寄り駅3】

都営地下鉄新宿線 市ヶ谷駅  徒歩3分

【最寄り駅4】

JR中央線 四ツ谷駅  徒歩8分

エレベーター基数 1
階数 7階
物件番号/物件ID 21762
面積(平米) 188.42㎡
坪数 57.00坪
実行面積
空調 個別
竣工 1978年12月01日
構造 SRC地上8階建地下2階
荷物用エレベーター基数
退去日 退去日の詳細につきましては、お問い合わせください。
備考

東プレの募集価格

総額 坪単価
賃料 912,000円 賃料 16,000円
共益費 142,500円 共益費 2,500円
月額合計 1,054,500円 月額合計 18,500円
保証金/敷金 7,296,000円 保証金/敷金 128,000円
礼金 1,824,000円 礼金 32,000円
賃料条件補足事項 償却無
総額
賃料 912,000円
共益費 142,500円
月額合計 1,054,500円
保証金/敷金 7,296,000円
礼金 1,824,000円
坪単価
賃料 16,000円
共益費 2,500円
月額合計 18,500円
保証金/敷金 128,000円
礼金 32,000円
賃料条件補足事項 償却無

東プレのその他空室情報

階数 広さ 賃料合計(税別) 坪単価 保証金・敷金 礼金
6F 18.00坪 315,000円 17,500円 2,160,000円 540,000円
フロア詳細
フロア詳細
7F 18.00坪 315,000円 17,500円 2,160,000円 540,000円
フロア詳細
フロア詳細
5F 18.00坪 315,000円 17,500円 2,160,000円 540,000円
フロア詳細
フロア詳細
4F 18.00坪 315,000円 17,500円 2,160,000円 540,000円
フロア詳細
フロア詳細
5F 34.00坪 595,000円 17,500円 4,080,000円 1,020,000円
フロア詳細
フロア詳細
6F 34.00坪 595,000円 17,500円 4,080,000円 1,020,000円
フロア詳細
フロア詳細
4F 34.00坪 595,000円 17,500円 4,080,000円 1,020,000円
フロア詳細
フロア詳細
3F 34.00坪 595,000円 17,500円 4,080,000円 1,020,000円
フロア詳細
フロア詳細
3F 39.00坪 682,500円 17,500円 4,680,000円 1,170,000円
フロア詳細
フロア詳細
4F 39.00坪 682,500円 17,500円 4,680,000円 1,170,000円
フロア詳細
フロア詳細
6F 39.00坪 682,500円 17,500円 4,680,000円 1,170,000円
フロア詳細
フロア詳細
5F 39.00坪 682,500円 17,500円 4,680,000円 1,170,000円
フロア詳細
フロア詳細
空室情報や物件見学などお気軽にお問い合わせください。
ESTATE AGENCY
株式会社エステートエージェンシー
定休日:日曜日・祝日 営業時間:09:00~19:00
でお問い合わせ(無料メール 簡単1 電話でお問い合わせ(無料)
※貸主様からのご要望の為、条件を未公開としている場合がございます。詳しくお聞きになりたい場合は、弊社までご連絡ください。
※賃料、共益費、礼金、その他費用には別途消費税が掛かります。
※上記金額は募集条件です。条件交渉などについてはお気軽にお問い合わせください。
※確認時点での情報のため、リアルタイム情報はお問合せください。

東プレの施設情報カテゴリ

1棟貸可能
駅直結
大型EV
大型駐車場
大通り沿い
傘いらず
貸会議室
空中店舗相談
ヴィンテージ・レトロ
シャワートイレ
セキュリティ
SOHO(住居兼事務所)
デザイナーズ・個性派
トイレ男女別
荷物EVあり
ハイグレードオフィス
ネット回線引込可
ビル内貸倉庫
免振・制振構造
有人警備
ランドマーク
リニューアル
フリースペース
レンタルオフィス
新耐震
駅近(出口
築浅
川沿い、公園沿い
自転車置場

自転車置場料金: ー 円

東プレのアクセスマップ

空室情報や物件見学などお気軽にお問い合わせください。
ESTATE AGENCY
株式会社エステートエージェンシー
定休日:日曜日・祝日 営業時間:09:00~19:00
でお問い合わせ(無料メール 簡単1 電話でお問い合わせ(無料)

最近チェックした物件