フロア詳細情報

タカセビル別館(東京都豊島区東池袋1丁目25番9号)のフロア情報

タカセビル別館のビル詳細を見る
空室状況はお電話一本でスムーズにご案内!まずはお気軽に0120-939-204へどうぞ。
でお問い合わせ(無料メール 簡単1
※上記の写真は人物等が映っている場合、修正・加工が施されています。
物件情報更新日: 2026/04/20

タカセビル別館の物件概要

ビル名
タカセビル別館
物件番号/物件ID 28762
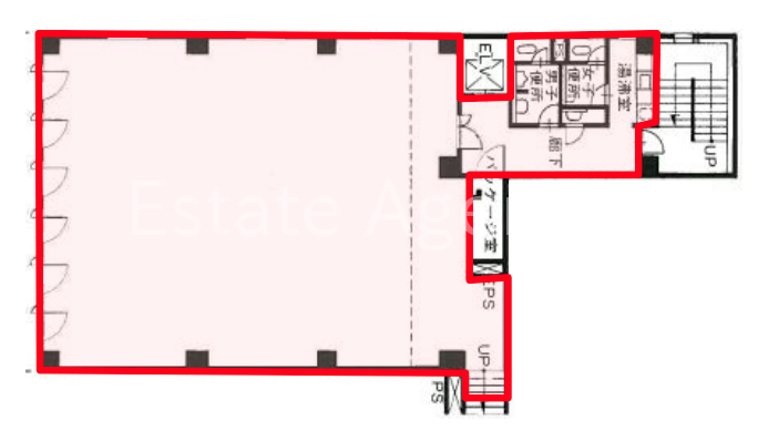
住所 東京都豊島区東池袋1丁目25番9号 面積(平米) 233.19㎡
最寄り駅
【最寄り駅1】

西武池袋線 池袋駅  徒歩6分

【最寄り駅2】

東京メトロ有楽町線 東池袋駅  徒歩6分

【最寄り駅3】

JR埼京線 池袋駅  徒歩6分

【最寄り駅4】

東京メトロ丸ノ内線 池袋駅  徒歩6分

坪数 70.54坪
実行面積
空調 個別
竣工 1983-05
構造 RC地上9階建
エレベーター基数 荷物用エレベーター基数
階数 地上 2階 退去日 退去日の詳細につきましては、お問い合わせください。
備考
ビル名
タカセビル別館
住所 28762
最寄り駅
【最寄り駅1】

西武池袋線 池袋駅  徒歩6分

【最寄り駅2】

東京メトロ有楽町線 東池袋駅  徒歩6分

【最寄り駅3】

JR埼京線 池袋駅  徒歩6分

【最寄り駅4】

東京メトロ丸ノ内線 池袋駅  徒歩6分

エレベーター基数
階数 2階
物件番号/物件ID 28762
面積(平米) 233.19㎡
坪数 70.54坪
実行面積
空調 個別
竣工 1983-05
構造 RC地上9階建
荷物用エレベーター基数
退去日 退去日の詳細につきましては、お問い合わせください。
備考

タカセビル別館の募集価格

総額 坪単価
賃料 1,058,100円 賃料 15,000円
共益費 155,188円 共益費 2,200円
月額合計 1,213,288円 月額合計 17,200円
保証金/敷金 10,581,000円 保証金/敷金 150,000円
礼金 0円 礼金 0円
賃料条件補足事項 償却無
総額
賃料 1,058,100円
共益費 155,188円
月額合計 1,213,288円
保証金/敷金 10,581,000円
礼金 0円
坪単価
賃料 15,000円
共益費 2,200円
月額合計 17,200円
保証金/敷金 150,000円
礼金 0円
賃料条件補足事項 償却無

タカセビル別館のその他空室情報

階数 広さ 賃料合計(税別) 坪単価 保証金・敷金 礼金
3F 70.54坪 1,213,288円 17,200円 10,581,001円 0円
フロア詳細
フロア詳細
6F 50.22坪 863,784円 17,200円 7,533,000円 0円
フロア詳細
フロア詳細
空室情報や物件見学などお気軽にお問い合わせください。
ESTATE AGENCY
株式会社エステートエージェンシー
定休日:日曜日・祝日 営業時間:09:00~19:00
でお問い合わせ(無料メール 簡単1 電話でお問い合わせ(無料)
※貸主様からのご要望の為、条件を未公開としている場合がございます。詳しくお聞きになりたい場合は、弊社までご連絡ください。
※賃料、共益費、礼金、その他費用には別途消費税が掛かります。
※上記金額は募集条件です。条件交渉などについてはお気軽にお問い合わせください。
※確認時点での情報のため、リアルタイム情報はお問合せください。

タカセビル別館の施設情報カテゴリ

1棟貸可能
駅直結
大型EV
大型駐車場
大通り沿い
傘いらず
貸会議室
空中店舗相談
ヴィンテージ・レトロ
シャワートイレ
セキュリティ
SOHO(住居兼事務所)
デザイナーズ・個性派
トイレ男女別
荷物EVあり
ハイグレードオフィス
ネット回線引込可
ビル内貸倉庫
免振・制振構造
有人警備
ランドマーク
リニューアル
フリースペース
レンタルオフィス
新耐震
駅近(出口
築浅
川沿い、公園沿い
自転車置場

自転車置場料金: ー 円

タカセビル別館のアクセスマップ

空室情報や物件見学などお気軽にお問い合わせください。
ESTATE AGENCY
株式会社エステートエージェンシー
定休日:日曜日・祝日 営業時間:09:00~19:00
でお問い合わせ(無料メール 簡単1 電話でお問い合わせ(無料)