フロア詳細情報

Daiwa赤坂(東京都港区赤坂2丁目14番5号)のフロア情報

Daiwa赤坂のビル詳細を見る
空室状況はお電話一本でスムーズにご案内!まずはお気軽に0120-939-204へどうぞ。
でお問い合わせ(無料メール 簡単1
※上記の写真は人物等が映っている場合、修正・加工が施されています。
物件情報更新日: 2026/03/04

Daiwa赤坂の物件概要

ビル名
Daiwa赤坂
物件番号/物件ID 2719
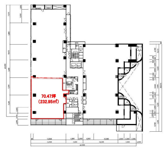
住所 東京都港区赤坂2丁目14番5号 面積(平米) 232.95㎡
最寄り駅
【最寄り駅1】

東京メトロ千代田線 赤坂駅  徒歩1分

【最寄り駅2】

東京メトロ南北線 溜池山王駅  徒歩4分

【最寄り駅3】

東京メトロ丸ノ内線 赤坂見附駅  徒歩7分

【最寄り駅4】

東京メトロ銀座線 溜池山王駅  徒歩4分

坪数 70.47坪
実行面積 100.00%
空調 個別・集中
竣工 1990年09月01日
構造 SRC地上7階建地下2階
エレベーター基数 3 荷物用エレベーター基数 1
階数 地上 4階 退去日 退去日の詳細につきましては、お問い合わせください。
備考 申込中
2015年エントランス改装
ビル名
Daiwa赤坂
住所 2719
最寄り駅
【最寄り駅1】

東京メトロ千代田線 赤坂駅  徒歩1分

【最寄り駅2】

東京メトロ南北線 溜池山王駅  徒歩4分

【最寄り駅3】

東京メトロ丸ノ内線 赤坂見附駅  徒歩7分

【最寄り駅4】

東京メトロ銀座線 溜池山王駅  徒歩4分

エレベーター基数 3
階数 4階
物件番号/物件ID 2719
面積(平米) 232.95㎡
坪数 70.47坪
実行面積 100.00%
空調 個別・集中
竣工 1990年09月01日
構造 SRC地上7階建地下2階
荷物用エレベーター基数 1
退去日 退去日の詳細につきましては、お問い合わせください。
備考 申込中
2015年エントランス改装

Daiwa赤坂の募集価格

総額 坪単価
賃料 非公開 賃料 非公開
共益費 非公開 共益費 非公開
月額合計 非公開 月額合計 非公開
保証金/敷金 非公開 保証金/敷金 非公開
礼金 非公開 礼金 非公開
賃料条件補足事項 更新料・償却なし
総額
賃料 非公開
共益費 非公開
月額合計 非公開
保証金/敷金 非公開
礼金 非公開
坪単価
賃料 非公開
共益費 非公開
月額合計 非公開
保証金/敷金 非公開
礼金 非公開
賃料条件補足事項 更新料・償却なし
空室情報や物件見学などお気軽にお問い合わせください。
ESTATE AGENCY
株式会社エステートエージェンシー
定休日:日曜日・祝日 営業時間:09:00~19:00
でお問い合わせ(無料メール 簡単1 電話でお問い合わせ(無料)

Daiwa赤坂の基本情報

インフォメーション
Daiwa赤坂ビルは赤坂エリアの斬新な外観が特徴的な物件です。 基準階 約260坪のどっしりした印象を与えるビルで、曜日問わずエントランスは6:00~24:00でOPENとなっております。 また駐車場は平面式のものもあり、全体的にスペックが優れたオフィスビルです。
※貸主様からのご要望の為、条件を未公開としている場合がございます。詳しくお聞きになりたい場合は、弊社までご連絡ください。
※賃料、共益費、礼金、その他費用には別途消費税が掛かります。
※上記金額は募集条件です。条件交渉などについてはお気軽にお問い合わせください。
※確認時点での情報のため、リアルタイム情報はお問合せください。

Daiwa赤坂の施設情報カテゴリ

1棟貸可能
駅直結
大型EV
大型駐車場
大通り沿い
傘いらず
貸会議室
空中店舗相談
ヴィンテージ・レトロ
シャワートイレ
セキュリティ
SOHO(住居兼事務所)
デザイナーズ・個性派
トイレ男女別
荷物EVあり
ハイグレードオフィス
ネット回線引込可
ビル内貸倉庫
免振・制振構造
有人警備
ランドマーク
リニューアル
フリースペース
レンタルオフィス
新耐震
駅近(出口
築浅
川沿い、公園沿い
自転車置場

自転車置場料金: ー 円

Daiwa赤坂のアクセスマップ

空室情報や物件見学などお気軽にお問い合わせください。
ESTATE AGENCY
株式会社エステートエージェンシー
定休日:日曜日・祝日 営業時間:09:00~19:00
でお問い合わせ(無料メール 簡単1 電話でお問い合わせ(無料)