フロア詳細情報

エミナンス高輪(東京都港区高輪4丁目10番63号)のフロア情報

エミナンス高輪のビル詳細を見る
空室状況はお電話一本でスムーズにご案内!まずはお気軽に0120-939-204へどうぞ。
でお問い合わせ(無料メール 簡単1
※上記の写真は人物等が映っている場合、修正・加工が施されています。
物件情報更新日: 2026/04/06

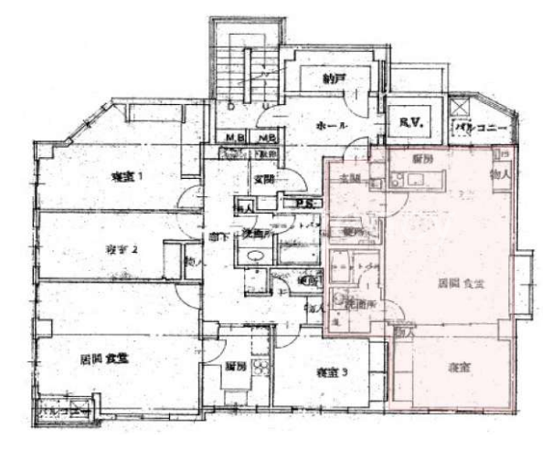
エミナンス高輪の物件概要

ビル名
エミナンス高輪
物件番号/物件ID 23175
住所 東京都港区高輪4丁目10番63号 面積(平米) 58.31㎡
最寄り駅
【最寄り駅1】

京急本線 品川駅  徒歩5分

【最寄り駅2】

JR山手線 品川駅  徒歩6分

【最寄り駅3】

都営地下鉄浅草線 高輪台駅  徒歩6分

【最寄り駅4】

JR東海道本線 品川駅  徒歩6分

坪数 17.64坪
実行面積
空調 個別
竣工 1993年12月01日
構造 RC地上6階建地下0階
エレベーター基数 1 荷物用エレベーター基数
階数 地上 3階 退去日 退去日の詳細につきましては、お問い合わせください。
備考
ビル名
エミナンス高輪
住所 23175
最寄り駅
【最寄り駅1】

京急本線 品川駅  徒歩5分

【最寄り駅2】

JR山手線 品川駅  徒歩6分

【最寄り駅3】

都営地下鉄浅草線 高輪台駅  徒歩6分

【最寄り駅4】

JR東海道本線 品川駅  徒歩6分

エレベーター基数 1
階数 3階
物件番号/物件ID 23175
面積(平米) 58.31㎡
坪数 17.64坪
実行面積
空調 個別
竣工 1993年12月01日
構造 RC地上6階建地下0階
荷物用エレベーター基数
退去日 退去日の詳細につきましては、お問い合わせください。
備考

エミナンス高輪の募集価格

総額 坪単価
賃料 265,000円 賃料 15,023円
共益費 25,000円 共益費 1,418円
月額合計 290,000円 月額合計 16,441円
保証金/敷金 530,000円 保証金/敷金 30,046円
礼金 265,000円 礼金 15,023円
賃料条件補足事項 定借2年、再契約1ヶ月・償却1ヶ月
総額
賃料 265,000円
共益費 25,000円
月額合計 290,000円
保証金/敷金 530,000円
礼金 265,000円
坪単価
賃料 15,023円
共益費 1,418円
月額合計 16,441円
保証金/敷金 30,046円
礼金 15,023円
賃料条件補足事項 定借2年、再契約1ヶ月・償却1ヶ月
空室情報や物件見学などお気軽にお問い合わせください。
ESTATE AGENCY
株式会社エステートエージェンシー
定休日:日曜日・祝日 営業時間:09:00~19:00
でお問い合わせ(無料メール 簡単1 電話でお問い合わせ(無料)
※貸主様からのご要望の為、条件を未公開としている場合がございます。詳しくお聞きになりたい場合は、弊社までご連絡ください。
※賃料、共益費、礼金、その他費用には別途消費税が掛かります。
※上記金額は募集条件です。条件交渉などについてはお気軽にお問い合わせください。
※確認時点での情報のため、リアルタイム情報はお問合せください。

エミナンス高輪の施設情報カテゴリ

1棟貸可能
駅直結
大型EV
大型駐車場
大通り沿い
傘いらず
貸会議室
空中店舗相談
ヴィンテージ・レトロ
シャワートイレ
セキュリティ
SOHO(住居兼事務所)
デザイナーズ・個性派
トイレ男女別
荷物EVあり
ハイグレードオフィス
ネット回線引込可
ビル内貸倉庫
免振・制振構造
有人警備
ランドマーク
リニューアル
フリースペース
レンタルオフィス
新耐震
駅近(出口
築浅
川沿い、公園沿い
自転車置場

自転車置場料金: ー 円

エミナンス高輪のアクセスマップ

空室情報や物件見学などお気軽にお問い合わせください。
ESTATE AGENCY
株式会社エステートエージェンシー
定休日:日曜日・祝日 営業時間:09:00~19:00
でお問い合わせ(無料メール 簡単1 電話でお問い合わせ(無料)