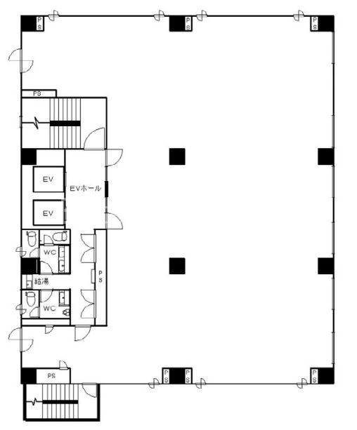
フロア詳細情報

FBR三田(東京都港区三田4丁目1番27号)のフロア情報

FBR三田のビル詳細を見る
空室状況はお電話一本でスムーズにご案内!まずはお気軽に0120-939-204へどうぞ。
でお問い合わせ(無料メール 簡単1
※上記の写真は人物等が映っている場合、修正・加工が施されています。
物件情報更新日: 2026/04/16

FBR三田の物件概要

ビル名
FBR三田
物件番号/物件ID 9126
住所 東京都港区三田4丁目1番27号 面積(平米) 343.20㎡
最寄り駅
【最寄り駅1】

JR山手線 田町駅  徒歩9分

【最寄り駅2】

都営地下鉄三田線 白金高輪駅  徒歩9分

【最寄り駅3】

都営地下鉄浅草線 三田駅  徒歩10分

【最寄り駅4】

京急本線 泉岳寺駅  徒歩11分

坪数 103.82坪
実行面積
空調 個別
竣工 1993年05月01日
構造 SRC造地上9階建地下1階
エレベーター基数 2 荷物用エレベーター基数
階数 地上 9階 退去日 退去日の詳細につきましては、お問い合わせください。
備考
ビル名
FBR三田
住所 9126
最寄り駅
【最寄り駅1】

JR山手線 田町駅  徒歩9分

【最寄り駅2】

都営地下鉄三田線 白金高輪駅  徒歩9分

【最寄り駅3】

都営地下鉄浅草線 三田駅  徒歩10分

【最寄り駅4】

京急本線 泉岳寺駅  徒歩11分

エレベーター基数 2
階数 9階
物件番号/物件ID 9126
面積(平米) 343.20㎡
坪数 103.82坪
実行面積
空調 個別
竣工 1993年05月01日
構造 SRC造地上9階建地下1階
荷物用エレベーター基数
退去日 退去日の詳細につきましては、お問い合わせください。
備考

FBR三田の募集価格

総額 坪単価
賃料 非公開 賃料 非公開
共益費 非公開 共益費 非公開
月額合計 非公開 月額合計 非公開
保証金/敷金 非公開 保証金/敷金 非公開
礼金 非公開 礼金 非公開
賃料条件補足事項 更新料・償却なし
総額
賃料 非公開
共益費 非公開
月額合計 非公開
保証金/敷金 非公開
礼金 非公開
坪単価
賃料 非公開
共益費 非公開
月額合計 非公開
保証金/敷金 非公開
礼金 非公開
賃料条件補足事項 更新料・償却なし
空室情報や物件見学などお気軽にお問い合わせください。
ESTATE AGENCY
株式会社エステートエージェンシー
定休日:日曜日・祝日 営業時間:09:00~19:00
でお問い合わせ(無料メール 簡単1 電話でお問い合わせ(無料)

FBR三田の基本情報

インフォメーション
このFBR三田ビルは住所東京都港区三田1番27号の1993年竣工、地上9階建の賃貸オフィスビルです。最寄駅は、JR山手線田町駅徒歩9分のアクセス。設備情報は大型ビル、大通り沿い、シャワートイレ、セキュリティ、トイレ男女別、24時間利用可能、光回線、OAフロア、部屋セキュリティ。是非一度ご内覧下さいませ! その他、事務所、オフィス移転、不動産の事なら何でもお気軽にご相談下さい。
※貸主様からのご要望の為、条件を未公開としている場合がございます。詳しくお聞きになりたい場合は、弊社までご連絡ください。
※賃料、共益費、礼金、その他費用には別途消費税が掛かります。
※上記金額は募集条件です。条件交渉などについてはお気軽にお問い合わせください。
※確認時点での情報のため、リアルタイム情報はお問合せください。

FBR三田の施設情報カテゴリ

1棟貸可能
駅直結
大型EV
大型駐車場
大通り沿い
傘いらず
貸会議室
空中店舗相談
ヴィンテージ・レトロ
シャワートイレ
セキュリティ
SOHO(住居兼事務所)
デザイナーズ・個性派
トイレ男女別
荷物EVあり
ハイグレードオフィス
ネット回線引込可
ビル内貸倉庫
免振・制振構造
有人警備
ランドマーク
リニューアル
フリースペース
レンタルオフィス
新耐震
駅近(出口
築浅
川沿い、公園沿い
自転車置場

自転車置場料金: ー 円

FBR三田のアクセスマップ

空室情報や物件見学などお気軽にお問い合わせください。
ESTATE AGENCY
株式会社エステートエージェンシー
定休日:日曜日・祝日 営業時間:09:00~19:00
でお問い合わせ(無料メール 簡単1 電話でお問い合わせ(無料)

申し訳ございません。
会員登録をお願い致します。

会員登録のメリット

  • 1、非公開物件情報のご紹介が可能です!
  • 2、ご希望条件をいただきましたら新着物件情報等を定期的に配信いたします!
  • 3、会員登録されたお客様にはご契約時に特別なプレゼントをご用意しております!
会員登録

※会員登録は同業者不可、メールアドレスは企業ドメインのみ
※GmailやYahooなどのフリーメールでは会員登録できないこともありますのでご了承ください。