フロア詳細情報

マーキュリースクエア(東京都新宿区四谷4丁目33番2号)のフロア情報

空室状況はお電話一本でスムーズにご案内!まずはお気軽に0120-939-204へどうぞ。
でお問い合わせ(無料メール 簡単1
※上記の写真は人物等が映っている場合、修正・加工が施されています。
物件情報更新日: 2026/02/18

マーキュリースクエアの物件概要

ビル名
マーキュリースクエア
物件番号/物件ID 1306
住所 東京都新宿区四谷4丁目33番2号 面積(平米) 135.86㎡
最寄り駅
【最寄り駅1】

東京メトロ丸ノ内線 新宿御苑前駅  徒歩5分

【最寄り駅2】

都営地下鉄新宿線 新宿三丁目駅  徒歩10分

【最寄り駅3】

東京メトロ丸ノ内線 四谷三丁目駅  徒歩7分

【最寄り駅4】

東京メトロ副都心線 新宿三丁目駅  徒歩11分

坪数 41.10坪
実行面積
空調
竣工 1989年08月01日
構造 RC地上10階建
エレベーター基数 1 荷物用エレベーター基数
階数 地上 4階 退去日 退去日の詳細につきましては、お問い合わせください。
備考
ビル名
マーキュリースクエア
住所 1306
最寄り駅
【最寄り駅1】

東京メトロ丸ノ内線 新宿御苑前駅  徒歩5分

【最寄り駅2】

都営地下鉄新宿線 新宿三丁目駅  徒歩10分

【最寄り駅3】

東京メトロ丸ノ内線 四谷三丁目駅  徒歩7分

【最寄り駅4】

東京メトロ副都心線 新宿三丁目駅  徒歩11分

エレベーター基数 1
階数 4階
物件番号/物件ID 1306
面積(平米) 135.86㎡
坪数 41.10坪
実行面積
空調
竣工 1989年08月01日
構造 RC地上10階建
荷物用エレベーター基数
退去日 退去日の詳細につきましては、お問い合わせください。
備考

マーキュリースクエアの募集価格

総額 坪単価
賃料 452,091円 賃料 11,000円
共益費 82,200円 共益費 2,000円
月額合計 534,291円 月額合計 13,000円
保証金/敷金 2,712,546円 保証金/敷金 65,999円
礼金 0円 礼金 0円
賃料条件補足事項 償却1ヶ月
総額
賃料 452,091円
共益費 82,200円
月額合計 534,291円
保証金/敷金 2,712,546円
礼金 0円
坪単価
賃料 11,000円
共益費 2,000円
月額合計 13,000円
保証金/敷金 65,999円
礼金 0円
賃料条件補足事項 償却1ヶ月

マーキュリースクエアのその他空室情報

階数 広さ 賃料合計(税別) 坪単価 保証金・敷金 礼金
3F 41.10坪 534,291円 13,000円 2,712,546円 非公開
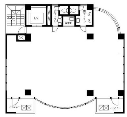
フロア詳細
フロア詳細
空室情報や物件見学などお気軽にお問い合わせください。
ESTATE AGENCY
株式会社エステートエージェンシー
定休日:日曜日・祝日 営業時間:09:00~19:00
でお問い合わせ(無料メール 簡単1 電話でお問い合わせ(無料)
※貸主様からのご要望の為、条件を未公開としている場合がございます。詳しくお聞きになりたい場合は、弊社までご連絡ください。
※賃料、共益費、礼金、その他費用には別途消費税が掛かります。
※上記金額は募集条件です。条件交渉などについてはお気軽にお問い合わせください。
※確認時点での情報のため、リアルタイム情報はお問合せください。

マーキュリースクエアの施設情報カテゴリ

1棟貸可能
駅直結
大型EV
大型駐車場
大通り沿い
傘いらず
貸会議室
空中店舗相談
ヴィンテージ・レトロ
シャワートイレ
セキュリティ
SOHO(住居兼事務所)
デザイナーズ・個性派
トイレ男女別
荷物EVあり
ハイグレードオフィス
ネット回線引込可
ビル内貸倉庫
免振・制振構造
有人警備
ランドマーク
リニューアル
フリースペース
レンタルオフィス
新耐震
駅近(出口
築浅
川沿い、公園沿い
自転車置場

自転車置場料金: ー 円

マーキュリースクエアのアクセスマップ

空室情報や物件見学などお気軽にお問い合わせください。
ESTATE AGENCY
株式会社エステートエージェンシー
定休日:日曜日・祝日 営業時間:09:00~19:00
でお問い合わせ(無料メール 簡単1 電話でお問い合わせ(無料)

よく似た物件