フロア詳細情報

品川グランドセントラルタワー(東京都港区港南2丁目16番4号)のフロア情報

空室状況はお電話一本でスムーズにご案内!まずはお気軽に0120-939-204へどうぞ。
でお問い合わせ(無料メール 簡単1
※上記の写真は人物等が映っている場合、修正・加工が施されています。
物件情報更新日: 2026/04/03

品川グランドセントラルタワーの物件概要

ビル名
品川グランドセントラルタワー
物件番号/物件ID 6721
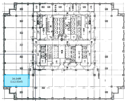
住所 東京都港区港南2丁目16番4号 面積(平米) 112.52㎡
最寄り駅
【最寄り駅1】

JR山手線 品川駅  徒歩3分

【最寄り駅2】

京急本線 北品川駅  徒歩6分

【最寄り駅3】

JR山手線 高輪ゲートウェイ駅  徒歩12分

【最寄り駅4】

京急本線 新馬場駅  徒歩13分

坪数 34.04坪
実行面積 100.00%
空調 集中
竣工 2003年04月01日
構造 S造地上33階建地下3階
エレベーター基数 28 荷物用エレベーター基数
階数 地上 9階 退去日 退去日の詳細につきましては、お問い合わせください。
備考
ビル名
品川グランドセントラルタワー
住所 6721
最寄り駅
【最寄り駅1】

JR山手線 品川駅  徒歩3分

【最寄り駅2】

京急本線 北品川駅  徒歩6分

【最寄り駅3】

JR山手線 高輪ゲートウェイ駅  徒歩12分

【最寄り駅4】

京急本線 新馬場駅  徒歩13分

エレベーター基数 28
階数 9階
物件番号/物件ID 6721
面積(平米) 112.52㎡
坪数 34.04坪
実行面積 100.00%
空調 集中
竣工 2003年04月01日
構造 S造地上33階建地下3階
荷物用エレベーター基数
退去日 退去日の詳細につきましては、お問い合わせください。
備考

品川グランドセントラルタワーの募集価格

総額 坪単価
賃料 非公開 賃料 非公開
共益費 非公開 共益費 非公開
月額合計 非公開 月額合計 非公開
保証金/敷金 非公開 保証金/敷金 非公開
礼金 非公開 礼金 非公開
賃料条件補足事項
総額
賃料 非公開
共益費 非公開
月額合計 非公開
保証金/敷金 非公開
礼金 非公開
坪単価
賃料 非公開
共益費 非公開
月額合計 非公開
保証金/敷金 非公開
礼金 非公開
賃料条件補足事項

品川グランドセントラルタワーのその他空室情報

階数 広さ 賃料合計(税別) 坪単価 保証金・敷金 礼金
24F 10.53坪 非公開 非公開 非公開 非公開
フロア詳細
フロア詳細
26F 6.31坪 非公開 非公開 非公開 非公開
フロア詳細
フロア詳細
26F 6.34坪 非公開 非公開 非公開 非公開
フロア詳細
フロア詳細
26F 10.53坪 非公開 非公開 非公開 非公開
フロア詳細
フロア詳細
空室情報や物件見学などお気軽にお問い合わせください。
ESTATE AGENCY
株式会社エステートエージェンシー
定休日:日曜日・祝日 営業時間:09:00~19:00
でお問い合わせ(無料メール 簡単1 電話でお問い合わせ(無料)

品川グランドセントラルタワーの基本情報

インフォメーション
品川グランドセントラルタワービルは各線 品川駅直結、地上33階建・基準階面積 約800坪の大型ビルです。 品川駅とは空中連絡路「スカイウェイ」で接続されており、警備員常駐、2階エントランスにはフラッパーゲートが備わっているハイグレードビルです。 各所リノベーションされており、ホテルライクな内廊下などが魅力的です。
※貸主様からのご要望の為、条件を未公開としている場合がございます。詳しくお聞きになりたい場合は、弊社までご連絡ください。
※賃料、共益費、礼金、その他費用には別途消費税が掛かります。
※上記金額は募集条件です。条件交渉などについてはお気軽にお問い合わせください。
※確認時点での情報のため、リアルタイム情報はお問合せください。

品川グランドセントラルタワーの施設情報カテゴリ

1棟貸可能
駅直結
大型EV
大型駐車場
大通り沿い
傘いらず
貸会議室
空中店舗相談
ヴィンテージ・レトロ
シャワートイレ
セキュリティ
SOHO(住居兼事務所)
デザイナーズ・個性派
トイレ男女別
荷物EVあり
ハイグレードオフィス
ネット回線引込可
ビル内貸倉庫
免振・制振構造
有人警備
ランドマーク
リニューアル
フリースペース
レンタルオフィス
新耐震
駅近(出口
築浅
川沿い、公園沿い
自転車置場

自転車置場料金: ー 円

品川グランドセントラルタワーのアクセスマップ

空室情報や物件見学などお気軽にお問い合わせください。
ESTATE AGENCY
株式会社エステートエージェンシー
定休日:日曜日・祝日 営業時間:09:00~19:00
でお問い合わせ(無料メール 簡単1 電話でお問い合わせ(無料)

申し訳ございません。
会員登録をお願い致します。

会員登録のメリット

  • 1、非公開物件情報のご紹介が可能です!
  • 2、ご希望条件をいただきましたら新着物件情報等を定期的に配信いたします!
  • 3、会員登録されたお客様にはご契約時に特別なプレゼントをご用意しております!
会員登録

※会員登録は同業者不可、メールアドレスは企業ドメインのみ
※GmailやYahooなどのフリーメールでは会員登録できないこともありますのでご了承ください。