フロア詳細情報

宮前(東京都中央区日本橋蛎殻町1丁目38番9号)のフロア情報

宮前のビル詳細を見る
空室状況はお電話一本でスムーズにご案内!まずはお気軽に0120-939-204へどうぞ。
でお問い合わせ(無料メール 簡単1
※上記の写真は人物等が映っている場合、修正・加工が施されています。
物件情報更新日: 2026/04/21

宮前の物件概要

ビル名
宮前
物件番号/物件ID 8253
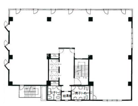
住所 東京都中央区日本橋蛎殻町1丁目38番9号 面積(平米) 364.95㎡
最寄り駅
【最寄り駅1】

東京メトロ半蔵門線 水天宮前駅  徒歩1分

【最寄り駅2】

都営地下鉄浅草線 人形町駅  徒歩5分

【最寄り駅3】

東京メトロ日比谷線 人形町駅  徒歩5分

【最寄り駅4】

東京メトロ日比谷線 茅場町駅  徒歩7分

坪数 110.40坪
実行面積
空調 個別
竣工 1986年10月01日
構造 SRC地上8階建地下1階
エレベーター基数 1 荷物用エレベーター基数
階数 地上 8階 退去日 退去日の詳細につきましては、お問い合わせください。
備考
ビル名
宮前
住所 8253
最寄り駅
【最寄り駅1】

東京メトロ半蔵門線 水天宮前駅  徒歩1分

【最寄り駅2】

都営地下鉄浅草線 人形町駅  徒歩5分

【最寄り駅3】

東京メトロ日比谷線 人形町駅  徒歩5分

【最寄り駅4】

東京メトロ日比谷線 茅場町駅  徒歩7分

エレベーター基数 1
階数 8階
物件番号/物件ID 8253
面積(平米) 364.95㎡
坪数 110.40坪
実行面積
空調 個別
竣工 1986年10月01日
構造 SRC地上8階建地下1階
荷物用エレベーター基数
退去日 退去日の詳細につきましては、お問い合わせください。
備考

宮前の募集価格

総額 坪単価
賃料 1,766,363円 賃料 16,000円
共益費 408,480円 共益費 3,700円
月額合計 2,174,843円 月額合計 19,700円
保証金/敷金 17,663,630円 保証金/敷金 159,997円
礼金 0円 礼金 0円
賃料条件補足事項 償却2ヶ月、更新料:新賃料1ヶ月
総額
賃料 1,766,363円
共益費 408,480円
月額合計 2,174,843円
保証金/敷金 17,663,630円
礼金 0円
坪単価
賃料 16,000円
共益費 3,700円
月額合計 19,700円
保証金/敷金 159,997円
礼金 0円
賃料条件補足事項 償却2ヶ月、更新料:新賃料1ヶ月
空室情報や物件見学などお気軽にお問い合わせください。
ESTATE AGENCY
株式会社エステートエージェンシー
定休日:日曜日・祝日 営業時間:09:00~19:00
でお問い合わせ(無料メール 簡単1 電話でお問い合わせ(無料)

宮前の基本情報

インフォメーション
この宮前ビルは住所東京都中央区日本橋蛎殻町1丁目38番9号 38番9号の1986年竣工、地上8階建の賃貸オフィスビルです。最寄駅は、東京メトロ半蔵門線水天宮前駅徒歩1分のアクセス。是非一度ご内覧下さいませ! その他、事務所、オフィス移転、不動産の事なら何でもお気軽にご相談下さい。
※貸主様からのご要望の為、条件を未公開としている場合がございます。詳しくお聞きになりたい場合は、弊社までご連絡ください。
※賃料、共益費、礼金、その他費用には別途消費税が掛かります。
※上記金額は募集条件です。条件交渉などについてはお気軽にお問い合わせください。
※確認時点での情報のため、リアルタイム情報はお問合せください。

宮前の施設情報カテゴリ

1棟貸可能
駅直結
大型EV
大型駐車場
大通り沿い
傘いらず
貸会議室
空中店舗相談
ヴィンテージ・レトロ
シャワートイレ
セキュリティ
SOHO(住居兼事務所)
デザイナーズ・個性派
トイレ男女別
荷物EVあり
ハイグレードオフィス
ネット回線引込可
ビル内貸倉庫
免振・制振構造
有人警備
ランドマーク
リニューアル
フリースペース
レンタルオフィス
新耐震
駅近(出口
築浅
川沿い、公園沿い
自転車置場

自転車置場料金: ー 円

宮前のアクセスマップ

空室情報や物件見学などお気軽にお問い合わせください。
ESTATE AGENCY
株式会社エステートエージェンシー
定休日:日曜日・祝日 営業時間:09:00~19:00
でお問い合わせ(無料メール 簡単1 電話でお問い合わせ(無料)

最近チェックした物件