フロア詳細情報

SPROUT IIDABASHI(東京都千代田区飯田橋3丁目11番25号)のフロア情報

空室状況はお電話一本でスムーズにご案内!まずはお気軽に0120-939-204へどうぞ。
でお問い合わせ(無料メール 簡単1
※上記の写真は人物等が映っている場合、修正・加工が施されています。
物件情報更新日: 2026/04/22

SPROUT IIDABASHIの物件概要

ビル名
SPROUT IIDABASHI
物件番号/物件ID 17600
住所 東京都千代田区飯田橋3丁目11番25号 面積(平米) 56.23㎡
最寄り駅
【最寄り駅1】

東京メトロ東西線 飯田橋駅  徒歩2分

【最寄り駅2】

東京メトロ丸ノ内線 後楽園駅  徒歩10分

【最寄り駅3】

都営地下鉄三田線 水道橋駅  徒歩10分

【最寄り駅4】

東京メトロ有楽町線 飯田橋駅  徒歩3分

坪数 17.01坪
実行面積
空調 個別
竣工 1999年03月01日
構造 鉄骨地上9階建地下0階
エレベーター基数 1 荷物用エレベーター基数
階数 地上 3階 退去日 退去日の詳細につきましては、お問い合わせください。
備考
ビル名
SPROUT IIDABASHI
住所 17600
最寄り駅
【最寄り駅1】

東京メトロ東西線 飯田橋駅  徒歩2分

【最寄り駅2】

東京メトロ丸ノ内線 後楽園駅  徒歩10分

【最寄り駅3】

都営地下鉄三田線 水道橋駅  徒歩10分

【最寄り駅4】

東京メトロ有楽町線 飯田橋駅  徒歩3分

エレベーター基数 1
階数 3階
物件番号/物件ID 17600
面積(平米) 56.23㎡
坪数 17.01坪
実行面積
空調 個別
竣工 1999年03月01日
構造 鉄骨地上9階建地下0階
荷物用エレベーター基数
退去日 退去日の詳細につきましては、お問い合わせください。
備考

SPROUT IIDABASHIの募集価格

総額 坪単価
賃料 476,280円 賃料 28,000円
共益費 0円 共益費 0円
月額合計 476,280円 月額合計 28,000円
保証金/敷金 1,905,120円 保証金/敷金 112,000円
礼金 0円 礼金 0円
賃料条件補足事項 更新料なし、償却なし
総額
賃料 476,280円
共益費 0円
月額合計 476,280円
保証金/敷金 1,905,120円
礼金 0円
坪単価
賃料 28,000円
共益費 0円
月額合計 28,000円
保証金/敷金 112,000円
礼金 0円
賃料条件補足事項 更新料なし、償却なし

SPROUT IIDABASHIのその他空室情報

階数 広さ 賃料合計(税別) 坪単価 保証金・敷金 礼金
8F 15.20坪 442,960円 29,143円 1,771,840円 非公開
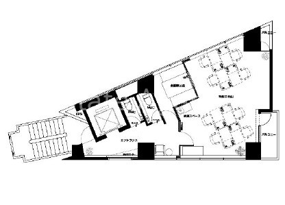
フロア詳細
フロア詳細
空室情報や物件見学などお気軽にお問い合わせください。
ESTATE AGENCY
株式会社エステートエージェンシー
定休日:日曜日・祝日 営業時間:09:00~19:00
でお問い合わせ(無料メール 簡単1 電話でお問い合わせ(無料)

SPROUT IIDABASHIの基本情報

インフォメーション
このSPROUT IIDABASHIビルは住所東京都千代田区飯田橋3丁目11番25号の1999年竣工、地上9階建の賃貸オフィスビルです。最寄駅は、東京メトロ東西線飯田橋駅徒歩2分のアクセス。設備情報はトイレ男女別、光回線、リノベーション済み。是非一度ご内覧下さいませ! その他、事務所、オフィス移転、不動産の事なら何でもお気軽にご相談下さい。
※貸主様からのご要望の為、条件を未公開としている場合がございます。詳しくお聞きになりたい場合は、弊社までご連絡ください。
※賃料、共益費、礼金、その他費用には別途消費税が掛かります。
※上記金額は募集条件です。条件交渉などについてはお気軽にお問い合わせください。
※確認時点での情報のため、リアルタイム情報はお問合せください。

SPROUT IIDABASHIの施設情報カテゴリ

1棟貸可能
駅直結
大型EV
大型駐車場
大通り沿い
傘いらず
貸会議室
空中店舗相談
ヴィンテージ・レトロ
シャワートイレ
セキュリティ
SOHO(住居兼事務所)
デザイナーズ・個性派
トイレ男女別
荷物EVあり
ハイグレードオフィス
ネット回線引込可
ビル内貸倉庫
免振・制振構造
有人警備
ランドマーク
リニューアル
フリースペース
レンタルオフィス
新耐震
駅近(出口
築浅
川沿い、公園沿い
自転車置場

自転車置場料金: ー 円

SPROUT IIDABASHIのアクセスマップ

空室情報や物件見学などお気軽にお問い合わせください。
ESTATE AGENCY
株式会社エステートエージェンシー
定休日:日曜日・祝日 営業時間:09:00~19:00
でお問い合わせ(無料メール 簡単1 電話でお問い合わせ(無料)