フロア詳細情報

三沢(東京都港区新橋6丁目12番8号)のフロア情報

三沢のビル詳細を見る
空室状況はお電話一本でスムーズにご案内!まずはお気軽に0120-939-204へどうぞ。
でお問い合わせ(無料メール 簡単1
※上記の写真は人物等が映っている場合、修正・加工が施されています。
物件情報更新日: 2026/04/28

三沢の物件概要

ビル名
三沢
物件番号/物件ID 3987
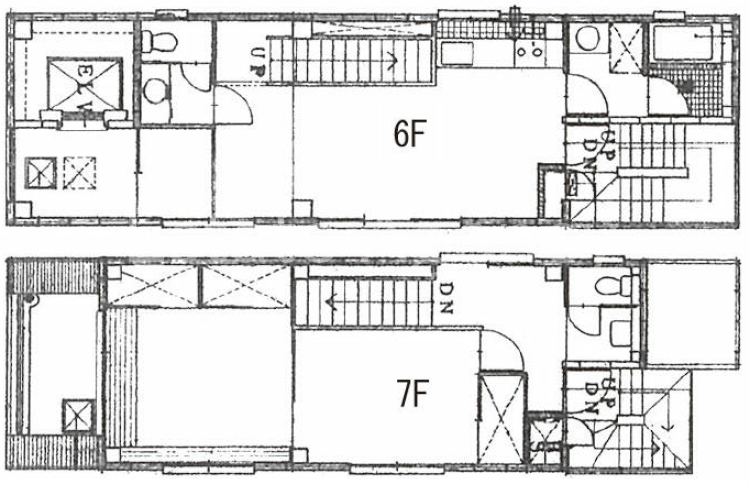
住所 東京都港区新橋6丁目12番8号 面積(平米) 76.03㎡
最寄り駅
【最寄り駅1】

都営地下鉄三田線 御成門駅  徒歩2分

【最寄り駅2】

JR山手線 新橋駅  徒歩8分

【最寄り駅3】

都営地下鉄大江戸線 汐留駅  徒歩7分

【最寄り駅4】

都営地下鉄浅草線 大門駅  徒歩7分

坪数 23.00坪
実行面積
空調
竣工 1990年07月01日
構造 SRC地上7階建
エレベーター基数 1 荷物用エレベーター基数
階数 地上 6階 退去日 退去日の詳細につきましては、お問い合わせください。
備考
ビル名
三沢
住所 3987
最寄り駅
【最寄り駅1】

都営地下鉄三田線 御成門駅  徒歩2分

【最寄り駅2】

JR山手線 新橋駅  徒歩8分

【最寄り駅3】

都営地下鉄大江戸線 汐留駅  徒歩7分

【最寄り駅4】

都営地下鉄浅草線 大門駅  徒歩7分

エレベーター基数 1
階数 6階
物件番号/物件ID 3987
面積(平米) 76.03㎡
坪数 23.00坪
実行面積
空調
竣工 1990年07月01日
構造 SRC地上7階建
荷物用エレベーター基数
退去日 退去日の詳細につきましては、お問い合わせください。
備考

三沢の募集価格

総額 坪単価
賃料 391,000円 賃料 17,000円
共益費 0円 共益費 0円
月額合計 391,000円 月額合計 17,000円
保証金/敷金 2,346,000円 保証金/敷金 102,000円
礼金 0円 礼金 0円
賃料条件補足事項 更新料:新1ヶ月・償却2ヶ月
総額
賃料 391,000円
共益費 0円
月額合計 391,000円
保証金/敷金 2,346,000円
礼金 0円
坪単価
賃料 17,000円
共益費 0円
月額合計 17,000円
保証金/敷金 102,000円
礼金 0円
賃料条件補足事項 更新料:新1ヶ月・償却2ヶ月
空室情報や物件見学などお気軽にお問い合わせください。
ESTATE AGENCY
株式会社エステートエージェンシー
定休日:日曜日・祝日 営業時間:09:00~19:00
でお問い合わせ(無料メール 簡単1 電話でお問い合わせ(無料)

三沢の基本情報

インフォメーション
この三沢ビルは住所東京都港区新橋12番8号の1990年竣工、地上7階建の賃貸オフィスビルです。最寄駅は、都営地下鉄三田線御成門駅徒歩2分のアクセス。設備情報は光回線。是非一度ご内覧下さいませ! その他、事務所、オフィス移転、不動産の事なら何でもお気軽にご相談下さい。
※貸主様からのご要望の為、条件を未公開としている場合がございます。詳しくお聞きになりたい場合は、弊社までご連絡ください。
※賃料、共益費、礼金、その他費用には別途消費税が掛かります。
※上記金額は募集条件です。条件交渉などについてはお気軽にお問い合わせください。
※確認時点での情報のため、リアルタイム情報はお問合せください。

三沢の施設情報カテゴリ

1棟貸可能
駅直結
大型EV
大型駐車場
大通り沿い
傘いらず
貸会議室
空中店舗相談
ヴィンテージ・レトロ
シャワートイレ
セキュリティ
SOHO(住居兼事務所)
デザイナーズ・個性派
トイレ男女別
荷物EVあり
ハイグレードオフィス
ネット回線引込可
ビル内貸倉庫
免振・制振構造
有人警備
ランドマーク
リニューアル
フリースペース
レンタルオフィス
新耐震
駅近(出口
築浅
川沿い、公園沿い
自転車置場

自転車置場料金: ー 円

三沢のアクセスマップ

空室情報や物件見学などお気軽にお問い合わせください。
ESTATE AGENCY
株式会社エステートエージェンシー
定休日:日曜日・祝日 営業時間:09:00~19:00
でお問い合わせ(無料メール 簡単1 電話でお問い合わせ(無料)

よく似た物件