フロア詳細情報

相田(東京都千代田区飯田橋3丁目9番8号)のフロア情報

相田のビル詳細を見る
空室状況はお電話一本でスムーズにご案内!まずはお気軽に0120-939-204へどうぞ。
でお問い合わせ(無料メール 簡単1
※上記の写真は人物等が映っている場合、修正・加工が施されています。
物件情報更新日: 2026/03/14

相田の物件概要

ビル名
相田
物件番号/物件ID 163
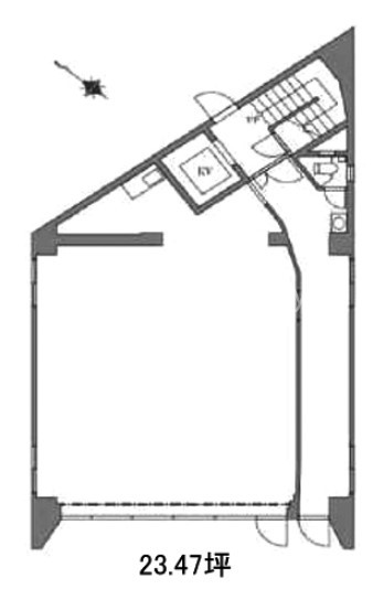
住所 東京都千代田区飯田橋3丁目9番8号 面積(平米) 77.58㎡
最寄り駅
【最寄り駅1】

東京メトロ東西線 飯田橋駅  徒歩3分

【最寄り駅2】

都営地下鉄三田線 水道橋駅  徒歩8分

【最寄り駅3】

東京メトロ半蔵門線 九段下駅  徒歩9分

【最寄り駅4】

東京メトロ南北線 飯田橋駅  徒歩5分

坪数 23.47坪
実行面積
空調 個別
竣工 1974年01月01日
構造 RC造地上6階建地下0階
エレベーター基数 1 荷物用エレベーター基数
階数 地上 1階 退去日 退去日の詳細につきましては、お問い合わせください。
備考 2020年
ビル名
相田
住所 163
最寄り駅
【最寄り駅1】

東京メトロ東西線 飯田橋駅  徒歩3分

【最寄り駅2】

都営地下鉄三田線 水道橋駅  徒歩8分

【最寄り駅3】

東京メトロ半蔵門線 九段下駅  徒歩9分

【最寄り駅4】

東京メトロ南北線 飯田橋駅  徒歩5分

エレベーター基数 1
階数 1階
物件番号/物件ID 163
面積(平米) 77.58㎡
坪数 23.47坪
実行面積
空調 個別
竣工 1974年01月01日
構造 RC造地上6階建地下0階
荷物用エレベーター基数
退去日 退去日の詳細につきましては、お問い合わせください。
備考 2020年

相田の募集価格

総額 坪単価
賃料 非公開 賃料 非公開
共益費 非公開 共益費 非公開
月額合計 非公開 月額合計 非公開
保証金/敷金 非公開 保証金/敷金 非公開
礼金 非公開 礼金 非公開
賃料条件補足事項 定期借家契約:2029年3月末迄
総額
賃料 非公開
共益費 非公開
月額合計 非公開
保証金/敷金 非公開
礼金 非公開
坪単価
賃料 非公開
共益費 非公開
月額合計 非公開
保証金/敷金 非公開
礼金 非公開
賃料条件補足事項 定期借家契約:2029年3月末迄
空室情報や物件見学などお気軽にお問い合わせください。
ESTATE AGENCY
株式会社エステートエージェンシー
定休日:日曜日・祝日 営業時間:09:00~19:00
でお問い合わせ(無料メール 簡単1 電話でお問い合わせ(無料)
※貸主様からのご要望の為、条件を未公開としている場合がございます。詳しくお聞きになりたい場合は、弊社までご連絡ください。
※賃料、共益費、礼金、その他費用には別途消費税が掛かります。
※上記金額は募集条件です。条件交渉などについてはお気軽にお問い合わせください。
※確認時点での情報のため、リアルタイム情報はお問合せください。

相田の施設情報カテゴリ

1棟貸可能
駅直結
大型EV
大型駐車場
大通り沿い
傘いらず
貸会議室
空中店舗相談
ヴィンテージ・レトロ
シャワートイレ
セキュリティ
SOHO(住居兼事務所)
デザイナーズ・個性派
トイレ男女別
荷物EVあり
ハイグレードオフィス
ネット回線引込可
ビル内貸倉庫
免振・制振構造
有人警備
ランドマーク
リニューアル
フリースペース
レンタルオフィス
新耐震
駅近(出口
築浅
川沿い、公園沿い
自転車置場

自転車置場料金: ー 円

相田のアクセスマップ

空室情報や物件見学などお気軽にお問い合わせください。
ESTATE AGENCY
株式会社エステートエージェンシー
定休日:日曜日・祝日 営業時間:09:00~19:00
でお問い合わせ(無料メール 簡単1 電話でお問い合わせ(無料)

よく似た物件

申し訳ございません。
会員登録をお願い致します。

会員登録のメリット

  • 1、非公開物件情報のご紹介が可能です!
  • 2、ご希望条件をいただきましたら新着物件情報等を定期的に配信いたします!
  • 3、会員登録されたお客様にはご契約時に特別なプレゼントをご用意しております!
会員登録

※会員登録は同業者不可、メールアドレスは企業ドメインのみ
※GmailやYahooなどのフリーメールでは会員登録できないこともありますのでご了承ください。