フロア詳細情報

南青山渡辺(東京都港区南青山1丁目4番2号)のフロア情報

南青山渡辺のビル詳細を見る
空室状況はお電話一本でスムーズにご案内!まずはお気軽に0120-939-204へどうぞ。
でお問い合わせ(無料メール 簡単1
※上記の写真は人物等が映っている場合、修正・加工が施されています。
物件情報更新日: 2026/03/02

南青山渡辺の物件概要

ビル名
南青山渡辺
物件番号/物件ID 1731
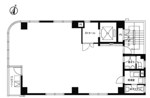
住所 東京都港区南青山1丁目4番2号 面積(平米) 94.31㎡
最寄り駅
【最寄り駅1】

東京メトロ半蔵門線 青山一丁目駅  徒歩2分

【最寄り駅2】

東京メトロ千代田線 乃木坂駅  徒歩7分

【最寄り駅3】

東京メトロ銀座線 外苑前駅  徒歩8分

【最寄り駅4】

都営地下鉄大江戸線 青山一丁目駅  徒歩2分

坪数 28.53坪
実行面積
空調 個別
竣工 1987年08月01日
構造 SRC造地上8階建
エレベーター基数 1 荷物用エレベーター基数
階数 地上 2階 退去日 退去日の詳細につきましては、お問い合わせください。
備考
ビル名
南青山渡辺
住所 1731
最寄り駅
【最寄り駅1】

東京メトロ半蔵門線 青山一丁目駅  徒歩2分

【最寄り駅2】

東京メトロ千代田線 乃木坂駅  徒歩7分

【最寄り駅3】

東京メトロ銀座線 外苑前駅  徒歩8分

【最寄り駅4】

都営地下鉄大江戸線 青山一丁目駅  徒歩2分

エレベーター基数 1
階数 2階
物件番号/物件ID 1731
面積(平米) 94.31㎡
坪数 28.53坪
実行面積
空調 個別
竣工 1987年08月01日
構造 SRC造地上8階建
荷物用エレベーター基数
退去日 退去日の詳細につきましては、お問い合わせください。
備考

南青山渡辺の募集価格

総額 坪単価
賃料 非公開 賃料 非公開
共益費 非公開 共益費 非公開
月額合計 非公開 月額合計 非公開
保証金/敷金 非公開 保証金/敷金 非公開
礼金 非公開 礼金 非公開
賃料条件補足事項 保証会社加入義務有、償却10%、更新料1ヶ月
総額
賃料 非公開
共益費 非公開
月額合計 非公開
保証金/敷金 非公開
礼金 非公開
坪単価
賃料 非公開
共益費 非公開
月額合計 非公開
保証金/敷金 非公開
礼金 非公開
賃料条件補足事項 保証会社加入義務有、償却10%、更新料1ヶ月

南青山渡辺のその他空室情報

階数 広さ 賃料合計(税別) 坪単価 保証金・敷金 礼金
3F 29.73坪 非公開 非公開 非公開 非公開
フロア詳細
フロア詳細
2F 29.73坪 非公開 非公開 非公開 非公開
フロア詳細
フロア詳細
空室情報や物件見学などお気軽にお問い合わせください。
ESTATE AGENCY
株式会社エステートエージェンシー
定休日:日曜日・祝日 営業時間:09:00~19:00
でお問い合わせ(無料メール 簡単1 電話でお問い合わせ(無料)
※貸主様からのご要望の為、条件を未公開としている場合がございます。詳しくお聞きになりたい場合は、弊社までご連絡ください。
※賃料、共益費、礼金、その他費用には別途消費税が掛かります。
※上記金額は募集条件です。条件交渉などについてはお気軽にお問い合わせください。
※確認時点での情報のため、リアルタイム情報はお問合せください。

南青山渡辺の施設情報カテゴリ

1棟貸可能
駅直結
大型EV
大型駐車場
大通り沿い
傘いらず
貸会議室
空中店舗相談
ヴィンテージ・レトロ
シャワートイレ
セキュリティ
SOHO(住居兼事務所)
デザイナーズ・個性派
トイレ男女別
荷物EVあり
ハイグレードオフィス
ネット回線引込可
ビル内貸倉庫
免振・制振構造
有人警備
ランドマーク
リニューアル
フリースペース
レンタルオフィス
新耐震
駅近(出口
築浅
川沿い、公園沿い
自転車置場

自転車置場料金: ー 円

南青山渡辺のアクセスマップ

空室情報や物件見学などお気軽にお問い合わせください。
ESTATE AGENCY
株式会社エステートエージェンシー
定休日:日曜日・祝日 営業時間:09:00~19:00
でお問い合わせ(無料メール 簡単1 電話でお問い合わせ(無料)

最近チェックした物件

申し訳ございません。
会員登録をお願い致します。

会員登録のメリット

  • 1、非公開物件情報のご紹介が可能です!
  • 2、ご希望条件をいただきましたら新着物件情報等を定期的に配信いたします!
  • 3、会員登録されたお客様にはご契約時に特別なプレゼントをご用意しております!
会員登録

※会員登録は同業者不可、メールアドレスは企業ドメインのみ
※GmailやYahooなどのフリーメールでは会員登録できないこともありますのでご了承ください。