フロア詳細情報

紅谷(東京都千代田区麹町4丁目3番22号)のフロア情報

紅谷のビル詳細を見る
空室状況はお電話一本でスムーズにご案内!まずはお気軽に0120-939-204へどうぞ。
でお問い合わせ(無料メール 簡単1
※上記の写真は人物等が映っている場合、修正・加工が施されています。
物件情報更新日: 2025/12/01

紅谷の物件概要

ビル名
紅谷
物件番号/物件ID 3491
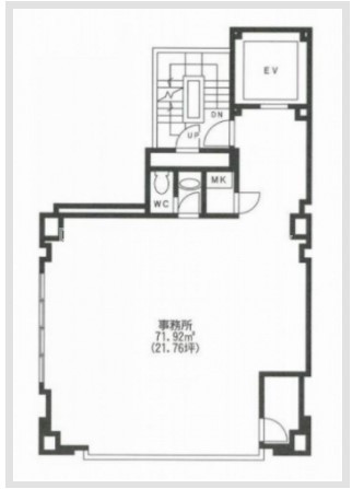
住所 東京都千代田区麹町4丁目3番22号 面積(平米) 71.93㎡
最寄り駅
【最寄り駅1】

東京メトロ有楽町線 麹町駅  徒歩1分

【最寄り駅2】

東京メトロ半蔵門線 半蔵門駅  徒歩6分

【最寄り駅3】

東京メトロ南北線 永田町駅  徒歩7分

【最寄り駅4】

東京メトロ丸ノ内線 赤坂見附駅  徒歩9分

坪数 21.76坪
実行面積
空調 個別
竣工 1992年05月01日
構造 鉄骨地上10階建地下2階
エレベーター基数 1 荷物用エレベーター基数
階数 地上 4階 退去日 退去日の詳細につきましては、お問い合わせください。
備考
ビル名
紅谷
住所 3491
最寄り駅
【最寄り駅1】

東京メトロ有楽町線 麹町駅  徒歩1分

【最寄り駅2】

東京メトロ半蔵門線 半蔵門駅  徒歩6分

【最寄り駅3】

東京メトロ南北線 永田町駅  徒歩7分

【最寄り駅4】

東京メトロ丸ノ内線 赤坂見附駅  徒歩9分

エレベーター基数 1
階数 4階
物件番号/物件ID 3491
面積(平米) 71.93㎡
坪数 21.76坪
実行面積
空調 個別
竣工 1992年05月01日
構造 鉄骨地上10階建地下2階
荷物用エレベーター基数
退去日 退去日の詳細につきましては、お問い合わせください。
備考

紅谷の募集価格

総額 坪単価
賃料 369,909円 賃料 17,000円
共益費 65,280円 共益費 3,000円
月額合計 435,189円 月額合計 20,000円
保証金/敷金 3,699,090円 保証金/敷金 169,995円
礼金 369,909円 礼金 17,000円
賃料条件補足事項 更新料1ヶ月、償却:敷金の10%、指定保証会社加入必須
総額
賃料 369,909円
共益費 65,280円
月額合計 435,189円
保証金/敷金 3,699,090円
礼金 369,909円
坪単価
賃料 17,000円
共益費 3,000円
月額合計 20,000円
保証金/敷金 169,995円
礼金 17,000円
賃料条件補足事項 更新料1ヶ月、償却:敷金の10%、指定保証会社加入必須

紅谷のその他空室情報

階数 広さ 賃料合計(税別) 坪単価 保証金・敷金 礼金
9F 21.76坪 435,189円 20,000円 3,699,090円 369,909円
フロア詳細
フロア詳細
空室情報や物件見学などお気軽にお問い合わせください。
ESTATE AGENCY
株式会社エステートエージェンシー
定休日:日曜日・祝日 営業時間:09:00~19:00
でお問い合わせ(無料メール 簡単1 電話でお問い合わせ(無料)

紅谷の基本情報

インフォメーション
この紅谷ビルは住所東京都千代田区麹町3番22号の1992年竣工、地上10階建の賃貸オフィスビルです。最寄駅は、東京メトロ有楽町線麹町駅徒歩1分のアクセス。設備情報は大通り沿い、セキュリティ、24時間利用可能、光回線。是非一度ご内覧下さいませ! その他、事務所、オフィス移転、不動産の事なら何でもお気軽にご相談下さい。
※貸主様からのご要望の為、条件を未公開としている場合がございます。詳しくお聞きになりたい場合は、弊社までご連絡ください。
※賃料、共益費、礼金、その他費用には別途消費税が掛かります。
※上記金額は募集条件です。条件交渉などについてはお気軽にお問い合わせください。
※確認時点での情報のため、リアルタイム情報はお問合せください。

紅谷の施設情報カテゴリ

1棟貸可能
駅直結
大型EV
大型駐車場
大通り沿い
傘いらず
貸会議室
空中店舗相談
ヴィンテージ・レトロ
シャワートイレ
セキュリティ
SOHO(住居兼事務所)
デザイナーズ・個性派
トイレ男女別
荷物EVあり
ハイグレードオフィス
ネット回線引込可
ビル内貸倉庫
免振・制振構造
有人警備
ランドマーク
リニューアル
フリースペース
レンタルオフィス
新耐震
駅近(出口
築浅
川沿い、公園沿い
自転車置場

自転車置場料金: ー 円

紅谷のアクセスマップ

空室情報や物件見学などお気軽にお問い合わせください。
ESTATE AGENCY
株式会社エステートエージェンシー
定休日:日曜日・祝日 営業時間:09:00~19:00
でお問い合わせ(無料メール 簡単1 電話でお問い合わせ(無料)

よく似た物件