フロア詳細情報

大久保フジ(東京都新宿区大久保2丁目7番1号)のフロア情報

大久保フジのビル詳細を見る
空室状況はお電話一本でスムーズにご案内!まずはお気軽に0120-939-204へどうぞ。
でお問い合わせ(無料メール 簡単1
※上記の写真は人物等が映っている場合、修正・加工が施されています。
物件情報更新日: 2025/11/10

大久保フジの物件概要

ビル名
大久保フジ
物件番号/物件ID 4630
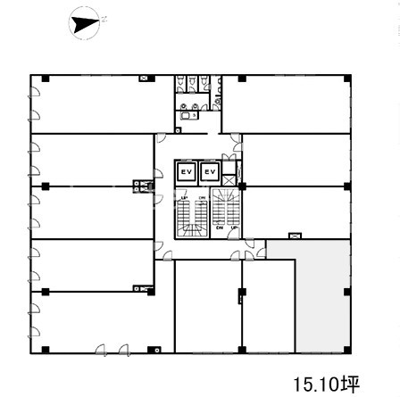
住所 東京都新宿区大久保2丁目7番1号 面積(平米) 47.70㎡
最寄り駅
【最寄り駅1】

都営地下鉄大江戸線 東新宿駅  徒歩4分

【最寄り駅2】

JR山手線 新大久保駅  徒歩8分

【最寄り駅3】

東京メトロ副都心線 西早稲田駅  徒歩10分

【最寄り駅4】

東京メトロ丸ノ内線 新宿駅  徒歩14分

坪数 14.43坪
実行面積
空調
竣工 1975-04
構造 SRC地上10階建
エレベーター基数 荷物用エレベーター基数
階数 地上 3階 退去日 退去日の詳細につきましては、お問い合わせください。
備考
ビル名
大久保フジ
住所 4630
最寄り駅
【最寄り駅1】

都営地下鉄大江戸線 東新宿駅  徒歩4分

【最寄り駅2】

JR山手線 新大久保駅  徒歩8分

【最寄り駅3】

東京メトロ副都心線 西早稲田駅  徒歩10分

【最寄り駅4】

東京メトロ丸ノ内線 新宿駅  徒歩14分

エレベーター基数
階数 3階
物件番号/物件ID 4630
面積(平米) 47.70㎡
坪数 14.43坪
実行面積
空調
竣工 1975-04
構造 SRC地上10階建
荷物用エレベーター基数
退去日 退去日の詳細につきましては、お問い合わせください。
備考

大久保フジの募集価格

総額 坪単価
賃料 144,300円 賃料 10,000円
共益費 28,860円 共益費 2,000円
月額合計 173,160円 月額合計 12,000円
保証金/敷金 432,900円 保証金/敷金 30,000円
礼金 145,743円 礼金 10,100円
賃料条件補足事項
総額
賃料 144,300円
共益費 28,860円
月額合計 173,160円
保証金/敷金 432,900円
礼金 145,743円
坪単価
賃料 10,000円
共益費 2,000円
月額合計 12,000円
保証金/敷金 30,000円
礼金 10,100円
賃料条件補足事項
空室情報や物件見学などお気軽にお問い合わせください。
ESTATE AGENCY
株式会社エステートエージェンシー
定休日:日曜日・祝日 営業時間:09:00~19:00
でお問い合わせ(無料メール 簡単1 電話でお問い合わせ(無料)
※貸主様からのご要望の為、条件を未公開としている場合がございます。詳しくお聞きになりたい場合は、弊社までご連絡ください。
※賃料、共益費、礼金、その他費用には別途消費税が掛かります。
※上記金額は募集条件です。条件交渉などについてはお気軽にお問い合わせください。

大久保フジの施設情報カテゴリ

1棟貸可能
駅直結
大型EV
大型駐車場
大通り沿い
傘いらず
貸会議室
空中店舗相談
ヴィンテージ・レトロ
シャワートイレ
セキュリティ
SOHO(住居兼事務所)
デザイナーズ・個性派
トイレ男女別
荷物EVあり
ハイグレードオフィス
ネット回線引込可
ビル内貸倉庫
免振・制振構造
有人警備
ランドマーク
リニューアル
フリースペース
レンタルオフィス
新耐震
駅近(出口
築浅
川沿い、公園沿い
自転車置場

自転車置場料金: ー 円

大久保フジのアクセスマップ

空室情報や物件見学などお気軽にお問い合わせください。
ESTATE AGENCY
株式会社エステートエージェンシー
定休日:日曜日・祝日 営業時間:09:00~19:00
でお問い合わせ(無料メール 簡単1 電話でお問い合わせ(無料)

よく似た物件

最近チェックした物件