フロア詳細情報

桂昇茅場町(東京都中央区日本橋茅場町1丁目6番2号)のフロア情報

桂昇茅場町のビル詳細を見る
空室状況はお電話一本でスムーズにご案内!まずはお気軽に0120-939-204へどうぞ。
でお問い合わせ(無料メール 簡単1
※上記の写真は人物等が映っている場合、修正・加工が施されています。
物件情報更新日: 2026/02/25

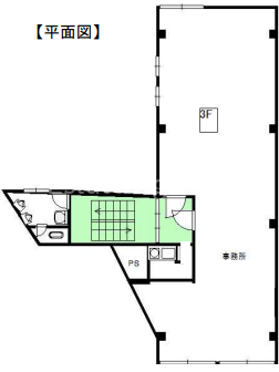
桂昇茅場町の物件概要

ビル名
桂昇茅場町
物件番号/物件ID 614
住所 東京都中央区日本橋茅場町1丁目6番2号 面積(平米) 102.84㎡
最寄り駅
【最寄り駅1】

東京メトロ東西線 茅場町駅  徒歩2分

【最寄り駅2】

都営地下鉄浅草線 日本橋駅  徒歩3分

【最寄り駅3】

東京メトロ半蔵門線 水天宮前駅  徒歩7分

【最寄り駅4】

東京メトロ日比谷線 人形町駅  徒歩8分

坪数 31.11坪
実行面積
空調 個別
竣工 1961年05月01日
構造 RC地上5階建地下1階
エレベーター基数 荷物用エレベーター基数
階数 地上 3階 退去日 退去日の詳細につきましては、お問い合わせください。
備考
ビル名
桂昇茅場町
住所 614
最寄り駅
【最寄り駅1】

東京メトロ東西線 茅場町駅  徒歩2分

【最寄り駅2】

都営地下鉄浅草線 日本橋駅  徒歩3分

【最寄り駅3】

東京メトロ半蔵門線 水天宮前駅  徒歩7分

【最寄り駅4】

東京メトロ日比谷線 人形町駅  徒歩8分

エレベーター基数
階数 3階
物件番号/物件ID 614
面積(平米) 102.84㎡
坪数 31.11坪
実行面積
空調 個別
竣工 1961年05月01日
構造 RC地上5階建地下1階
荷物用エレベーター基数
退去日 退去日の詳細につきましては、お問い合わせください。
備考

桂昇茅場町の募集価格

総額 坪単価
賃料 360,000円 賃料 11,572円
共益費 0円 共益費 0円
月額合計 360,000円 月額合計 11,572円
保証金/敷金 1,440,000円 保証金/敷金 46,288円
礼金 720,000円 礼金 23,144円
賃料条件補足事項 普通借3年・更新料:新賃料1.5ヶ月・償却2ヶ月、保証会社要加入
総額
賃料 360,000円
共益費 0円
月額合計 360,000円
保証金/敷金 1,440,000円
礼金 720,000円
坪単価
賃料 11,572円
共益費 0円
月額合計 11,572円
保証金/敷金 46,288円
礼金 23,144円
賃料条件補足事項 普通借3年・更新料:新賃料1.5ヶ月・償却2ヶ月、保証会社要加入
空室情報や物件見学などお気軽にお問い合わせください。
ESTATE AGENCY
株式会社エステートエージェンシー
定休日:日曜日・祝日 営業時間:09:00~19:00
でお問い合わせ(無料メール 簡単1 電話でお問い合わせ(無料)
※貸主様からのご要望の為、条件を未公開としている場合がございます。詳しくお聞きになりたい場合は、弊社までご連絡ください。
※賃料、共益費、礼金、その他費用には別途消費税が掛かります。
※上記金額は募集条件です。条件交渉などについてはお気軽にお問い合わせください。
※確認時点での情報のため、リアルタイム情報はお問合せください。

桂昇茅場町の施設情報カテゴリ

1棟貸可能
駅直結
大型EV
大型駐車場
大通り沿い
傘いらず
貸会議室
空中店舗相談
ヴィンテージ・レトロ
シャワートイレ
セキュリティ
SOHO(住居兼事務所)
デザイナーズ・個性派
トイレ男女別
荷物EVあり
ハイグレードオフィス
ネット回線引込可
ビル内貸倉庫
免振・制振構造
有人警備
ランドマーク
リニューアル
フリースペース
レンタルオフィス
新耐震
駅近(出口
築浅
川沿い、公園沿い
自転車置場

自転車置場料金: ー 円

桂昇茅場町のアクセスマップ

空室情報や物件見学などお気軽にお問い合わせください。
ESTATE AGENCY
株式会社エステートエージェンシー
定休日:日曜日・祝日 営業時間:09:00~19:00
でお問い合わせ(無料メール 簡単1 電話でお問い合わせ(無料)

よく似た物件