フロア詳細情報

須田(東京都港区芝大門1丁目5番2号)のフロア情報

須田のビル詳細を見る
空室状況はお電話一本でスムーズにご案内!まずはお気軽に0120-939-204へどうぞ。
でお問い合わせ(無料メール 簡単1
※上記の写真は人物等が映っている場合、修正・加工が施されています。
物件情報更新日: 2025/12/01

須田の物件概要

ビル名
須田
物件番号/物件ID 8742
住所 東京都港区芝大門1丁目5番2号 面積(平米) 75.04㎡
最寄り駅
【最寄り駅1】

都営地下鉄浅草線 大門駅  徒歩3分

【最寄り駅2】

JR山手線 浜松町駅  徒歩6分

【最寄り駅3】

都営地下鉄三田線 御成門駅  徒歩4分

【最寄り駅4】

都営地下鉄大江戸線 汐留駅  徒歩9分

坪数 22.70坪
実行面積
空調 個別
竣工 1984年04月01日
構造 SRC地上9階建地下1階
エレベーター基数 1 荷物用エレベーター基数
階数 地上 5階 退去日 退去日の詳細につきましては、お問い合わせください。
備考
ビル名
須田
住所 8742
最寄り駅
【最寄り駅1】

都営地下鉄浅草線 大門駅  徒歩3分

【最寄り駅2】

JR山手線 浜松町駅  徒歩6分

【最寄り駅3】

都営地下鉄三田線 御成門駅  徒歩4分

【最寄り駅4】

都営地下鉄大江戸線 汐留駅  徒歩9分

エレベーター基数 1
階数 5階
物件番号/物件ID 8742
面積(平米) 75.04㎡
坪数 22.70坪
実行面積
空調 個別
竣工 1984年04月01日
構造 SRC地上9階建地下1階
荷物用エレベーター基数
退去日 退去日の詳細につきましては、お問い合わせください。
備考

須田の募集価格

総額 坪単価
賃料 272,363円 賃料 11,999円
共益費 34,050円 共益費 1,500円
月額合計 306,413円 月額合計 13,499円
保証金/敷金 1,634,178円 保証金/敷金 71,991円
礼金 0円 礼金 0円
賃料条件補足事項
総額
賃料 272,363円
共益費 34,050円
月額合計 306,413円
保証金/敷金 1,634,178円
礼金 0円
坪単価
賃料 11,999円
共益費 1,500円
月額合計 13,499円
保証金/敷金 71,991円
礼金 0円
賃料条件補足事項

須田のその他空室情報

階数 広さ 賃料合計(税別) 坪単価 保証金・敷金 礼金
2F 20.80坪 283,650円 13,638円 1,497,600円 0円
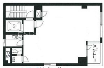
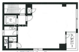
フロア詳細
フロア詳細
空室情報や物件見学などお気軽にお問い合わせください。
ESTATE AGENCY
株式会社エステートエージェンシー
定休日:日曜日・祝日 営業時間:09:00~19:00
でお問い合わせ(無料メール 簡単1 電話でお問い合わせ(無料)

須田の基本情報

インフォメーション
この須田ビルは住所東京都港区芝大門1丁目5番2号の1984年竣工、地上9階建の賃貸オフィスビルです。最寄駅は、都営地下鉄浅草線大門駅徒歩3分のアクセス。設備情報はシャワートイレ、セキュリティ、24時間利用可能、光回線、室内水回り、部屋セキュリティ、1フロア1テナント。是非一度ご内覧下さいませ! その他、事務所、オフィス移転、不動産の事なら何でもお気軽にご相談下さい。
※貸主様からのご要望の為、条件を未公開としている場合がございます。詳しくお聞きになりたい場合は、弊社までご連絡ください。
※賃料、共益費、礼金、その他費用には別途消費税が掛かります。
※上記金額は募集条件です。条件交渉などについてはお気軽にお問い合わせください。

須田の施設情報カテゴリ

1棟貸可能
駅直結
大型EV
大型駐車場
大通り沿い
傘いらず
貸会議室
空中店舗相談
ヴィンテージ・レトロ
シャワートイレ
セキュリティ
SOHO(住居兼事務所)
デザイナーズ・個性派
トイレ男女別
荷物EVあり
ハイグレードオフィス
ネット回線引込可
ビル内貸倉庫
免振・制振構造
有人警備
ランドマーク
リニューアル
フリースペース
レンタルオフィス
新耐震
駅近(出口
築浅
川沿い、公園沿い
自転車置場

自転車置場料金: ー 円

須田のアクセスマップ

空室情報や物件見学などお気軽にお問い合わせください。
ESTATE AGENCY
株式会社エステートエージェンシー
定休日:日曜日・祝日 営業時間:09:00~19:00
でお問い合わせ(無料メール 簡単1 電話でお問い合わせ(無料)

よく似た物件