フロア詳細情報

上一(東京都中央区銀座1丁目6番10号)のフロア情報

上一のビル詳細を見る
空室状況はお電話一本でスムーズにご案内!まずはお気軽に0120-939-204へどうぞ。
でお問い合わせ(無料メール 簡単1
※上記の写真は人物等が映っている場合、修正・加工が施されています。
物件情報更新日: 2026/03/12

上一の物件概要

ビル名
上一
物件番号/物件ID 19249
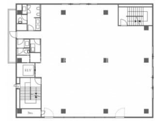
住所 東京都中央区銀座1丁目6番10号 面積(平米) 250.61㎡
最寄り駅
【最寄り駅1】

東京メトロ有楽町線 銀座一丁目駅  徒歩0分

【最寄り駅2】

JR山手線 有楽町駅  徒歩4分

【最寄り駅3】

東京メトロ銀座線 京橋駅  徒歩5分

【最寄り駅4】

東京メトロ丸ノ内線 銀座駅  徒歩5分

坪数 75.81坪
実行面積
空調 個別
竣工 1987年05月01日
構造 SRC地上7階建地下1階
エレベーター基数 1 荷物用エレベーター基数
階数 地上 4階 退去日 退去日の詳細につきましては、お問い合わせください。
備考
ビル名
上一
住所 19249
最寄り駅
【最寄り駅1】

東京メトロ有楽町線 銀座一丁目駅  徒歩0分

【最寄り駅2】

JR山手線 有楽町駅  徒歩4分

【最寄り駅3】

東京メトロ銀座線 京橋駅  徒歩5分

【最寄り駅4】

東京メトロ丸ノ内線 銀座駅  徒歩5分

エレベーター基数 1
階数 4階
物件番号/物件ID 19249
面積(平米) 250.61㎡
坪数 75.81坪
実行面積
空調 個別
竣工 1987年05月01日
構造 SRC地上7階建地下1階
荷物用エレベーター基数
退去日 退去日の詳細につきましては、お問い合わせください。
備考

上一の募集価格

総額 坪単価
賃料 2,274,300円 賃料 30,000円
共益費 0円 共益費 0円
月額合計 2,274,300円 月額合計 30,000円
保証金/敷金 27,291,600円 保証金/敷金 360,000円
礼金 0円 礼金 0円
賃料条件補足事項 定借3年、更新料なし・償却2か月
総額
賃料 2,274,300円
共益費 0円
月額合計 2,274,300円
保証金/敷金 27,291,600円
礼金 0円
坪単価
賃料 30,000円
共益費 0円
月額合計 30,000円
保証金/敷金 360,000円
礼金 0円
賃料条件補足事項 定借3年、更新料なし・償却2か月
空室情報や物件見学などお気軽にお問い合わせください。
ESTATE AGENCY
株式会社エステートエージェンシー
定休日:日曜日・祝日 営業時間:09:00~19:00
でお問い合わせ(無料メール 簡単1 電話でお問い合わせ(無料)
※貸主様からのご要望の為、条件を未公開としている場合がございます。詳しくお聞きになりたい場合は、弊社までご連絡ください。
※賃料、共益費、礼金、その他費用には別途消費税が掛かります。
※上記金額は募集条件です。条件交渉などについてはお気軽にお問い合わせください。
※確認時点での情報のため、リアルタイム情報はお問合せください。

上一の施設情報カテゴリ

1棟貸可能
駅直結
大型EV
大型駐車場
大通り沿い
傘いらず
貸会議室
空中店舗相談
ヴィンテージ・レトロ
シャワートイレ
セキュリティ
SOHO(住居兼事務所)
デザイナーズ・個性派
トイレ男女別
荷物EVあり
ハイグレードオフィス
ネット回線引込可
ビル内貸倉庫
免振・制振構造
有人警備
ランドマーク
リニューアル
フリースペース
レンタルオフィス
新耐震
駅近(出口
築浅
川沿い、公園沿い
自転車置場

自転車置場料金: ー 円

上一のアクセスマップ

空室情報や物件見学などお気軽にお問い合わせください。
ESTATE AGENCY
株式会社エステートエージェンシー
定休日:日曜日・祝日 営業時間:09:00~19:00
でお問い合わせ(無料メール 簡単1 電話でお問い合わせ(無料)

最近チェックした物件