フロア詳細情報

天池(東京都港区芝5丁目16番4号)のフロア情報

天池のビル詳細を見る
空室状況はお電話一本でスムーズにご案内!まずはお気軽に0120-939-204へどうぞ。
でお問い合わせ(無料メール 簡単1
※上記の写真は人物等が映っている場合、修正・加工が施されています。
物件情報更新日: 2026/03/13

天池の物件概要

ビル名
天池
物件番号/物件ID 19614
住所 東京都港区芝5丁目16番4号 面積(平米) 66.77㎡
最寄り駅
【最寄り駅1】

JR山手線 田町駅  徒歩4分

【最寄り駅2】

都営地下鉄浅草線 三田駅  徒歩3分

【最寄り駅3】

都営地下鉄三田線 三田駅  徒歩3分

【最寄り駅4】

JR京浜東北線 田町駅  徒歩4分

坪数 20.20坪
実行面積
空調 個別
竣工 1985年01月01日
構造 鉄骨地上4階建地下0階
エレベーター基数 荷物用エレベーター基数
階数 地上 4階 退去日 退去日の詳細につきましては、お問い合わせください。
備考
ビル名
天池
住所 19614
最寄り駅
【最寄り駅1】

JR山手線 田町駅  徒歩4分

【最寄り駅2】

都営地下鉄浅草線 三田駅  徒歩3分

【最寄り駅3】

都営地下鉄三田線 三田駅  徒歩3分

【最寄り駅4】

JR京浜東北線 田町駅  徒歩4分

エレベーター基数
階数 4階
物件番号/物件ID 19614
面積(平米) 66.77㎡
坪数 20.20坪
実行面積
空調 個別
竣工 1985年01月01日
構造 鉄骨地上4階建地下0階
荷物用エレベーター基数
退去日 退去日の詳細につきましては、お問い合わせください。
備考

天池の募集価格

総額 坪単価
賃料 210,000円 賃料 10,397円
共益費 10,000円 共益費 496円
月額合計 220,000円 月額合計 10,893円
保証金/敷金 600,000円 保証金/敷金 29,703円
礼金 0円 礼金 0円
賃料条件補足事項 償却無し、更新料1ヶ月
総額
賃料 210,000円
共益費 10,000円
月額合計 220,000円
保証金/敷金 600,000円
礼金 0円
坪単価
賃料 10,397円
共益費 496円
月額合計 10,893円
保証金/敷金 29,703円
礼金 0円
賃料条件補足事項 償却無し、更新料1ヶ月

天池のその他空室情報

階数 広さ 賃料合計(税別) 坪単価 保証金・敷金 礼金
4F 19.77坪 187,819円 9,501円 711,276円 非公開
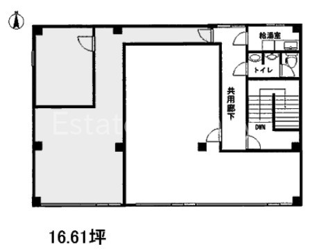
フロア詳細
フロア詳細
空室情報や物件見学などお気軽にお問い合わせください。
ESTATE AGENCY
株式会社エステートエージェンシー
定休日:日曜日・祝日 営業時間:09:00~19:00
でお問い合わせ(無料メール 簡単1 電話でお問い合わせ(無料)
※貸主様からのご要望の為、条件を未公開としている場合がございます。詳しくお聞きになりたい場合は、弊社までご連絡ください。
※賃料、共益費、礼金、その他費用には別途消費税が掛かります。
※上記金額は募集条件です。条件交渉などについてはお気軽にお問い合わせください。
※確認時点での情報のため、リアルタイム情報はお問合せください。

天池の施設情報カテゴリ

1棟貸可能
駅直結
大型EV
大型駐車場
大通り沿い
傘いらず
貸会議室
空中店舗相談
ヴィンテージ・レトロ
シャワートイレ
セキュリティ
SOHO(住居兼事務所)
デザイナーズ・個性派
トイレ男女別
荷物EVあり
ハイグレードオフィス
ネット回線引込可
ビル内貸倉庫
免振・制振構造
有人警備
ランドマーク
リニューアル
フリースペース
レンタルオフィス
新耐震
駅近(出口
築浅
川沿い、公園沿い
自転車置場

自転車置場料金: ー 円

天池のアクセスマップ

空室情報や物件見学などお気軽にお問い合わせください。
ESTATE AGENCY
株式会社エステートエージェンシー
定休日:日曜日・祝日 営業時間:09:00~19:00
でお問い合わせ(無料メール 簡単1 電話でお問い合わせ(無料)

よく似た物件