フロア詳細情報

KS(東京都中央区八丁堀3丁目9番5号)のフロア情報

KSのビル詳細を見る
空室状況はお電話一本でスムーズにご案内!まずはお気軽に0120-939-204へどうぞ。
でお問い合わせ(無料メール 簡単1
※上記の写真は人物等が映っている場合、修正・加工が施されています。
物件情報更新日: 2026/04/17

KSの物件概要

ビル名
KS
物件番号/物件ID 19720
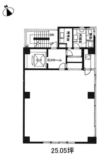
住所 東京都中央区八丁堀3丁目9番5号 面積(平米) 82.84㎡
最寄り駅
【最寄り駅1】

東京メトロ日比谷線 八丁堀駅  徒歩3分

【最寄り駅2】

都営地下鉄浅草線 宝町駅  徒歩3分

【最寄り駅3】

JR京葉線 八丁堀駅  徒歩4分

【最寄り駅4】

東京メトロ銀座線 京橋駅  徒歩6分

坪数 25.06坪
実行面積
空調 個別
竣工 1992年07月01日
構造 SRC地上8階建地下0階
エレベーター基数 1 荷物用エレベーター基数
階数 地上 5階 退去日 退去日の詳細につきましては、お問い合わせください。
備考
ビル名
KS
住所 19720
最寄り駅
【最寄り駅1】

東京メトロ日比谷線 八丁堀駅  徒歩3分

【最寄り駅2】

都営地下鉄浅草線 宝町駅  徒歩3分

【最寄り駅3】

JR京葉線 八丁堀駅  徒歩4分

【最寄り駅4】

東京メトロ銀座線 京橋駅  徒歩6分

エレベーター基数 1
階数 5階
物件番号/物件ID 19720
面積(平米) 82.84㎡
坪数 25.06坪
実行面積
空調 個別
竣工 1992年07月01日
構造 SRC地上8階建地下0階
荷物用エレベーター基数
退去日 退去日の詳細につきましては、お問い合わせください。
備考

KSの募集価格

総額 坪単価
賃料 300,720円 賃料 12,000円
共益費 50,120円 共益費 2,000円
月額合計 350,840円 月額合計 14,000円
保証金/敷金 3,007,200円 保証金/敷金 120,000円
礼金 0円 礼金 0円
賃料条件補足事項 更新料1ヶ月・償却2ヶ月
総額
賃料 300,720円
共益費 50,120円
月額合計 350,840円
保証金/敷金 3,007,200円
礼金 0円
坪単価
賃料 12,000円
共益費 2,000円
月額合計 14,000円
保証金/敷金 120,000円
礼金 0円
賃料条件補足事項 更新料1ヶ月・償却2ヶ月
空室情報や物件見学などお気軽にお問い合わせください。
ESTATE AGENCY
株式会社エステートエージェンシー
定休日:日曜日・祝日 営業時間:09:00~19:00
でお問い合わせ(無料メール 簡単1 電話でお問い合わせ(無料)
※貸主様からのご要望の為、条件を未公開としている場合がございます。詳しくお聞きになりたい場合は、弊社までご連絡ください。
※賃料、共益費、礼金、その他費用には別途消費税が掛かります。
※上記金額は募集条件です。条件交渉などについてはお気軽にお問い合わせください。
※確認時点での情報のため、リアルタイム情報はお問合せください。

KSの施設情報カテゴリ

1棟貸可能
駅直結
大型EV
大型駐車場
大通り沿い
傘いらず
貸会議室
空中店舗相談
ヴィンテージ・レトロ
シャワートイレ
セキュリティ
SOHO(住居兼事務所)
デザイナーズ・個性派
トイレ男女別
荷物EVあり
ハイグレードオフィス
ネット回線引込可
ビル内貸倉庫
免振・制振構造
有人警備
ランドマーク
リニューアル
フリースペース
レンタルオフィス
新耐震
駅近(出口
築浅
川沿い、公園沿い
自転車置場

自転車置場料金: ー 円

KSのアクセスマップ

空室情報や物件見学などお気軽にお問い合わせください。
ESTATE AGENCY
株式会社エステートエージェンシー
定休日:日曜日・祝日 営業時間:09:00~19:00
でお問い合わせ(無料メール 簡単1 電話でお問い合わせ(無料)

よく似た物件