フロア詳細情報

プライム東日本橋一丁目(東京都中央区東日本橋1丁目1番4号)のフロア情報

空室状況はお電話一本でスムーズにご案内!まずはお気軽に0120-939-204へどうぞ。
でお問い合わせ(無料メール 簡単1
※上記の写真は人物等が映っている場合、修正・加工が施されています。
物件情報更新日: 2026/04/06

プライム東日本橋一丁目の物件概要

ビル名
プライム東日本橋一丁目
物件番号/物件ID 19731
住所 東京都中央区東日本橋1丁目1番4号 面積(平米) 227.86㎡
最寄り駅
【最寄り駅1】

都営地下鉄浅草線 東日本橋駅  徒歩2分

【最寄り駅2】

都営地下鉄新宿線 馬喰横山駅  徒歩4分

【最寄り駅3】

都営地下鉄新宿線 浜町駅  徒歩4分

【最寄り駅4】

都営地下鉄浅草線 人形町駅  徒歩7分

坪数 68.93坪
実行面積
空調 個別
竣工 1987年08月01日
構造 SRC地上9階建地下1階
エレベーター基数 2 荷物用エレベーター基数
階数 地上 2階 退去日 退去日の詳細につきましては、お問い合わせください。
備考 エントランス・貸室フルリニューアル
ビル名
プライム東日本橋一丁目
住所 19731
最寄り駅
【最寄り駅1】

都営地下鉄浅草線 東日本橋駅  徒歩2分

【最寄り駅2】

都営地下鉄新宿線 馬喰横山駅  徒歩4分

【最寄り駅3】

都営地下鉄新宿線 浜町駅  徒歩4分

【最寄り駅4】

都営地下鉄浅草線 人形町駅  徒歩7分

エレベーター基数 2
階数 2階
物件番号/物件ID 19731
面積(平米) 227.86㎡
坪数 68.93坪
実行面積
空調 個別
竣工 1987年08月01日
構造 SRC地上9階建地下1階
荷物用エレベーター基数
退去日 退去日の詳細につきましては、お問い合わせください。
備考 エントランス・貸室フルリニューアル

プライム東日本橋一丁目の募集価格

総額 坪単価
賃料 非公開 賃料 非公開
共益費 非公開 共益費 非公開
月額合計 非公開 月額合計 非公開
保証金/敷金 非公開 保証金/敷金 非公開
礼金 非公開 礼金 非公開
賃料条件補足事項 償却・更新料無
総額
賃料 非公開
共益費 非公開
月額合計 非公開
保証金/敷金 非公開
礼金 非公開
坪単価
賃料 非公開
共益費 非公開
月額合計 非公開
保証金/敷金 非公開
礼金 非公開
賃料条件補足事項 償却・更新料無

プライム東日本橋一丁目のその他空室情報

階数 広さ 賃料合計(税別) 坪単価 保証金・敷金 礼金
5F 72.20坪 非公開 非公開 非公開 非公開
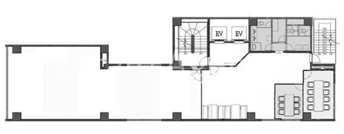
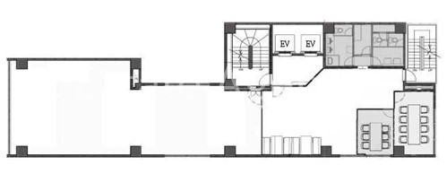
フロア詳細
フロア詳細
空室情報や物件見学などお気軽にお問い合わせください。
ESTATE AGENCY
株式会社エステートエージェンシー
定休日:日曜日・祝日 営業時間:09:00~19:00
でお問い合わせ(無料メール 簡単1 電話でお問い合わせ(無料)

プライム東日本橋一丁目の基本情報

インフォメーション
プライム東日本橋一丁目ビルは大通り沿い(清洲橋通り)の基準階面積 約72坪のオフィスビルです。 エントランスはリノベーションされており綺麗な状態で、 セットアップオフィスとして募集しているフロアもございます。 浜町駅・人形町駅・馬喰横山駅・東日本橋駅と複数駅・路線が使用できる立地の物件になります。
※貸主様からのご要望の為、条件を未公開としている場合がございます。詳しくお聞きになりたい場合は、弊社までご連絡ください。
※賃料、共益費、礼金、その他費用には別途消費税が掛かります。
※上記金額は募集条件です。条件交渉などについてはお気軽にお問い合わせください。
※確認時点での情報のため、リアルタイム情報はお問合せください。

プライム東日本橋一丁目の施設情報カテゴリ

1棟貸可能
駅直結
大型EV
大型駐車場
大通り沿い
傘いらず
貸会議室
空中店舗相談
ヴィンテージ・レトロ
シャワートイレ
セキュリティ
SOHO(住居兼事務所)
デザイナーズ・個性派
トイレ男女別
荷物EVあり
ハイグレードオフィス
ネット回線引込可
ビル内貸倉庫
免振・制振構造
有人警備
ランドマーク
リニューアル
フリースペース
レンタルオフィス
新耐震
駅近(出口
築浅
川沿い、公園沿い
自転車置場

自転車置場料金: ー 円

プライム東日本橋一丁目のアクセスマップ

空室情報や物件見学などお気軽にお問い合わせください。
ESTATE AGENCY
株式会社エステートエージェンシー
定休日:日曜日・祝日 営業時間:09:00~19:00
でお問い合わせ(無料メール 簡単1 電話でお問い合わせ(無料)