フロア詳細情報

新々会館日本橋(東京都中央区日本橋3丁目14番1号)のフロア情報

新々会館日本橋のビル詳細を見る
空室状況はお電話一本でスムーズにご案内!まずはお気軽に0120-939-204へどうぞ。
でお問い合わせ(無料メール 簡単1
※上記の写真は人物等が映っている場合、修正・加工が施されています。
物件情報更新日: 2026/03/15

新々会館日本橋の物件概要

ビル名
新々会館日本橋
物件番号/物件ID 19901
住所 東京都中央区日本橋3丁目14番1号 面積(平米) 274.21㎡
最寄り駅
【最寄り駅1】

東京メトロ銀座線 日本橋駅  徒歩4分

【最寄り駅2】

東京メトロ東西線 日本橋駅  徒歩4分

【最寄り駅3】

東京メトロ日比谷線 茅場町駅  徒歩6分

【最寄り駅4】

東京メトロ銀座線 京橋駅  徒歩7分

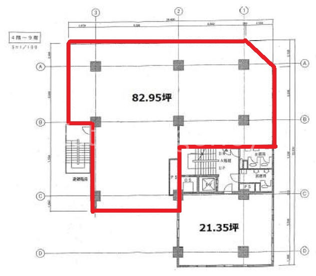
坪数 82.95坪
実行面積
空調 個別
竣工 1971年10月01日
構造 SRC地上9階建地下1階
エレベーター基数 1 荷物用エレベーター基数
階数 地上 4階 退去日 退去日の詳細につきましては、お問い合わせください。
備考
ビル名
新々会館日本橋
住所 19901
最寄り駅
【最寄り駅1】

東京メトロ銀座線 日本橋駅  徒歩4分

【最寄り駅2】

東京メトロ東西線 日本橋駅  徒歩4分

【最寄り駅3】

東京メトロ日比谷線 茅場町駅  徒歩6分

【最寄り駅4】

東京メトロ銀座線 京橋駅  徒歩7分

エレベーター基数 1
階数 4階
物件番号/物件ID 19901
面積(平米) 274.21㎡
坪数 82.95坪
実行面積
空調 個別
竣工 1971年10月01日
構造 SRC地上9階建地下1階
荷物用エレベーター基数
退去日 退去日の詳細につきましては、お問い合わせください。
備考

新々会館日本橋の募集価格

総額 坪単価
賃料 1,244,182円 賃料 15,000円
共益費 248,850円 共益費 3,000円
月額合計 1,493,032円 月額合計 18,000円
保証金/敷金 12,441,820円 保証金/敷金 149,992円
礼金 0円 礼金 0円
賃料条件補足事項 定借、更新料・償却なし、保証会社要加入
総額
賃料 1,244,182円
共益費 248,850円
月額合計 1,493,032円
保証金/敷金 12,441,820円
礼金 0円
坪単価
賃料 15,000円
共益費 3,000円
月額合計 18,000円
保証金/敷金 149,992円
礼金 0円
賃料条件補足事項 定借、更新料・償却なし、保証会社要加入

新々会館日本橋のその他空室情報

階数 広さ 賃料合計(税別) 坪単価 保証金・敷金 礼金
9F 21.35坪 448,323円 20,999円 3,842,730円 0円
フロア詳細
フロア詳細
空室情報や物件見学などお気軽にお問い合わせください。
ESTATE AGENCY
株式会社エステートエージェンシー
定休日:日曜日・祝日 営業時間:09:00~19:00
でお問い合わせ(無料メール 簡単1 電話でお問い合わせ(無料)
※貸主様からのご要望の為、条件を未公開としている場合がございます。詳しくお聞きになりたい場合は、弊社までご連絡ください。
※賃料、共益費、礼金、その他費用には別途消費税が掛かります。
※上記金額は募集条件です。条件交渉などについてはお気軽にお問い合わせください。
※確認時点での情報のため、リアルタイム情報はお問合せください。

新々会館日本橋の施設情報カテゴリ

1棟貸可能
駅直結
大型EV
大型駐車場
大通り沿い
傘いらず
貸会議室
空中店舗相談
ヴィンテージ・レトロ
シャワートイレ
セキュリティ
SOHO(住居兼事務所)
デザイナーズ・個性派
トイレ男女別
荷物EVあり
ハイグレードオフィス
ネット回線引込可
ビル内貸倉庫
免振・制振構造
有人警備
ランドマーク
リニューアル
フリースペース
レンタルオフィス
新耐震
駅近(出口
築浅
川沿い、公園沿い
自転車置場

自転車置場料金: ー 円

新々会館日本橋のアクセスマップ

空室情報や物件見学などお気軽にお問い合わせください。
ESTATE AGENCY
株式会社エステートエージェンシー
定休日:日曜日・祝日 営業時間:09:00~19:00
でお問い合わせ(無料メール 簡単1 電話でお問い合わせ(無料)