フロア詳細情報

Yunuo(東京都千代田区神田東松下町丁目なし23番1号)のフロア情報

Yunuoのビル詳細を見る
空室状況はお電話一本でスムーズにご案内!まずはお気軽に0120-939-204へどうぞ。
でお問い合わせ(無料メール 簡単1
※上記の写真は人物等が映っている場合、修正・加工が施されています。
物件情報更新日: 2025/11/19

Yunuoの物件概要

ビル名
Yunuo
物件番号/物件ID 19939
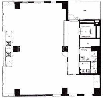
住所 東京都千代田区神田東松下町丁目なし23番1号 面積(平米) 156.62㎡
最寄り駅
【最寄り駅1】

都営地下鉄新宿線 岩本町駅  徒歩2分

【最寄り駅2】

東京メトロ日比谷線 秋葉原駅  徒歩4分

【最寄り駅3】

東京メトロ銀座線 神田駅  徒歩5分

【最寄り駅4】

JR京浜東北線 秋葉原駅  徒歩5分

坪数 47.38坪
実行面積
空調 個別
竣工 1992年03月01日
構造 SRC地上7階建地下1階
エレベーター基数 1 荷物用エレベーター基数
階数 地上 2階 退去日 退去日の詳細につきましては、お問い合わせください。
備考 設置済みのオフィス家具(椅子・デスク・キャビネットetc.)は譲渡 ※退去時は撤去義務有り
ビル名
Yunuo
住所 19939
最寄り駅
【最寄り駅1】

都営地下鉄新宿線 岩本町駅  徒歩2分

【最寄り駅2】

東京メトロ日比谷線 秋葉原駅  徒歩4分

【最寄り駅3】

東京メトロ銀座線 神田駅  徒歩5分

【最寄り駅4】

JR京浜東北線 秋葉原駅  徒歩5分

エレベーター基数 1
階数 2階
物件番号/物件ID 19939
面積(平米) 156.62㎡
坪数 47.38坪
実行面積
空調 個別
竣工 1992年03月01日
構造 SRC地上7階建地下1階
荷物用エレベーター基数
退去日 退去日の詳細につきましては、お問い合わせください。
備考 設置済みのオフィス家具(椅子・デスク・キャビネットetc.)は譲渡 ※退去時は撤去義務有り

Yunuoの募集価格

総額 坪単価
賃料 818,363円 賃料 17,273円
共益費 0円 共益費 0円
月額合計 818,363円 月額合計 17,273円
保証金/敷金 5,728,541円 保証金/敷金 120,907円
礼金 818,363円 礼金 17,273円
賃料条件補足事項 契約期間3年、更新料なし、償却1ヶ月、更新事務手数料あり、保険加入要
総額
賃料 818,363円
共益費 0円
月額合計 818,363円
保証金/敷金 5,728,541円
礼金 818,363円
坪単価
賃料 17,273円
共益費 0円
月額合計 17,273円
保証金/敷金 120,907円
礼金 17,273円
賃料条件補足事項 契約期間3年、更新料なし、償却1ヶ月、更新事務手数料あり、保険加入要
空室情報や物件見学などお気軽にお問い合わせください。
ESTATE AGENCY
株式会社エステートエージェンシー
定休日:日曜日・祝日 営業時間:09:00~19:00
でお問い合わせ(無料メール 簡単1 電話でお問い合わせ(無料)
※貸主様からのご要望の為、条件を未公開としている場合がございます。詳しくお聞きになりたい場合は、弊社までご連絡ください。
※賃料、共益費、礼金、その他費用には別途消費税が掛かります。
※上記金額は募集条件です。条件交渉などについてはお気軽にお問い合わせください。

Yunuoの施設情報カテゴリ

1棟貸可能
駅直結
大型EV
大型駐車場
大通り沿い
傘いらず
貸会議室
空中店舗相談
ヴィンテージ・レトロ
シャワートイレ
セキュリティ
SOHO(住居兼事務所)
デザイナーズ・個性派
トイレ男女別
荷物EVあり
ハイグレードオフィス
ネット回線引込可
ビル内貸倉庫
免振・制振構造
有人警備
ランドマーク
リニューアル
フリースペース
レンタルオフィス
新耐震
駅近(出口
築浅
川沿い、公園沿い
自転車置場

自転車置場料金: ー 円

Yunuoのアクセスマップ

空室情報や物件見学などお気軽にお問い合わせください。
ESTATE AGENCY
株式会社エステートエージェンシー
定休日:日曜日・祝日 営業時間:09:00~19:00
でお問い合わせ(無料メール 簡単1 電話でお問い合わせ(無料)

よく似た物件