フロア詳細情報

日本教育会館(東京都千代田区一ツ橋2丁目6番2号)のフロア情報

日本教育会館のビル詳細を見る
空室状況はお電話一本でスムーズにご案内!まずはお気軽に0120-939-204へどうぞ。
でお問い合わせ(無料メール 簡単1
※上記の写真は人物等が映っている場合、修正・加工が施されています。
物件情報更新日: 2026/03/14

日本教育会館の物件概要

ビル名
日本教育会館
物件番号/物件ID 17440
住所 東京都千代田区一ツ橋2丁目6番2号 面積(平米) 100.62㎡
最寄り駅
【最寄り駅1】

東京メトロ半蔵門線 神保町駅  徒歩3分

【最寄り駅2】

都営地下鉄新宿線 九段下駅  徒歩5分

【最寄り駅3】

東京メトロ東西線 竹橋駅  徒歩5分

【最寄り駅4】

東京メトロ千代田線 新御茶ノ水駅  徒歩12分

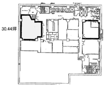
坪数 30.44坪
実行面積 100.00%
空調 個別
竣工 1977年04月01日
構造 RC地上9階建地下2階
エレベーター基数 4 荷物用エレベーター基数
階数 地下 1階 退去日 退去日の詳細につきましては、お問い合わせください。
備考
ビル名
日本教育会館
住所 17440
最寄り駅
【最寄り駅1】

東京メトロ半蔵門線 神保町駅  徒歩3分

【最寄り駅2】

都営地下鉄新宿線 九段下駅  徒歩5分

【最寄り駅3】

東京メトロ東西線 竹橋駅  徒歩5分

【最寄り駅4】

東京メトロ千代田線 新御茶ノ水駅  徒歩12分

エレベーター基数 4
階数 1階
物件番号/物件ID 17440
面積(平米) 100.62㎡
坪数 30.44坪
実行面積 100.00%
空調 個別
竣工 1977年04月01日
構造 RC地上9階建地下2階
荷物用エレベーター基数
退去日 退去日の詳細につきましては、お問い合わせください。
備考

日本教育会館の募集価格

総額 坪単価
賃料 547,909円 賃料 18,000円
共益費 121,760円 共益費 4,000円
月額合計 669,669円 月額合計 22,000円
保証金/敷金 5,479,090円 保証金/敷金 179,997円
礼金 0円 礼金 0円
賃料条件補足事項 定借(期間相談)、償却10%・再契約料無し、指定保証会社要加入、火災保険要加入
総額
賃料 547,909円
共益費 121,760円
月額合計 669,669円
保証金/敷金 5,479,090円
礼金 0円
坪単価
賃料 18,000円
共益費 4,000円
月額合計 22,000円
保証金/敷金 179,997円
礼金 0円
賃料条件補足事項 定借(期間相談)、償却10%・再契約料無し、指定保証会社要加入、火災保険要加入

日本教育会館のその他空室情報

階数 広さ 賃料合計(税別) 坪単価 保証金・敷金 礼金
5F 21.00坪 462,000円 22,000円 3,780,000円 0円
フロア詳細
フロア詳細
1F 30.44坪 669,669円 22,000円 5,479,090円 0円
フロア詳細
フロア詳細
空室情報や物件見学などお気軽にお問い合わせください。
ESTATE AGENCY
株式会社エステートエージェンシー
定休日:日曜日・祝日 営業時間:09:00~19:00
でお問い合わせ(無料メール 簡単1 電話でお問い合わせ(無料)
※貸主様からのご要望の為、条件を未公開としている場合がございます。詳しくお聞きになりたい場合は、弊社までご連絡ください。
※賃料、共益費、礼金、その他費用には別途消費税が掛かります。
※上記金額は募集条件です。条件交渉などについてはお気軽にお問い合わせください。
※確認時点での情報のため、リアルタイム情報はお問合せください。

日本教育会館の施設情報カテゴリ

1棟貸可能
駅直結
大型EV
大型駐車場
大通り沿い
傘いらず
貸会議室
空中店舗相談
ヴィンテージ・レトロ
シャワートイレ
セキュリティ
SOHO(住居兼事務所)
デザイナーズ・個性派
トイレ男女別
荷物EVあり
ハイグレードオフィス
ネット回線引込可
ビル内貸倉庫
免振・制振構造
有人警備
ランドマーク
リニューアル
フリースペース
レンタルオフィス
新耐震
駅近(出口
築浅
川沿い、公園沿い
自転車置場

自転車置場料金: ー 円

日本教育会館のアクセスマップ

空室情報や物件見学などお気軽にお問い合わせください。
ESTATE AGENCY
株式会社エステートエージェンシー
定休日:日曜日・祝日 営業時間:09:00~19:00
でお問い合わせ(無料メール 簡単1 電話でお問い合わせ(無料)