フロア詳細情報

KURAMACHI BLDG(東京都千代田区内神田1丁目9番8号)のフロア情報

空室状況はお電話一本でスムーズにご案内!まずはお気軽に0120-939-204へどうぞ。
でお問い合わせ(無料メール 簡単1
※上記の写真は人物等が映っている場合、修正・加工が施されています。
物件情報更新日: 2026/03/17

KURAMACHI BLDGの物件概要

ビル名
KURAMACHI BLDG
物件番号/物件ID 20599
住所 東京都千代田区内神田1丁目9番8号 面積(平米) 108.46㎡
最寄り駅
【最寄り駅1】

JR山手線 神田駅  徒歩5分

【最寄り駅2】

東京メトロ丸ノ内線 淡路町駅  徒歩6分

【最寄り駅3】

都営地下鉄新宿線 小川町駅  徒歩6分

【最寄り駅4】

東京メトロ丸ノ内線 大手町駅  徒歩7分

坪数 32.81坪
実行面積
空調 個別
竣工 2024年01月01日
構造 RC地上9階建地下0階
エレベーター基数 1 荷物用エレベーター基数
階数 地上 4階 退去日 退去日の詳細につきましては、お問い合わせください。
備考
ビル名
KURAMACHI BLDG
住所 20599
最寄り駅
【最寄り駅1】

JR山手線 神田駅  徒歩5分

【最寄り駅2】

東京メトロ丸ノ内線 淡路町駅  徒歩6分

【最寄り駅3】

都営地下鉄新宿線 小川町駅  徒歩6分

【最寄り駅4】

東京メトロ丸ノ内線 大手町駅  徒歩7分

エレベーター基数 1
階数 4階
物件番号/物件ID 20599
面積(平米) 108.46㎡
坪数 32.81坪
実行面積
空調 個別
竣工 2024年01月01日
構造 RC地上9階建地下0階
荷物用エレベーター基数
退去日 退去日の詳細につきましては、お問い合わせください。
備考

KURAMACHI BLDGの募集価格

総額 坪単価
賃料 非公開 賃料 非公開
共益費 非公開 共益費 非公開
月額合計 非公開 月額合計 非公開
保証金/敷金 非公開 保証金/敷金 非公開
礼金 非公開 礼金 非公開
賃料条件補足事項 更新料1ヶ月・償却2ヶ月(解約時)、火災保険要加入
総額
賃料 非公開
共益費 非公開
月額合計 非公開
保証金/敷金 非公開
礼金 非公開
坪単価
賃料 非公開
共益費 非公開
月額合計 非公開
保証金/敷金 非公開
礼金 非公開
賃料条件補足事項 更新料1ヶ月・償却2ヶ月(解約時)、火災保険要加入

KURAMACHI BLDGのその他空室情報

階数 広さ 賃料合計(税別) 坪単価 保証金・敷金 礼金
3F 32.81坪 非公開 非公開 非公開 非公開
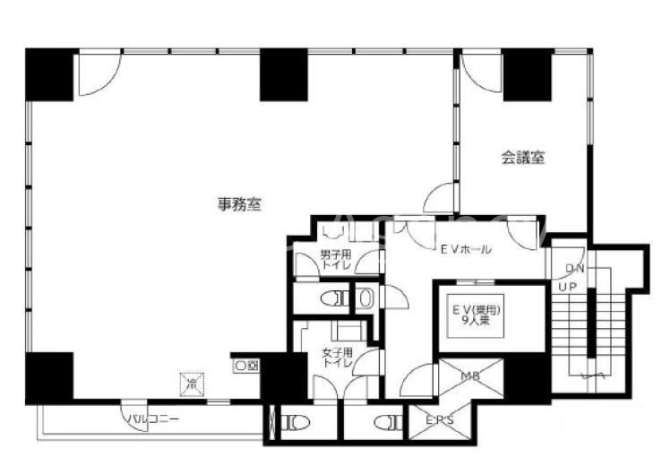
フロア詳細
フロア詳細
空室情報や物件見学などお気軽にお問い合わせください。
ESTATE AGENCY
株式会社エステートエージェンシー
定休日:日曜日・祝日 営業時間:09:00~19:00
でお問い合わせ(無料メール 簡単1 電話でお問い合わせ(無料)
※貸主様からのご要望の為、条件を未公開としている場合がございます。詳しくお聞きになりたい場合は、弊社までご連絡ください。
※賃料、共益費、礼金、その他費用には別途消費税が掛かります。
※上記金額は募集条件です。条件交渉などについてはお気軽にお問い合わせください。
※確認時点での情報のため、リアルタイム情報はお問合せください。

KURAMACHI BLDGの施設情報カテゴリ

1棟貸可能
駅直結
大型EV
大型駐車場
大通り沿い
傘いらず
貸会議室
空中店舗相談
ヴィンテージ・レトロ
シャワートイレ
セキュリティ
SOHO(住居兼事務所)
デザイナーズ・個性派
トイレ男女別
荷物EVあり
ハイグレードオフィス
ネット回線引込可
ビル内貸倉庫
免振・制振構造
有人警備
ランドマーク
リニューアル
フリースペース
レンタルオフィス
新耐震
駅近(出口
築浅
川沿い、公園沿い
自転車置場

自転車置場料金: ー 円

KURAMACHI BLDGのアクセスマップ

空室情報や物件見学などお気軽にお問い合わせください。
ESTATE AGENCY
株式会社エステートエージェンシー
定休日:日曜日・祝日 営業時間:09:00~19:00
でお問い合わせ(無料メール 簡単1 電話でお問い合わせ(無料)

よく似た物件