フロア詳細情報

MA SQUARE AKIHABARA(東京都千代田区神田須田町2丁目1番1号)のフロア情報

空室状況はお電話一本でスムーズにご案内!まずはお気軽に0120-939-204へどうぞ。
でお問い合わせ(無料メール 簡単1
※上記の写真は人物等が映っている場合、修正・加工が施されています。
物件情報更新日: 2026/04/14

MA SQUARE AKIHABARAの物件概要

ビル名
MA SQUARE AKIHABARA
物件番号/物件ID 7779
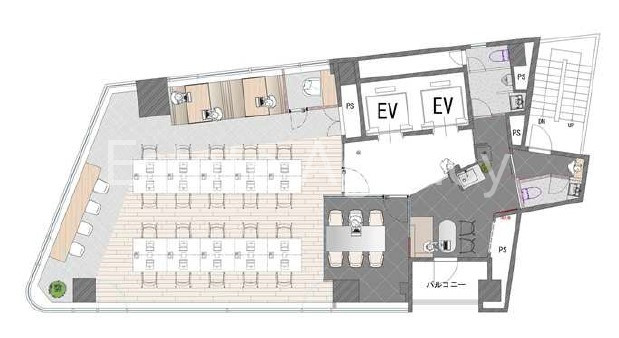
住所 東京都千代田区神田須田町2丁目1番1号 面積(平米) 132.16㎡
最寄り駅
【最寄り駅1】

東京メトロ銀座線 神田駅  徒歩3分

【最寄り駅2】

JR山手線 秋葉原駅  徒歩4分

【最寄り駅3】

都営地下鉄新宿線 小川町駅  徒歩4分

【最寄り駅4】

東京メトロ丸ノ内線 淡路町駅  徒歩4分

坪数 39.98坪
実行面積
空調 個別
竣工 1990年07月01日
構造 鉄骨地上8階建地下1階
エレベーター基数 2 荷物用エレベーター基数
階数 地上 3階 退去日 退去日の詳細につきましては、お問い合わせください。
備考 2023/4:基準階リニューアル(セットアップ)完了
2023/5:外壁修繕予定
ビル名
MA SQUARE AKIHABARA
住所 7779
最寄り駅
【最寄り駅1】

東京メトロ銀座線 神田駅  徒歩3分

【最寄り駅2】

JR山手線 秋葉原駅  徒歩4分

【最寄り駅3】

都営地下鉄新宿線 小川町駅  徒歩4分

【最寄り駅4】

東京メトロ丸ノ内線 淡路町駅  徒歩4分

エレベーター基数 2
階数 3階
物件番号/物件ID 7779
面積(平米) 132.16㎡
坪数 39.98坪
実行面積
空調 個別
竣工 1990年07月01日
構造 鉄骨地上8階建地下1階
荷物用エレベーター基数
退去日 退去日の詳細につきましては、お問い合わせください。
備考 2023/4:基準階リニューアル(セットアップ)完了
2023/5:外壁修繕予定

MA SQUARE AKIHABARAの募集価格

総額 坪単価
賃料 959,520円 賃料 24,001円
共益費 0円 共益費 0円
月額合計 959,520円 月額合計 24,001円
保証金/敷金 5,757,120円 保証金/敷金 144,000円
礼金 0円 礼金 0円
賃料条件補足事項 償却・更新料無
総額
賃料 959,520円
共益費 0円
月額合計 959,520円
保証金/敷金 5,757,120円
礼金 0円
坪単価
賃料 24,001円
共益費 0円
月額合計 24,001円
保証金/敷金 144,000円
礼金 0円
賃料条件補足事項 償却・更新料無

MA SQUARE AKIHABARAのその他空室情報

階数 広さ 賃料合計(税別) 坪単価 保証金・敷金 礼金
7F 39.98坪 959,520円 24,001円 5,757,120円 0円
フロア詳細
フロア詳細
6F 106.02坪 2,438,460円 23,000円 16,963,200円 非公開
フロア詳細
フロア詳細
空室情報や物件見学などお気軽にお問い合わせください。
ESTATE AGENCY
株式会社エステートエージェンシー
定休日:日曜日・祝日 営業時間:09:00~19:00
でお問い合わせ(無料メール 簡単1 電話でお問い合わせ(無料)

MA SQUARE AKIHABARAの基本情報

インフォメーション
この神田須田町211ビルは住所東京都千代田区神田須田町1番1号の1990年竣工、地上8階建の賃貸オフィスビルです。最寄駅は、東京メトロ銀座線神田駅徒歩3分のアクセス。設備情報はシャワートイレ、セキュリティ、24時間利用可能、光回線。是非一度ご内覧下さいませ! その他、事務所、オフィス移転、不動産の事なら何でもお気軽にご相談下さい。
※貸主様からのご要望の為、条件を未公開としている場合がございます。詳しくお聞きになりたい場合は、弊社までご連絡ください。
※賃料、共益費、礼金、その他費用には別途消費税が掛かります。
※上記金額は募集条件です。条件交渉などについてはお気軽にお問い合わせください。
※確認時点での情報のため、リアルタイム情報はお問合せください。

MA SQUARE AKIHABARAの施設情報カテゴリ

1棟貸可能
駅直結
大型EV
大型駐車場
大通り沿い
傘いらず
貸会議室
空中店舗相談
ヴィンテージ・レトロ
シャワートイレ
セキュリティ
SOHO(住居兼事務所)
デザイナーズ・個性派
トイレ男女別
荷物EVあり
ハイグレードオフィス
ネット回線引込可
ビル内貸倉庫
免振・制振構造
有人警備
ランドマーク
リニューアル
フリースペース
レンタルオフィス
新耐震
駅近(出口
築浅
川沿い、公園沿い
自転車置場

自転車置場料金: ー 円

MA SQUARE AKIHABARAのアクセスマップ

空室情報や物件見学などお気軽にお問い合わせください。
ESTATE AGENCY
株式会社エステートエージェンシー
定休日:日曜日・祝日 営業時間:09:00~19:00
でお問い合わせ(無料メール 簡単1 電話でお問い合わせ(無料)

よく似た物件

最近チェックした物件