フロア詳細情報

二引(東京都千代田区神田淡路町1丁目5番1号)のフロア情報

二引のビル詳細を見る
空室状況はお電話一本でスムーズにご案内!まずはお気軽に0120-939-204へどうぞ。
でお問い合わせ(無料メール 簡単1
※上記の写真は人物等が映っている場合、修正・加工が施されています。
物件情報更新日: 2025/09/09

二引の物件概要

ビル名
二引
物件番号/物件ID 7800
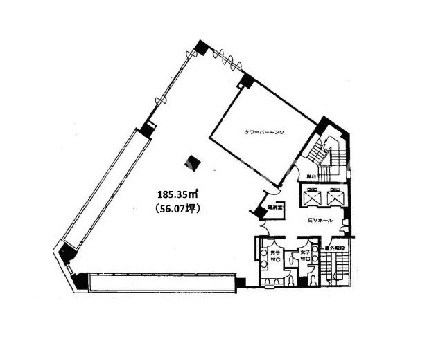
住所 東京都千代田区神田淡路町1丁目5番1号 面積(平米) 185.35㎡
最寄り駅
【最寄り駅1】

都営地下鉄新宿線 小川町駅  徒歩1分

【最寄り駅2】

東京メトロ丸ノ内線 淡路町駅  徒歩1分

【最寄り駅3】

東京メトロ千代田線 新御茶ノ水駅  徒歩3分

【最寄り駅4】

JR山手線 秋葉原駅  徒歩8分

坪数 56.07坪
実行面積
空調 個別
竣工 1994-01
構造 鉄骨地上8階建地下0階
エレベーター基数 2 荷物用エレベーター基数
階数 地上 3階 退去日 退去日の詳細につきましては、お問い合わせください。
備考 2026年3月入居可能(予定)
ビル名
二引
住所 7800
最寄り駅
【最寄り駅1】

都営地下鉄新宿線 小川町駅  徒歩1分

【最寄り駅2】

東京メトロ丸ノ内線 淡路町駅  徒歩1分

【最寄り駅3】

東京メトロ千代田線 新御茶ノ水駅  徒歩3分

【最寄り駅4】

JR山手線 秋葉原駅  徒歩8分

エレベーター基数 2
階数 3階
物件番号/物件ID 7800
面積(平米) 185.35㎡
坪数 56.07坪
実行面積
空調 個別
竣工 1994-01
構造 鉄骨地上8階建地下0階
荷物用エレベーター基数
退去日 退去日の詳細につきましては、お問い合わせください。
備考 2026年3月入居可能(予定)

二引の募集価格

総額 坪単価
賃料 非公開 賃料 非公開
共益費 非公開 共益費 非公開
月額合計 非公開 月額合計 非公開
保証金/敷金 非公開 保証金/敷金 非公開
礼金 非公開 礼金 非公開
賃料条件補足事項 更新料:無し・償却:無し
総額
賃料 非公開
共益費 非公開
月額合計 非公開
保証金/敷金 非公開
礼金 非公開
坪単価
賃料 非公開
共益費 非公開
月額合計 非公開
保証金/敷金 非公開
礼金 非公開
賃料条件補足事項 更新料:無し・償却:無し
空室情報や物件見学などお気軽にお問い合わせください。
ESTATE AGENCY
株式会社エステートエージェンシー
定休日:日曜日・祝日 営業時間:09:00~19:00
でお問い合わせ(無料メール 簡単1 電話でお問い合わせ(無料)
※貸主様からのご要望の為、条件を未公開としている場合がございます。詳しくお聞きになりたい場合は、弊社までご連絡ください。
※賃料、共益費、礼金、その他費用には別途消費税が掛かります。
※上記金額は募集条件です。条件交渉などについてはお気軽にお問い合わせください。

二引の施設情報カテゴリ

1棟貸可能
駅直結
大型EV
大型駐車場
大通り沿い
傘いらず
貸会議室
空中店舗相談
ヴィンテージ・レトロ
シャワートイレ
セキュリティ
SOHO(住居兼事務所)
デザイナーズ・個性派
トイレ男女別
荷物EVあり
ハイグレードオフィス
ネット回線引込可
ビル内貸倉庫
免振・制振構造
有人警備
ランドマーク
リニューアル
フリースペース
レンタルオフィス
新耐震
駅近(出口
築浅
川沿い、公園沿い
自転車置場

自転車置場料金: ー 円

二引のアクセスマップ

空室情報や物件見学などお気軽にお問い合わせください。
ESTATE AGENCY
株式会社エステートエージェンシー
定休日:日曜日・祝日 営業時間:09:00~19:00
でお問い合わせ(無料メール 簡単1 電話でお問い合わせ(無料)

最近チェックした物件