フロア詳細情報

日本橋本町東石(東京都中央区日本橋本町4丁目9番4号)のフロア情報

日本橋本町東石のビル詳細を見る
空室状況はお電話一本でスムーズにご案内!まずはお気軽に0120-939-204へどうぞ。
でお問い合わせ(無料メール 簡単1
※上記の写真は人物等が映っている場合、修正・加工が施されています。
物件情報更新日: 2024/07/19

日本橋本町東石の物件概要

ビル名
日本橋本町東石
物件番号/物件ID 20780
住所 東京都中央区日本橋本町4丁目9番4号 面積(平米) 69.85㎡
最寄り駅
【最寄り駅1】

JR山手線 神田駅  徒歩5分

【最寄り駅2】

東京メトロ銀座線 三越前駅  徒歩4分

【最寄り駅3】

東京メトロ日比谷線 小伝馬町駅  徒歩4分

【最寄り駅4】

JR総武本線 新日本橋駅  徒歩3分

坪数 21.13坪
実行面積
空調 個別
竣工 2023年01月01日
構造 鉄骨地上14階建地下0階
エレベーター基数 1 荷物用エレベーター基数
階数 地上 12階 退去日 退去日の詳細につきましては、お問い合わせください。
備考 床スケルトン(OA無)
ビル名
日本橋本町東石
住所 20780
最寄り駅
【最寄り駅1】

JR山手線 神田駅  徒歩5分

【最寄り駅2】

東京メトロ銀座線 三越前駅  徒歩4分

【最寄り駅3】

東京メトロ日比谷線 小伝馬町駅  徒歩4分

【最寄り駅4】

JR総武本線 新日本橋駅  徒歩3分

エレベーター基数 1
階数 12階
物件番号/物件ID 20780
面積(平米) 69.85㎡
坪数 21.13坪
実行面積
空調 個別
竣工 2023年01月01日
構造 鉄骨地上14階建地下0階
荷物用エレベーター基数
退去日 退去日の詳細につきましては、お問い合わせください。
備考 床スケルトン(OA無)

日本橋本町東石の募集価格

総額 坪単価
賃料 非公開 賃料 非公開
共益費 非公開 共益費 非公開
月額合計 非公開 月額合計 非公開
保証金/敷金 非公開 保証金/敷金 非公開
礼金 非公開 礼金 非公開
賃料条件補足事項
総額
賃料 非公開
共益費 非公開
月額合計 非公開
保証金/敷金 非公開
礼金 非公開
坪単価
賃料 非公開
共益費 非公開
月額合計 非公開
保証金/敷金 非公開
礼金 非公開
賃料条件補足事項

日本橋本町東石のその他空室情報

階数 広さ 賃料合計(税別) 坪単価 保証金・敷金 礼金
10F 21.13坪 非公開 非公開 非公開 非公開
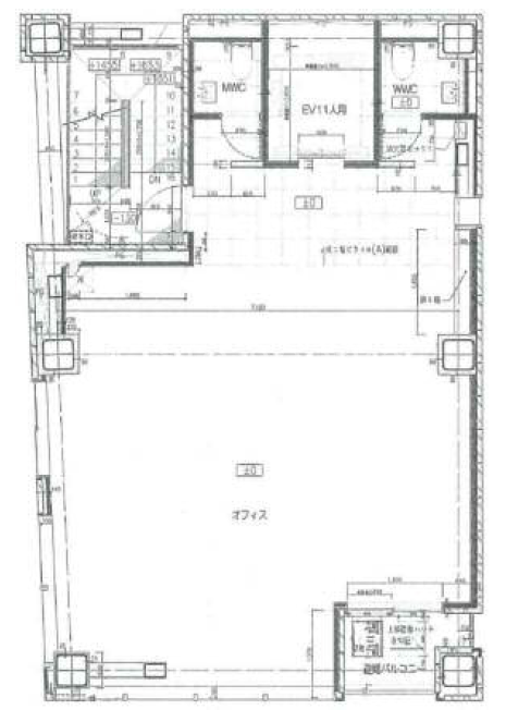
フロア詳細
フロア詳細
空室情報や物件見学などお気軽にお問い合わせください。
ESTATE AGENCY
株式会社エステートエージェンシー
定休日:日曜日・祝日 営業時間:09:00~19:00
でお問い合わせ(無料メール 簡単1 電話でお問い合わせ(無料)
※貸主様からのご要望の為、条件を未公開としている場合がございます。詳しくお聞きになりたい場合は、弊社までご連絡ください。
※賃料、共益費、礼金、その他費用には別途消費税が掛かります。
※上記金額は募集条件です。条件交渉などについてはお気軽にお問い合わせください。

日本橋本町東石の施設情報カテゴリ

1棟貸可能
駅直結
大型EV
大型駐車場
大通り沿い
傘いらず
貸会議室
空中店舗相談
ヴィンテージ・レトロ
シャワートイレ
セキュリティ
SOHO(住居兼事務所)
デザイナーズ・個性派
トイレ男女別
荷物EVあり
ハイグレードオフィス
ネット回線引込可
ビル内貸倉庫
免振・制振構造
有人警備
ランドマーク
リニューアル
フリースペース
レンタルオフィス
新耐震
駅近(出口
築浅
川沿い、公園沿い
自転車置場

自転車置場料金: ー 円

日本橋本町東石のアクセスマップ

空室情報や物件見学などお気軽にお問い合わせください。
ESTATE AGENCY
株式会社エステートエージェンシー
定休日:日曜日・祝日 営業時間:09:00~19:00
でお問い合わせ(無料メール 簡単1 電話でお問い合わせ(無料)

よく似た物件