フロア詳細情報

旭光(東京都中央区日本橋浜町3丁目41番4号)のフロア情報

旭光のビル詳細を見る
空室状況はお電話一本でスムーズにご案内!まずはお気軽に0120-939-204へどうぞ。
でお問い合わせ(無料メール 簡単1
※上記の写真は人物等が映っている場合、修正・加工が施されています。
物件情報更新日: 2025/12/01

旭光の物件概要

ビル名
旭光
物件番号/物件ID 8355
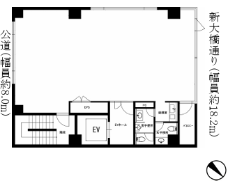
住所 東京都中央区日本橋浜町3丁目41番4号 面積(平米) 104.79㎡
最寄り駅
【最寄り駅1】

都営地下鉄新宿線 浜町駅  徒歩4分

【最寄り駅2】

都営地下鉄大江戸線 森下駅  徒歩8分

【最寄り駅3】

東京メトロ半蔵門線 水天宮前駅  徒歩8分

【最寄り駅4】

都営地下鉄新宿線 森下駅  徒歩8分

坪数 31.70坪
実行面積
空調
竣工 1991年03月01日
構造 SRC地上9階建地下0階
エレベーター基数 1 荷物用エレベーター基数
階数 地上 9階 退去日 退去日の詳細につきましては、お問い合わせください。
備考
ビル名
旭光
住所 8355
最寄り駅
【最寄り駅1】

都営地下鉄新宿線 浜町駅  徒歩4分

【最寄り駅2】

都営地下鉄大江戸線 森下駅  徒歩8分

【最寄り駅3】

東京メトロ半蔵門線 水天宮前駅  徒歩8分

【最寄り駅4】

都営地下鉄新宿線 森下駅  徒歩8分

エレベーター基数 1
階数 9階
物件番号/物件ID 8355
面積(平米) 104.79㎡
坪数 31.70坪
実行面積
空調
竣工 1991年03月01日
構造 SRC地上9階建地下0階
荷物用エレベーター基数
退去日 退去日の詳細につきましては、お問い合わせください。
備考

旭光の募集価格

総額 坪単価
賃料 380,363円 賃料 11,999円
共益費 95,100円 共益費 3,000円
月額合計 475,463円 月額合計 14,999円
保証金/敷金 2,282,178円 保証金/敷金 71,993円
礼金 0円 礼金 0円
賃料条件補足事項 更新料1ヶ月・償却なし
総額
賃料 380,363円
共益費 95,100円
月額合計 475,463円
保証金/敷金 2,282,178円
礼金 0円
坪単価
賃料 11,999円
共益費 3,000円
月額合計 14,999円
保証金/敷金 71,993円
礼金 0円
賃料条件補足事項 更新料1ヶ月・償却なし
空室情報や物件見学などお気軽にお問い合わせください。
ESTATE AGENCY
株式会社エステートエージェンシー
定休日:日曜日・祝日 営業時間:09:00~19:00
でお問い合わせ(無料メール 簡単1 電話でお問い合わせ(無料)
※貸主様からのご要望の為、条件を未公開としている場合がございます。詳しくお聞きになりたい場合は、弊社までご連絡ください。
※賃料、共益費、礼金、その他費用には別途消費税が掛かります。
※上記金額は募集条件です。条件交渉などについてはお気軽にお問い合わせください。

旭光の施設情報カテゴリ

1棟貸可能
駅直結
大型EV
大型駐車場
大通り沿い
傘いらず
貸会議室
空中店舗相談
ヴィンテージ・レトロ
シャワートイレ
セキュリティ
SOHO(住居兼事務所)
デザイナーズ・個性派
トイレ男女別
荷物EVあり
ハイグレードオフィス
ネット回線引込可
ビル内貸倉庫
免振・制振構造
有人警備
ランドマーク
リニューアル
フリースペース
レンタルオフィス
新耐震
駅近(出口
築浅
川沿い、公園沿い
自転車置場

自転車置場料金: ー 円

旭光のアクセスマップ

空室情報や物件見学などお気軽にお問い合わせください。
ESTATE AGENCY
株式会社エステートエージェンシー
定休日:日曜日・祝日 営業時間:09:00~19:00
でお問い合わせ(無料メール 簡単1 電話でお問い合わせ(無料)

よく似た物件

最近チェックした物件