フロア詳細情報

三辰(東京都新宿区大久保1丁目14番15号)のフロア情報

三辰のビル詳細を見る
空室状況はお電話一本でスムーズにご案内!まずはお気軽に0120-939-204へどうぞ。
でお問い合わせ(無料メール 簡単1
※上記の写真は人物等が映っている場合、修正・加工が施されています。
物件情報更新日: 2026/05/17

三辰の物件概要

ビル名
三辰
物件番号/物件ID 1263
住所 東京都新宿区大久保1丁目14番15号 面積(平米) 108.06㎡
最寄り駅
【最寄り駅1】

JR山手線 新大久保駅  徒歩5分

【最寄り駅2】

都営地下鉄大江戸線 東新宿駅  徒歩6分

【最寄り駅3】

東京メトロ副都心線 西早稲田駅  徒歩11分

【最寄り駅4】

東京メトロ丸ノ内線 新宿駅  徒歩13分

坪数 32.69坪
実行面積
空調 個別
竣工 1988年04月01日
構造 RC造地上9階建地下1階
エレベーター基数 1 荷物用エレベーター基数
階数 地上 6階 退去日 退去日の詳細につきましては、お問い合わせください。
備考
ビル名
三辰
住所 1263
最寄り駅
【最寄り駅1】

JR山手線 新大久保駅  徒歩5分

【最寄り駅2】

都営地下鉄大江戸線 東新宿駅  徒歩6分

【最寄り駅3】

東京メトロ副都心線 西早稲田駅  徒歩11分

【最寄り駅4】

東京メトロ丸ノ内線 新宿駅  徒歩13分

エレベーター基数 1
階数 6階
物件番号/物件ID 1263
面積(平米) 108.06㎡
坪数 32.69坪
実行面積
空調 個別
竣工 1988年04月01日
構造 RC造地上9階建地下1階
荷物用エレベーター基数
退去日 退去日の詳細につきましては、お問い合わせください。
備考

三辰の募集価格

総額 坪単価
賃料 457,660円 賃料 14,001円
共益費 98,070円 共益費 3,000円
月額合計 555,730円 月額合計 17,001円
保証金/敷金 2,745,960円 保証金/敷金 84,000円
礼金 0円 礼金 0円
賃料条件補足事項
総額
賃料 457,660円
共益費 98,070円
月額合計 555,730円
保証金/敷金 2,745,960円
礼金 0円
坪単価
賃料 14,001円
共益費 3,000円
月額合計 17,001円
保証金/敷金 84,000円
礼金 0円
賃料条件補足事項

三辰のその他空室情報

階数 広さ 賃料合計(税別) 坪単価 保証金・敷金 礼金
3F 41.33坪 702,536円 16,999円 3,471,276円 0円
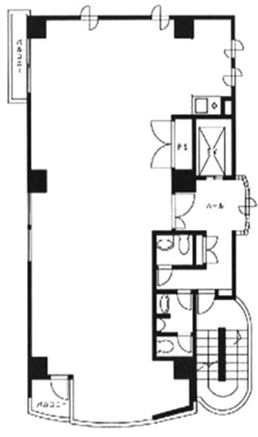
フロア詳細
フロア詳細
空室情報や物件見学などお気軽にお問い合わせください。
ESTATE AGENCY
株式会社エステートエージェンシー
定休日:日曜日・祝日 営業時間:09:00~19:00
でお問い合わせ(無料メール 簡単1 電話でお問い合わせ(無料)
※貸主様からのご要望の為、条件を未公開としている場合がございます。詳しくお聞きになりたい場合は、弊社までご連絡ください。
※賃料、共益費、礼金、その他費用には別途消費税が掛かります。
※上記金額は募集条件です。条件交渉などについてはお気軽にお問い合わせください。
※確認時点での情報のため、リアルタイム情報はお問合せください。

三辰の施設情報カテゴリ

1棟貸可能
駅直結
大型EV
大型駐車場
大通り沿い
傘いらず
貸会議室
空中店舗相談
ヴィンテージ・レトロ
シャワートイレ
セキュリティ
SOHO(住居兼事務所)
デザイナーズ・個性派
トイレ男女別
荷物EVあり
ハイグレードオフィス
ネット回線引込可
ビル内貸倉庫
免振・制振構造
有人警備
ランドマーク
リニューアル
フリースペース
レンタルオフィス
新耐震
駅近(出口
築浅
川沿い、公園沿い
自転車置場

自転車置場料金: ー 円

三辰のアクセスマップ

空室情報や物件見学などお気軽にお問い合わせください。
ESTATE AGENCY
株式会社エステートエージェンシー
定休日:日曜日・祝日 営業時間:09:00~19:00
でお問い合わせ(無料メール 簡単1 電話でお問い合わせ(無料)

よく似た物件

申し訳ございません。
会員登録をお願い致します。

会員登録のメリット

  • 1、非公開物件情報のご紹介が可能です!
  • 2、ご希望条件をいただきましたら新着物件情報等を定期的に配信いたします!
  • 3、会員登録されたお客様にはご契約時に特別なプレゼントをご用意しております!
会員登録

※会員登録は同業者不可、メールアドレスは企業ドメインのみ
※GmailやYahooなどのフリーメールでは会員登録できないこともありますのでご了承ください。