フロア詳細情報

SIL人形町(東京都中央区日本橋人形町2丁目6番7号)のフロア情報

SIL人形町のビル詳細を見る
空室状況はお電話一本でスムーズにご案内!まずはお気軽に0120-939-204へどうぞ。
でお問い合わせ(無料メール 簡単1
※上記の写真は人物等が映っている場合、修正・加工が施されています。
物件情報更新日: 2025/10/18

SIL人形町の物件概要

ビル名
SIL人形町
物件番号/物件ID 23039
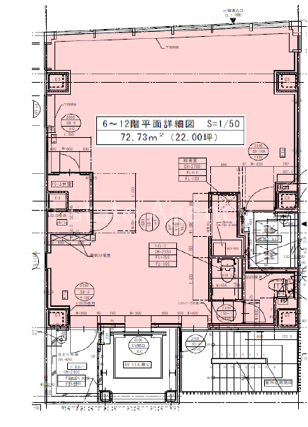
住所 東京都中央区日本橋人形町2丁目6番7号 面積(平米) 72.72㎡
最寄り駅
【最寄り駅1】

都営地下鉄浅草線 人形町駅  徒歩1分

【最寄り駅2】

東京メトロ半蔵門線 水天宮前駅  徒歩6分

【最寄り駅3】

都営地下鉄新宿線 浜町駅  徒歩6分

【最寄り駅4】

都営地下鉄新宿線 馬喰横山駅  徒歩8分

坪数 22.00坪
実行面積
空調 個別
竣工 2023年11月01日
構造 鉄骨地上12階建
エレベーター基数 1 荷物用エレベーター基数
階数 地上 9階 退去日 退去日の詳細につきましては、お問い合わせください。
備考
ビル名
SIL人形町
住所 23039
最寄り駅
【最寄り駅1】

都営地下鉄浅草線 人形町駅  徒歩1分

【最寄り駅2】

東京メトロ半蔵門線 水天宮前駅  徒歩6分

【最寄り駅3】

都営地下鉄新宿線 浜町駅  徒歩6分

【最寄り駅4】

都営地下鉄新宿線 馬喰横山駅  徒歩8分

エレベーター基数 1
階数 9階
物件番号/物件ID 23039
面積(平米) 72.72㎡
坪数 22.00坪
実行面積
空調 個別
竣工 2023年11月01日
構造 鉄骨地上12階建
荷物用エレベーター基数
退去日 退去日の詳細につきましては、お問い合わせください。
備考

SIL人形町の募集価格

総額 坪単価
賃料 490,000円 賃料 22,273円
共益費 0円 共益費 0円
月額合計 490,000円 月額合計 22,273円
保証金/敷金 4,900,000円 保証金/敷金 222,728円
礼金 490,000円 礼金 22,273円
賃料条件補足事項 償却1ヶ月、更新料:新賃料1ヶ月
総額
賃料 490,000円
共益費 0円
月額合計 490,000円
保証金/敷金 4,900,000円
礼金 490,000円
坪単価
賃料 22,273円
共益費 0円
月額合計 22,273円
保証金/敷金 222,728円
礼金 22,273円
賃料条件補足事項 償却1ヶ月、更新料:新賃料1ヶ月

SIL人形町のその他空室情報

階数 広さ 賃料合計(税別) 坪単価 保証金・敷金 礼金
4F 22.00坪 520,000円 23,637円 6,240,000円 520,000円
フロア詳細
フロア詳細
11F 22.00坪 510,000円 23,182円 5,100,000円 510,000円
フロア詳細
フロア詳細
空室情報や物件見学などお気軽にお問い合わせください。
ESTATE AGENCY
株式会社エステートエージェンシー
定休日:日曜日・祝日 営業時間:09:00~19:00
でお問い合わせ(無料メール 簡単1 電話でお問い合わせ(無料)
※貸主様からのご要望の為、条件を未公開としている場合がございます。詳しくお聞きになりたい場合は、弊社までご連絡ください。
※賃料、共益費、礼金、その他費用には別途消費税が掛かります。
※上記金額は募集条件です。条件交渉などについてはお気軽にお問い合わせください。

SIL人形町の施設情報カテゴリ

1棟貸可能
駅直結
大型EV
大型駐車場
大通り沿い
傘いらず
貸会議室
空中店舗相談
ヴィンテージ・レトロ
シャワートイレ
セキュリティ
SOHO(住居兼事務所)
デザイナーズ・個性派
トイレ男女別
荷物EVあり
ハイグレードオフィス
ネット回線引込可
ビル内貸倉庫
免振・制振構造
有人警備
ランドマーク
リニューアル
フリースペース
レンタルオフィス
新耐震
駅近(出口
築浅
川沿い、公園沿い
自転車置場

自転車置場料金: ー 円

SIL人形町のアクセスマップ

空室情報や物件見学などお気軽にお問い合わせください。
ESTATE AGENCY
株式会社エステートエージェンシー
定休日:日曜日・祝日 営業時間:09:00~19:00
でお問い合わせ(無料メール 簡単1 電話でお問い合わせ(無料)

よく似た物件

最近チェックした物件