フロア詳細情報

芝大門第一(東京都港区芝大門1丁目3番9号)のフロア情報

芝大門第一のビル詳細を見る
空室状況はお電話一本でスムーズにご案内!まずはお気軽に0120-939-204へどうぞ。
でお問い合わせ(無料メール 簡単1
※上記の写真は人物等が映っている場合、修正・加工が施されています。
物件情報更新日: 2025/10/01

芝大門第一の物件概要

ビル名
芝大門第一
物件番号/物件ID 8714
住所 東京都港区芝大門1丁目3番9号 面積(平米) 69.09㎡
最寄り駅
【最寄り駅1】

都営地下鉄浅草線 大門駅  徒歩3分

【最寄り駅2】

JR山手線 浜松町駅  徒歩5分

【最寄り駅3】

都営地下鉄三田線 御成門駅  徒歩4分

【最寄り駅4】

都営地下鉄大江戸線 汐留駅  徒歩8分

坪数 20.90坪
実行面積
空調 個別
竣工 1986年05月01日
構造 SRC地上10階建地下0階
エレベーター基数 1 荷物用エレベーター基数
階数 地上 3階 退去日 退去日の詳細につきましては、お問い合わせください。
備考
ビル名
芝大門第一
住所 8714
最寄り駅
【最寄り駅1】

都営地下鉄浅草線 大門駅  徒歩3分

【最寄り駅2】

JR山手線 浜松町駅  徒歩5分

【最寄り駅3】

都営地下鉄三田線 御成門駅  徒歩4分

【最寄り駅4】

都営地下鉄大江戸線 汐留駅  徒歩8分

エレベーター基数 1
階数 3階
物件番号/物件ID 8714
面積(平米) 69.09㎡
坪数 20.90坪
実行面積
空調 個別
竣工 1986年05月01日
構造 SRC地上10階建地下0階
荷物用エレベーター基数
退去日 退去日の詳細につきましては、お問い合わせください。
備考

芝大門第一の募集価格

総額 坪単価
賃料 292,600円 賃料 14,000円
共益費 0円 共益費 0円
月額合計 292,600円 月額合計 14,000円
保証金/敷金 2,048,200円 保証金/敷金 98,000円
礼金 0円 礼金 0円
賃料条件補足事項 更新料新賃料1ヶ月・償却1ヶ月、解約予告4ヶ月、契約2年
総額
賃料 292,600円
共益費 0円
月額合計 292,600円
保証金/敷金 2,048,200円
礼金 0円
坪単価
賃料 14,000円
共益費 0円
月額合計 14,000円
保証金/敷金 98,000円
礼金 0円
賃料条件補足事項 更新料新賃料1ヶ月・償却1ヶ月、解約予告4ヶ月、契約2年

芝大門第一のその他空室情報

階数 広さ 賃料合計(税別) 坪単価 保証金・敷金 礼金
2F 19.90坪 278,545円 13,998円 1,949,815円 0円
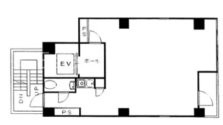
フロア詳細
フロア詳細
空室情報や物件見学などお気軽にお問い合わせください。
ESTATE AGENCY
株式会社エステートエージェンシー
定休日:日曜日・祝日 営業時間:09:00~19:00
でお問い合わせ(無料メール 簡単1 電話でお問い合わせ(無料)
※貸主様からのご要望の為、条件を未公開としている場合がございます。詳しくお聞きになりたい場合は、弊社までご連絡ください。
※賃料、共益費、礼金、その他費用には別途消費税が掛かります。
※上記金額は募集条件です。条件交渉などについてはお気軽にお問い合わせください。

芝大門第一の施設情報カテゴリ

1棟貸可能
駅直結
大型EV
大型駐車場
大通り沿い
傘いらず
貸会議室
空中店舗相談
ヴィンテージ・レトロ
シャワートイレ
セキュリティ
SOHO(住居兼事務所)
デザイナーズ・個性派
トイレ男女別
荷物EVあり
ハイグレードオフィス
ネット回線引込可
ビル内貸倉庫
免振・制振構造
有人警備
ランドマーク
リニューアル
フリースペース
レンタルオフィス
新耐震
駅近(出口
築浅
川沿い、公園沿い
自転車置場

自転車置場料金: ー 円

芝大門第一のアクセスマップ

空室情報や物件見学などお気軽にお問い合わせください。
ESTATE AGENCY
株式会社エステートエージェンシー
定休日:日曜日・祝日 営業時間:09:00~19:00
でお問い合わせ(無料メール 簡単1 電話でお問い合わせ(無料)

よく似た物件

最近チェックした物件