フロア詳細情報

溜池アネックス(東京都港区赤坂1丁目5番15号)のフロア情報

溜池アネックスのビル詳細を見る
空室状況はお電話一本でスムーズにご案内!まずはお気軽に0120-939-204へどうぞ。
でお問い合わせ(無料メール 簡単1
※上記の写真は人物等が映っている場合、修正・加工が施されています。
物件情報更新日: 2025/08/09

溜池アネックスの物件概要

ビル名
溜池アネックス
物件番号/物件ID 23268
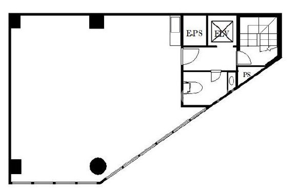
住所 東京都港区赤坂1丁目5番15号 面積(平米) 77.68㎡
最寄り駅
【最寄り駅1】

東京メトロ銀座線 溜池山王駅  徒歩5分

【最寄り駅2】

東京メトロ丸ノ内線 国会議事堂前駅  徒歩5分

【最寄り駅3】

東京メトロ千代田線 赤坂駅  徒歩7分

【最寄り駅4】

東京メトロ銀座線 虎ノ門駅  徒歩8分

坪数 23.50坪
実行面積
空調 個別
竣工 1977年05月01日
構造 SRC地上9階建地下0階
エレベーター基数 1 荷物用エレベーター基数
階数 地上 4階 退去日 退去日の詳細につきましては、お問い合わせください。
備考
ビル名
溜池アネックス
住所 23268
最寄り駅
【最寄り駅1】

東京メトロ銀座線 溜池山王駅  徒歩5分

【最寄り駅2】

東京メトロ丸ノ内線 国会議事堂前駅  徒歩5分

【最寄り駅3】

東京メトロ千代田線 赤坂駅  徒歩7分

【最寄り駅4】

東京メトロ銀座線 虎ノ門駅  徒歩8分

エレベーター基数 1
階数 4階
物件番号/物件ID 23268
面積(平米) 77.68㎡
坪数 23.50坪
実行面積
空調 個別
竣工 1977年05月01日
構造 SRC地上9階建地下0階
荷物用エレベーター基数
退去日 退去日の詳細につきましては、お問い合わせください。
備考

溜池アネックスの募集価格

総額 坪単価
賃料 387,750円 賃料 16,500円
共益費 0円 共益費 0円
月額合計 387,750円 月額合計 16,500円
保証金/敷金 2,326,500円 保証金/敷金 99,000円
礼金 387,750円 礼金 16,500円
賃料条件補足事項 償却3ヶ月、更新料:新賃料1ヶ月
総額
賃料 387,750円
共益費 0円
月額合計 387,750円
保証金/敷金 2,326,500円
礼金 387,750円
坪単価
賃料 16,500円
共益費 0円
月額合計 16,500円
保証金/敷金 99,000円
礼金 16,500円
賃料条件補足事項 償却3ヶ月、更新料:新賃料1ヶ月
空室情報や物件見学などお気軽にお問い合わせください。
ESTATE AGENCY
株式会社エステートエージェンシー
定休日:日曜日・祝日 営業時間:09:00~19:00
でお問い合わせ(無料メール 簡単1 電話でお問い合わせ(無料)
※貸主様からのご要望の為、条件を未公開としている場合がございます。詳しくお聞きになりたい場合は、弊社までご連絡ください。
※賃料、共益費、礼金、その他費用には別途消費税が掛かります。
※上記金額は募集条件です。条件交渉などについてはお気軽にお問い合わせください。

溜池アネックスの施設情報カテゴリ

1棟貸可能
駅直結
大型EV
大型駐車場
大通り沿い
傘いらず
貸会議室
空中店舗相談
ヴィンテージ・レトロ
シャワートイレ
セキュリティ
SOHO(住居兼事務所)
デザイナーズ・個性派
トイレ男女別
荷物EVあり
ハイグレードオフィス
ネット回線引込可
ビル内貸倉庫
免振・制振構造
有人警備
ランドマーク
リニューアル
フリースペース
レンタルオフィス
新耐震
駅近(出口
築浅
川沿い、公園沿い
自転車置場

自転車置場料金: ー 円

溜池アネックスのアクセスマップ

空室情報や物件見学などお気軽にお問い合わせください。
ESTATE AGENCY
株式会社エステートエージェンシー
定休日:日曜日・祝日 営業時間:09:00~19:00
でお問い合わせ(無料メール 簡単1 電話でお問い合わせ(無料)

最近チェックした物件