フロア詳細情報

タイム24(東京都江東区青海2丁目4番32号)のフロア情報

タイム24のビル詳細を見る
空室状況はお電話一本でスムーズにご案内!まずはお気軽に0120-939-204へどうぞ。
でお問い合わせ(無料メール 簡単1
※上記の写真は人物等が映っている場合、修正・加工が施されています。
物件情報更新日: 2026/02/27

タイム24の物件概要

ビル名
タイム24
物件番号/物件ID 20809
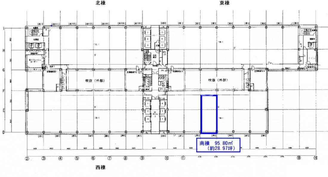
住所 東京都江東区青海2丁目4番32号 面積(平米) 95.76㎡
最寄り駅
【最寄り駅1】

ゆりかもめ テレコムセンター駅  徒歩2分

【最寄り駅2】

ゆりかもめ 船の科学館駅  徒歩7分

【最寄り駅3】

ゆりかもめ 青海駅  徒歩11分

【最寄り駅4】

ゆりかもめ 台場駅  徒歩13分

坪数 28.97坪
実行面積 100.00%
空調 集中
竣工 1996年01月01日
構造 鉄骨地上19階建地下1階
エレベーター基数 16 荷物用エレベーター基数 3
階数 地上 10階 退去日 退去日の詳細につきましては、お問い合わせください。
備考
ビル名
タイム24
住所 20809
最寄り駅
【最寄り駅1】

ゆりかもめ テレコムセンター駅  徒歩2分

【最寄り駅2】

ゆりかもめ 船の科学館駅  徒歩7分

【最寄り駅3】

ゆりかもめ 青海駅  徒歩11分

【最寄り駅4】

ゆりかもめ 台場駅  徒歩13分

エレベーター基数 16
階数 10階
物件番号/物件ID 20809
面積(平米) 95.76㎡
坪数 28.97坪
実行面積 100.00%
空調 集中
竣工 1996年01月01日
構造 鉄骨地上19階建地下1階
荷物用エレベーター基数 3
退去日 退去日の詳細につきましては、お問い合わせください。
備考

タイム24の募集価格

総額 坪単価
賃料 非公開 賃料 非公開
共益費 非公開 共益費 非公開
月額合計 非公開 月額合計 非公開
保証金/敷金 非公開 保証金/敷金 非公開
礼金 非公開 礼金 非公開
賃料条件補足事項
総額
賃料 非公開
共益費 非公開
月額合計 非公開
保証金/敷金 非公開
礼金 非公開
坪単価
賃料 非公開
共益費 非公開
月額合計 非公開
保証金/敷金 非公開
礼金 非公開
賃料条件補足事項

タイム24のその他空室情報

階数 広さ 賃料合計(税別) 坪単価 保証金・敷金 礼金
5F 115.61坪 非公開 非公開 非公開 非公開
フロア詳細
フロア詳細
4F 87.35坪 非公開 非公開 非公開 非公開
フロア詳細
フロア詳細
7F 86.92坪 非公開 非公開 非公開 非公開
フロア詳細
フロア詳細
7F 157.97坪 非公開 非公開 非公開 非公開
フロア詳細
フロア詳細
8F 92.17坪 非公開 非公開 非公開 非公開
フロア詳細
フロア詳細
6F 87.35坪 非公開 非公開 非公開 非公開
フロア詳細
フロア詳細
10F 64.58坪 非公開 非公開 非公開 非公開
フロア詳細
フロア詳細
10F 107.52坪 非公開 非公開 非公開 非公開
フロア詳細
フロア詳細
4F 64.58坪 非公開 非公開 非公開 非公開
フロア詳細
フロア詳細
6F 28.97坪 非公開 非公開 非公開 非公開
フロア詳細
フロア詳細
7F 28.68坪 非公開 非公開 非公開 非公開
フロア詳細
フロア詳細
7F 158.67坪 非公開 非公開 非公開 非公開
フロア詳細
フロア詳細
7F 58.37坪 非公開 非公開 非公開 非公開
フロア詳細
フロア詳細
8F 243.56坪 非公開 非公開 非公開 非公開
フロア詳細
フロア詳細
10F 55.96坪 非公開 非公開 非公開 非公開
フロア詳細
フロア詳細
15F 223.24坪 非公開 非公開 非公開 非公開
フロア詳細
フロア詳細
空室情報や物件見学などお気軽にお問い合わせください。
ESTATE AGENCY
株式会社エステートエージェンシー
定休日:日曜日・祝日 営業時間:09:00~19:00
でお問い合わせ(無料メール 簡単1 電話でお問い合わせ(無料)
※貸主様からのご要望の為、条件を未公開としている場合がございます。詳しくお聞きになりたい場合は、弊社までご連絡ください。
※賃料、共益費、礼金、その他費用には別途消費税が掛かります。
※上記金額は募集条件です。条件交渉などについてはお気軽にお問い合わせください。
※確認時点での情報のため、リアルタイム情報はお問合せください。

タイム24の施設情報カテゴリ

1棟貸可能
駅直結
大型EV
大型駐車場
大通り沿い
傘いらず
貸会議室
空中店舗相談
ヴィンテージ・レトロ
シャワートイレ
セキュリティ
SOHO(住居兼事務所)
デザイナーズ・個性派
トイレ男女別
荷物EVあり
ハイグレードオフィス
ネット回線引込可
ビル内貸倉庫
免振・制振構造
有人警備
ランドマーク
リニューアル
フリースペース
レンタルオフィス
新耐震
駅近(出口
築浅
川沿い、公園沿い
自転車置場

自転車置場料金: ー 円

タイム24のアクセスマップ

空室情報や物件見学などお気軽にお問い合わせください。
ESTATE AGENCY
株式会社エステートエージェンシー
定休日:日曜日・祝日 営業時間:09:00~19:00
でお問い合わせ(無料メール 簡単1 電話でお問い合わせ(無料)