フロア詳細情報

BRエビスAK(東京都渋谷区広尾1丁目15番6号)のフロア情報

BRエビスAKのビル詳細を見る
空室状況はお電話一本でスムーズにご案内!まずはお気軽に0120-939-204へどうぞ。
でお問い合わせ(無料メール 簡単1
※上記の写真は人物等が映っている場合、修正・加工が施されています。
物件情報更新日: 2026/02/16

BRエビスAKの物件概要

ビル名
BRエビスAK
物件番号/物件ID 19017
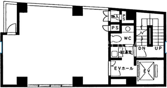
住所 東京都渋谷区広尾1丁目15番6号 面積(平米) 67.27㎡
最寄り駅
【最寄り駅1】

JR山手線 恵比寿駅  徒歩4分

【最寄り駅2】

東京メトロ日比谷線 恵比寿駅  徒歩4分

【最寄り駅3】

東急東横線 代官山駅  徒歩10分

【最寄り駅4】

東京メトロ日比谷線 広尾駅  徒歩12分

坪数 20.35坪
実行面積
空調 個別
竣工 1989年09月01日
構造 RC地上7階建地下0階
エレベーター基数 1 荷物用エレベーター基数
階数 地上 4階 退去日 退去日の詳細につきましては、お問い合わせください。
備考
ビル名
BRエビスAK
住所 19017
最寄り駅
【最寄り駅1】

JR山手線 恵比寿駅  徒歩4分

【最寄り駅2】

東京メトロ日比谷線 恵比寿駅  徒歩4分

【最寄り駅3】

東急東横線 代官山駅  徒歩10分

【最寄り駅4】

東京メトロ日比谷線 広尾駅  徒歩12分

エレベーター基数 1
階数 4階
物件番号/物件ID 19017
面積(平米) 67.27㎡
坪数 20.35坪
実行面積
空調 個別
竣工 1989年09月01日
構造 RC地上7階建地下0階
荷物用エレベーター基数
退去日 退去日の詳細につきましては、お問い合わせください。
備考

BRエビスAKの募集価格

総額 坪単価
賃料 非公開 賃料 非公開
共益費 非公開 共益費 非公開
月額合計 非公開 月額合計 非公開
保証金/敷金 非公開 保証金/敷金 非公開
礼金 非公開 礼金 非公開
賃料条件補足事項 償却2ヶ月/更新料1ヶ月
総額
賃料 非公開
共益費 非公開
月額合計 非公開
保証金/敷金 非公開
礼金 非公開
坪単価
賃料 非公開
共益費 非公開
月額合計 非公開
保証金/敷金 非公開
礼金 非公開
賃料条件補足事項 償却2ヶ月/更新料1ヶ月
空室情報や物件見学などお気軽にお問い合わせください。
ESTATE AGENCY
株式会社エステートエージェンシー
定休日:日曜日・祝日 営業時間:09:00~19:00
でお問い合わせ(無料メール 簡単1 電話でお問い合わせ(無料)

BRエビスAKの基本情報

インフォメーション
このBRエビスAKビルは住所東京都渋谷区広尾1丁目15番6号の1989年竣工、地上7階建の賃貸オフィスビルです。最寄駅は、JR山手線恵比寿駅徒歩4分のアクセス。設備情報はセキュリティ、光回線、部屋セキュリティ。是非一度ご内覧下さいませ! その他、事務所、オフィス移転、不動産の事なら何でもお気軽にご相談下さい。
※貸主様からのご要望の為、条件を未公開としている場合がございます。詳しくお聞きになりたい場合は、弊社までご連絡ください。
※賃料、共益費、礼金、その他費用には別途消費税が掛かります。
※上記金額は募集条件です。条件交渉などについてはお気軽にお問い合わせください。
※確認時点での情報のため、リアルタイム情報はお問合せください。

BRエビスAKの施設情報カテゴリ

1棟貸可能
駅直結
大型EV
大型駐車場
大通り沿い
傘いらず
貸会議室
空中店舗相談
ヴィンテージ・レトロ
シャワートイレ
セキュリティ
SOHO(住居兼事務所)
デザイナーズ・個性派
トイレ男女別
荷物EVあり
ハイグレードオフィス
ネット回線引込可
ビル内貸倉庫
免振・制振構造
有人警備
ランドマーク
リニューアル
フリースペース
レンタルオフィス
新耐震
駅近(出口
築浅
川沿い、公園沿い
自転車置場

自転車置場料金: ー 円

BRエビスAKのアクセスマップ

空室情報や物件見学などお気軽にお問い合わせください。
ESTATE AGENCY
株式会社エステートエージェンシー
定休日:日曜日・祝日 営業時間:09:00~19:00
でお問い合わせ(無料メール 簡単1 電話でお問い合わせ(無料)

よく似た物件