フロア詳細情報

パークリュクス銀座mono(東京都中央区銀座8丁目18番8号)のフロア情報

空室状況はお電話一本でスムーズにご案内!まずはお気軽に0120-939-204へどうぞ。
でお問い合わせ(無料メール 簡単1
※上記の写真は人物等が映っている場合、修正・加工が施されています。
物件情報更新日: 2026/05/08

パークリュクス銀座monoの物件概要

ビル名
パークリュクス銀座mono
物件番号/物件ID 25408
住所 東京都中央区銀座8丁目18番8号 面積(平米) 43.37㎡
最寄り駅
【最寄り駅1】

都営地下鉄大江戸線 築地市場駅  徒歩3分

【最寄り駅2】

都営地下鉄大江戸線 汐留駅  徒歩5分

【最寄り駅3】

都営地下鉄浅草線 東銀座駅  徒歩5分

【最寄り駅4】

東京メトロ日比谷線 東銀座駅  徒歩5分

坪数 13.12坪
実行面積
空調
竣工 2016年04月01日
構造 RC造地上13階建
エレベーター基数 荷物用エレベーター基数
階数 地上 6階 退去日 退去日の詳細につきましては、お問い合わせください。
備考
ビル名
パークリュクス銀座mono
住所 25408
最寄り駅
【最寄り駅1】

都営地下鉄大江戸線 築地市場駅  徒歩3分

【最寄り駅2】

都営地下鉄大江戸線 汐留駅  徒歩5分

【最寄り駅3】

都営地下鉄浅草線 東銀座駅  徒歩5分

【最寄り駅4】

東京メトロ日比谷線 東銀座駅  徒歩5分

エレベーター基数
階数 6階
物件番号/物件ID 25408
面積(平米) 43.37㎡
坪数 13.12坪
実行面積
空調
竣工 2016年04月01日
構造 RC造地上13階建
荷物用エレベーター基数
退去日 退去日の詳細につきましては、お問い合わせください。
備考

パークリュクス銀座monoの募集価格

総額 坪単価
賃料 381,819円 賃料 29,102円
共益費 0円 共益費 0円
月額合計 381,819円 月額合計 29,102円
保証金/敷金 381,819円 保証金/敷金 29,102円
礼金 381,819円 礼金 29,102円
賃料条件補足事項 償却:1ヶ月
総額
賃料 381,819円
共益費 0円
月額合計 381,819円
保証金/敷金 381,819円
礼金 381,819円
坪単価
賃料 29,102円
共益費 0円
月額合計 29,102円
保証金/敷金 29,102円
礼金 29,102円
賃料条件補足事項 償却:1ヶ月

パークリュクス銀座monoのその他空室情報

階数 広さ 賃料合計(税別) 坪単価 保証金・敷金 礼金
8F 13.12坪 381,818円 29,102円 381,818円 381,818円
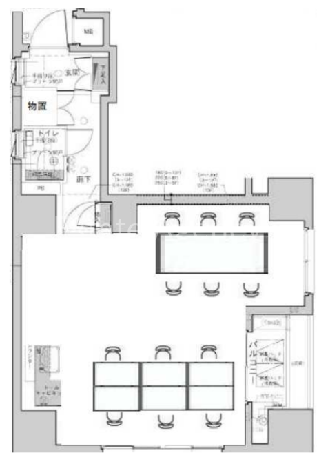
フロア詳細
フロア詳細
空室情報や物件見学などお気軽にお問い合わせください。
ESTATE AGENCY
株式会社エステートエージェンシー
定休日:日曜日・祝日 営業時間:09:00~19:00
でお問い合わせ(無料メール 簡単1 電話でお問い合わせ(無料)
※貸主様からのご要望の為、条件を未公開としている場合がございます。詳しくお聞きになりたい場合は、弊社までご連絡ください。
※賃料、共益費、礼金、その他費用には別途消費税が掛かります。
※上記金額は募集条件です。条件交渉などについてはお気軽にお問い合わせください。
※確認時点での情報のため、リアルタイム情報はお問合せください。

パークリュクス銀座monoの施設情報カテゴリ

1棟貸可能
駅直結
大型EV
大型駐車場
大通り沿い
傘いらず
貸会議室
空中店舗相談
ヴィンテージ・レトロ
シャワートイレ
セキュリティ
SOHO(住居兼事務所)
デザイナーズ・個性派
トイレ男女別
荷物EVあり
ハイグレードオフィス
ネット回線引込可
ビル内貸倉庫
免振・制振構造
有人警備
ランドマーク
リニューアル
フリースペース
レンタルオフィス
新耐震
駅近(出口
築浅
川沿い、公園沿い
自転車置場

自転車置場料金: ー 円

パークリュクス銀座monoのアクセスマップ

空室情報や物件見学などお気軽にお問い合わせください。
ESTATE AGENCY
株式会社エステートエージェンシー
定休日:日曜日・祝日 営業時間:09:00~19:00
でお問い合わせ(無料メール 簡単1 電話でお問い合わせ(無料)

申し訳ございません。
会員登録をお願い致します。

会員登録のメリット

  • 1、非公開物件情報のご紹介が可能です!
  • 2、ご希望条件をいただきましたら新着物件情報等を定期的に配信いたします!
  • 3、会員登録されたお客様にはご契約時に特別なプレゼントをご用意しております!
会員登録

※会員登録は同業者不可、メールアドレスは企業ドメインのみ
※GmailやYahooなどのフリーメールでは会員登録できないこともありますのでご了承ください。