
住所:東京都中央区晴海1丁目8番10号
先日ご紹介させて頂いたこちらの物件ですが、
小規模に分割した区画を中心に大変反響を呼んだ為、
ビル側で別フロアにて最小30坪~新しく区画形成を行いました!
今回はセットアップオフィスなども含まれる為、
写真付きで各区画をご紹介させて頂きます。
【ポイント】
都営地下鉄 大江戸線 勝どき駅 徒歩約7分の大型オフィスビル。
タワーX以外にもW・Y・Zの3棟があり、オフィス用途の建物としては合計4棟で構成される大型複合施設です。
今回も新しく区画を作られた後に内覧会に招いて頂き、
写真撮影もしてきましたのでレポートさせて頂きます。(2024年12月現在)
【アクセス・MAP】

★都営大江戸線・・・・・・・・・【勝どき駅】徒歩 約7分
★東京メトロ有楽町線・・・・・・【月島駅】徒歩 約12分
★都営バス ・・・・・・・・・・(往路)【晴海トリトンスクエア前】バス停下車 (復路)【晴海三丁目】バス停乗車
★晴海ライナー・・・・・・・・・【晴海トリトンスクエア】バス停乗降
★東京BRT・・・・・・・・・・・【晴海BRTターミナル】バス停乗降
【ビルスペック】
▲ 竣工年月日/耐震基準・・・・・・2001年4月(新耐震基準)
▲ 構造・・・・・・・・・・・・・・地上部SRC造
▲ ビル規模・・・・・・・・・・・・地上44階・地下4階・塔屋3階
▲ 述床面積・・・・・・・・・・・・約 37,900坪
▲ 基準階面積・・・・・・・・・・・約 543坪
▲ 建物用途/区分・・・・・・・・・・事務所・店舗etc.
※ビルパンフレットから引用
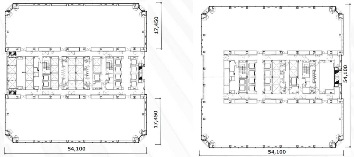
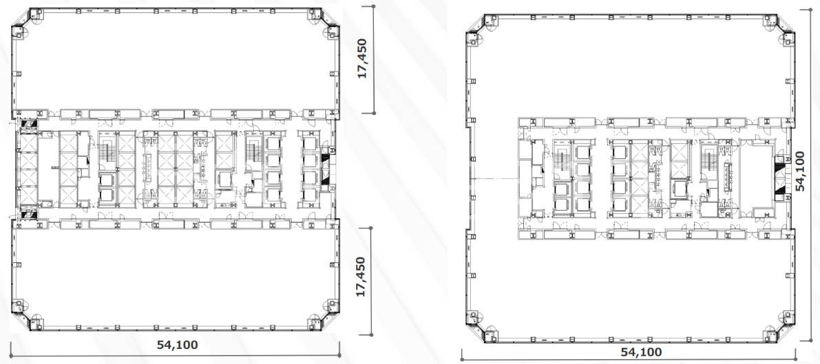
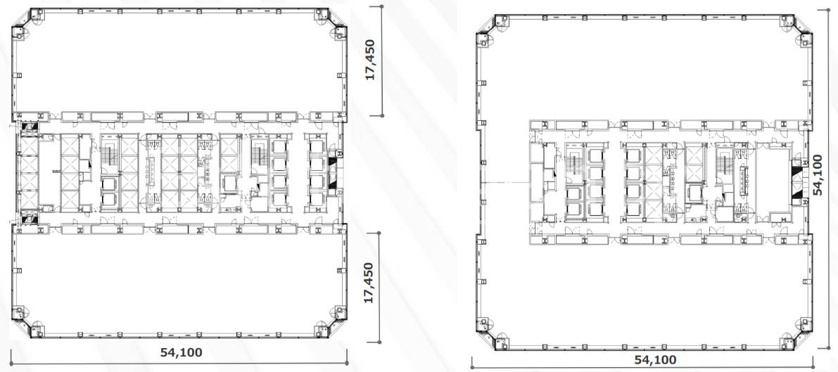
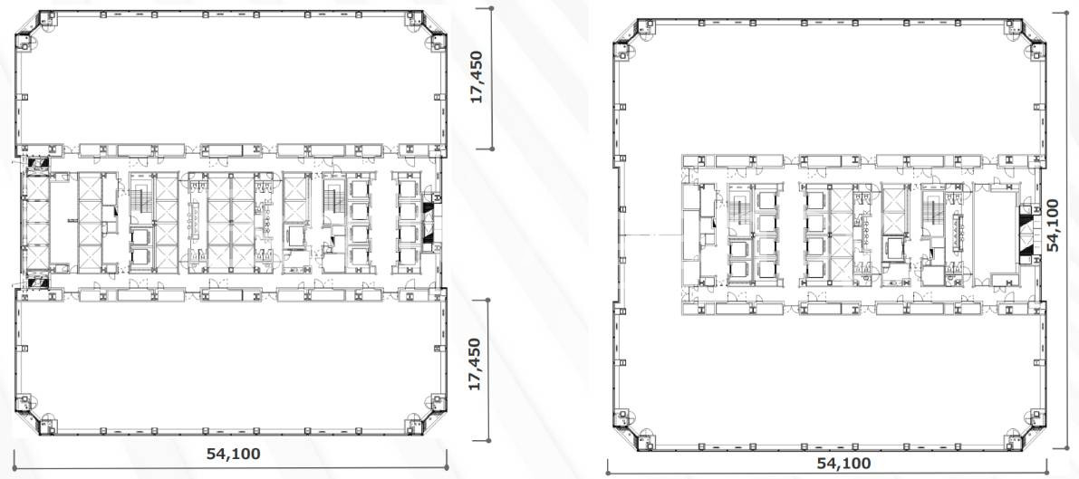
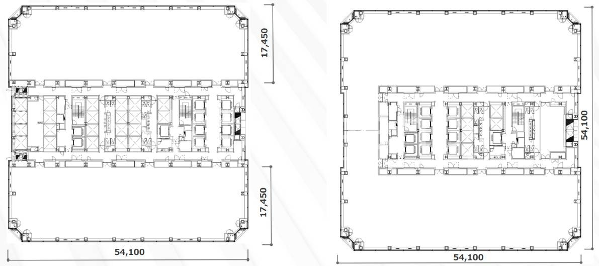
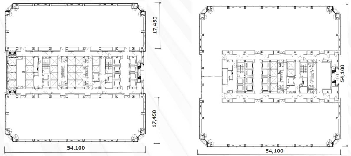
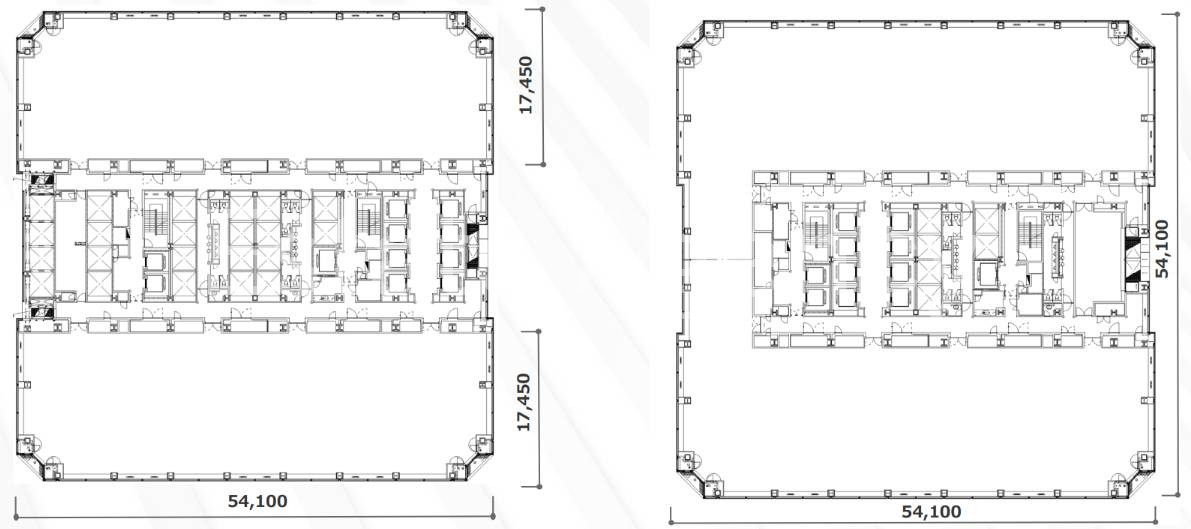
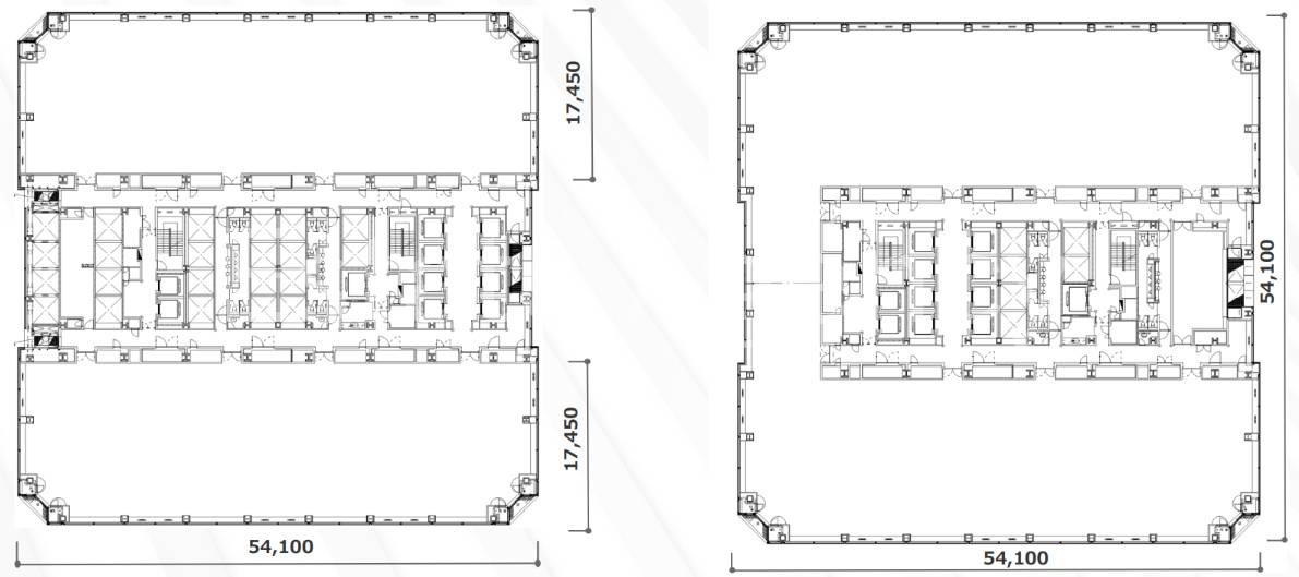
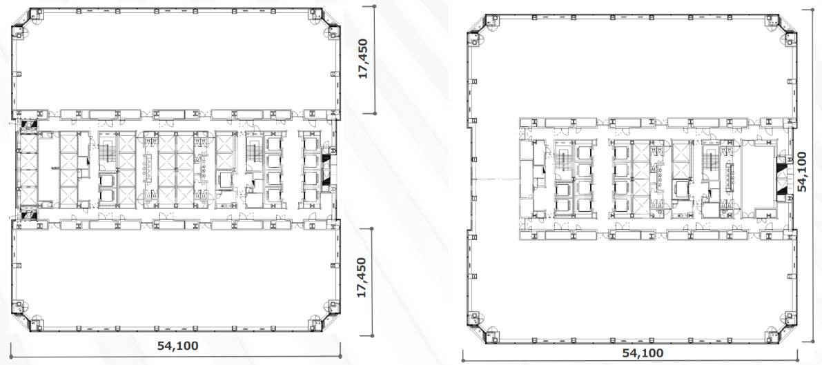
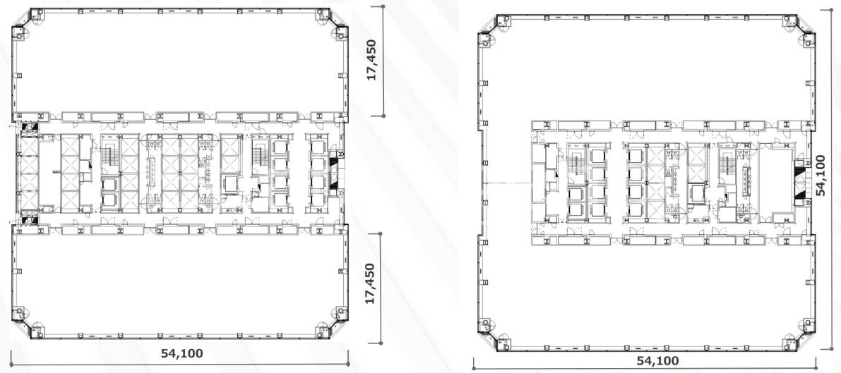
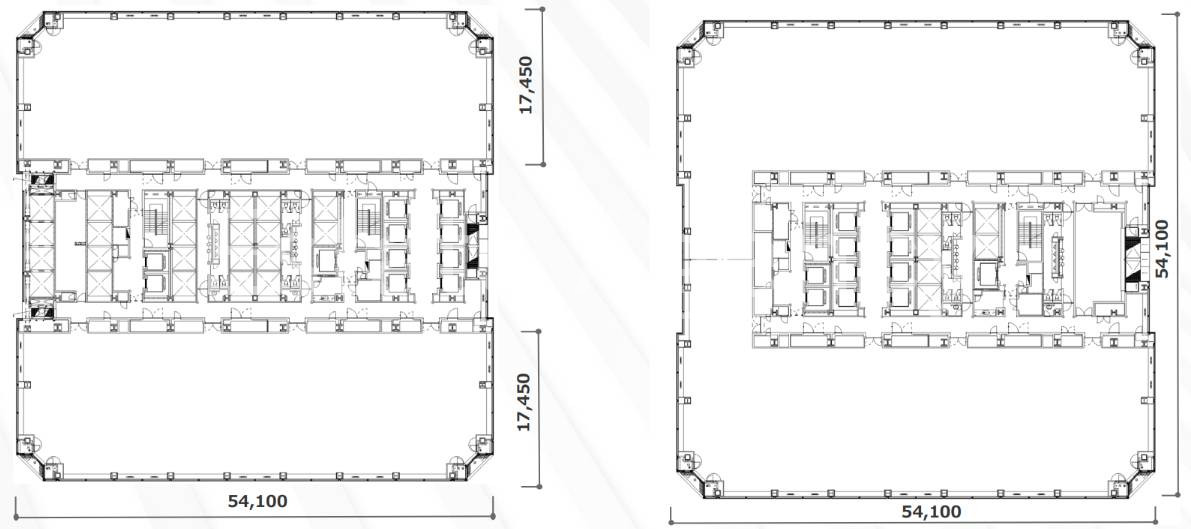
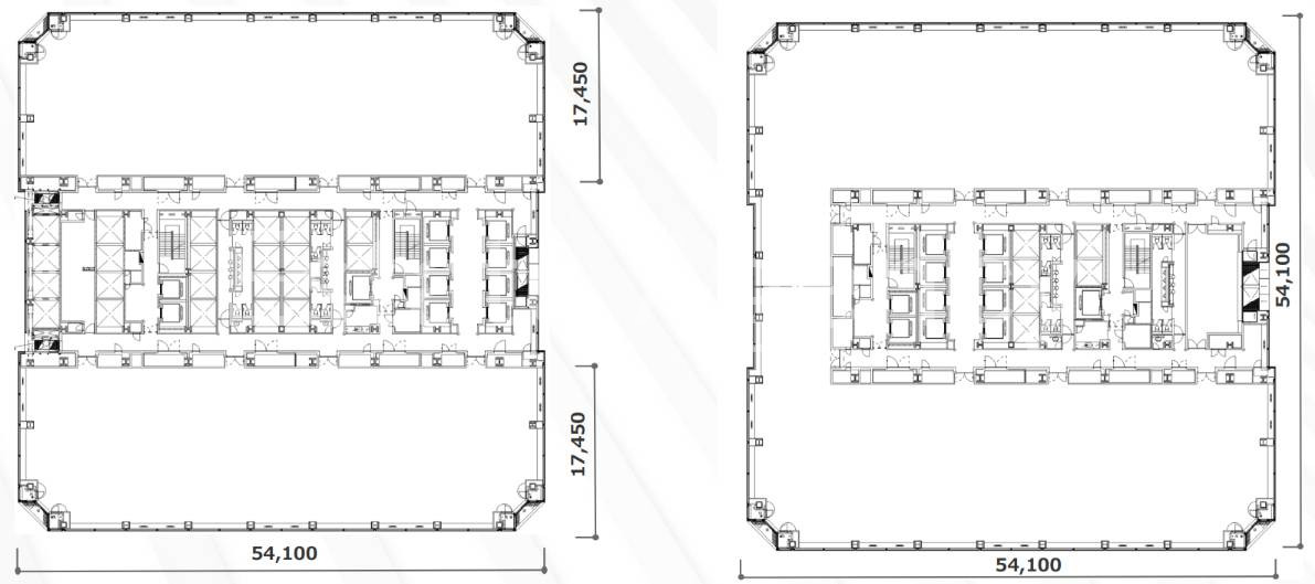
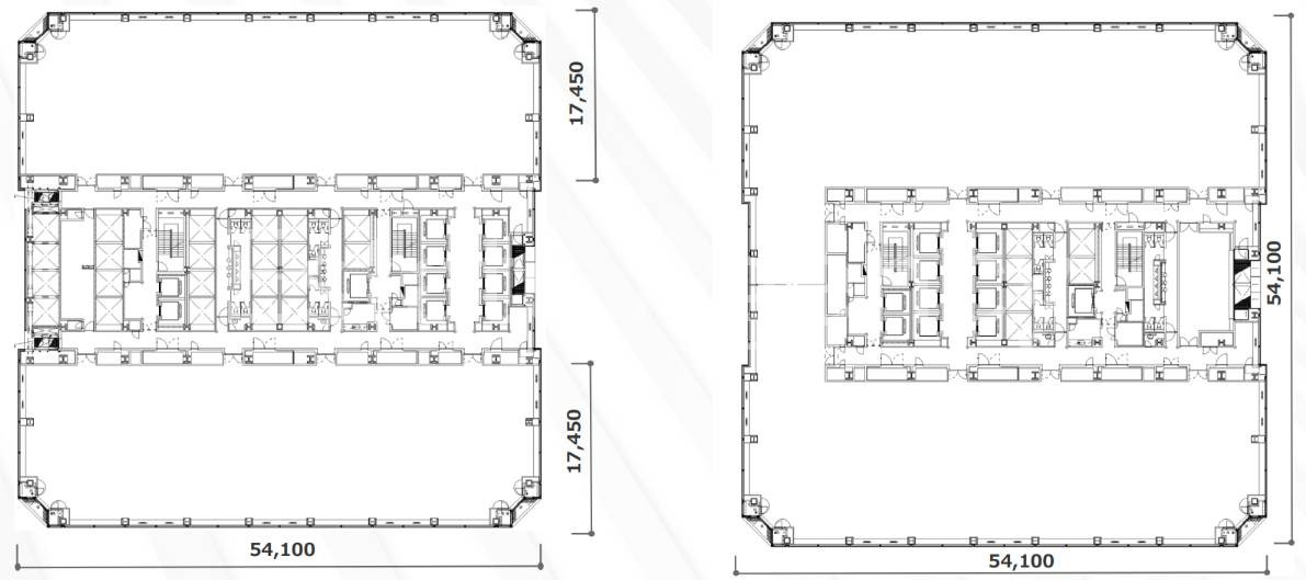
【基準階図面】

【建物設備/施設】
▲ エレベーター台数
乗用 30台・貨物用 3台
▲ セキュリティ
機械警備・有人警備 併用
▲ トイレ
共用部に有り(男女別・シャワートイレ)
▲ 共用設備 等
<1階>ラウンジ・ソロブース2室・貸会議室3室(18名用・30名用・54名用)・車寄せ









<2階>メインエントランス・ラウンジ



<5階>喫煙室・リフレッシュルーム有り

【室内設備】
▲ 集中空調(セントラル)
▲ OAフロア 有(100mm)
▲ 基準階天高 2,700mm(一部フロア3,000mm)
【レポート担当者コメント】
前回は2024年8月に大型リノベーション完了した状態にて見学をさせて頂きました。
今回も勝どき駅から徒歩で向かいました。
公式アクセス欄では徒歩7分と表記ありますが、
途中で動く歩道などがあることもあり体感では約5分程のイメージでした。
上記の各共用部や通常オフィス区画については前回記事をご覧頂き、
下記では今回新しく新設されたセットアップ区画などを中心にレポートいたします。
今回新しく分割したフロアはこちら。

北6区画、南6区画の合計12区画。
それぞれ約30坪~60坪くらいのサイズ感となっております。
予定も含めると凡そ半数の区画はセットアップオフィスとなっており、
面積帯も含めて更に様々なタイプの区画からお選び頂けるようになりました。
各区画の写真はこんな感じです。
<約30坪クラス①>





<約30坪クラス②>



<約50坪クラス①>


<約50坪クラス②>






また前回ご紹介させて頂いたような通常オフィス区画も募集継続しているものもございます!
ビル全体の空室も少なくなってきているので、
ご検討されている、ご興味が湧いてきたなどございましたらお気軽にお問い合わせください。
以上になります。
最後までお読み頂きありがとうございました!