フロア詳細情報

虎ノ門MT(東京都港区虎ノ門3丁目10番3号)のフロア情報

虎ノ門MTのビル詳細を見る
空室状況はお電話一本でスムーズにご案内!まずはお気軽に0120-939-204へどうぞ。
でお問い合わせ(無料メール 簡単1
※上記の写真は人物等が映っている場合、修正・加工が施されています。
物件情報更新日: 2026/02/05

虎ノ門MTの物件概要

ビル名
虎ノ門MT
物件番号/物件ID 8599
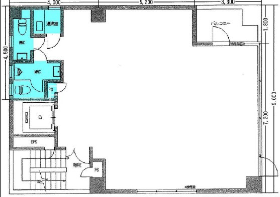
住所 東京都港区虎ノ門3丁目10番3号 面積(平米) 91.20㎡
最寄り駅
【最寄り駅1】

東京メトロ日比谷線 虎ノ門ヒルズ駅  徒歩4分

【最寄り駅2】

都営地下鉄三田線 御成門駅  徒歩7分

【最寄り駅3】

東京メトロ銀座線 虎ノ門駅  徒歩8分

【最寄り駅4】

東京メトロ南北線 六本木一丁目駅  徒歩10分

坪数 27.59坪
実行面積
空調 個別
竣工 1994年01月01日
構造 RC地上6階建
エレベーター基数 1 荷物用エレベーター基数
階数 地上 3階 退去日 退去日の詳細につきましては、お問い合わせください。
備考
ビル名
虎ノ門MT
住所 8599
最寄り駅
【最寄り駅1】

東京メトロ日比谷線 虎ノ門ヒルズ駅  徒歩4分

【最寄り駅2】

都営地下鉄三田線 御成門駅  徒歩7分

【最寄り駅3】

東京メトロ銀座線 虎ノ門駅  徒歩8分

【最寄り駅4】

東京メトロ南北線 六本木一丁目駅  徒歩10分

エレベーター基数 1
階数 3階
物件番号/物件ID 8599
面積(平米) 91.20㎡
坪数 27.59坪
実行面積
空調 個別
竣工 1994年01月01日
構造 RC地上6階建
荷物用エレベーター基数
退去日 退去日の詳細につきましては、お問い合わせください。
備考

虎ノ門MTの募集価格

総額 坪単価
賃料 371,182円 賃料 13,454円
共益費 82,500円 共益費 2,991円
月額合計 453,682円 月額合計 16,445円
保証金/敷金 3,711,820円 保証金/敷金 134,535円
礼金 0円 礼金 0円
賃料条件補足事項 償却費2ヶ月 2年契約
総額
賃料 371,182円
共益費 82,500円
月額合計 453,682円
保証金/敷金 3,711,820円
礼金 0円
坪単価
賃料 13,454円
共益費 2,991円
月額合計 16,445円
保証金/敷金 134,535円
礼金 0円
賃料条件補足事項 償却費2ヶ月 2年契約

虎ノ門MTのその他空室情報

階数 広さ 賃料合計(税別) 坪単価 保証金・敷金 礼金
2F 27.59坪 453,750円 16,447円 3,712,500円 0円
フロア詳細
フロア詳細
2F 27.59坪 371,181円 13,454円 3,711,810円 非公開
フロア詳細
フロア詳細
空室情報や物件見学などお気軽にお問い合わせください。
ESTATE AGENCY
株式会社エステートエージェンシー
定休日:日曜日・祝日 営業時間:09:00~19:00
でお問い合わせ(無料メール 簡単1 電話でお問い合わせ(無料)
※貸主様からのご要望の為、条件を未公開としている場合がございます。詳しくお聞きになりたい場合は、弊社までご連絡ください。
※賃料、共益費、礼金、その他費用には別途消費税が掛かります。
※上記金額は募集条件です。条件交渉などについてはお気軽にお問い合わせください。
※確認時点での情報のため、リアルタイム情報はお問合せください。

虎ノ門MTの施設情報カテゴリ

1棟貸可能
駅直結
大型EV
大型駐車場
大通り沿い
傘いらず
貸会議室
空中店舗相談
ヴィンテージ・レトロ
シャワートイレ
セキュリティ
SOHO(住居兼事務所)
デザイナーズ・個性派
トイレ男女別
荷物EVあり
ハイグレードオフィス
ネット回線引込可
ビル内貸倉庫
免振・制振構造
有人警備
ランドマーク
リニューアル
フリースペース
レンタルオフィス
新耐震
駅近(出口
築浅
川沿い、公園沿い
自転車置場

自転車置場料金: ー 円

虎ノ門MTのアクセスマップ

空室情報や物件見学などお気軽にお問い合わせください。
ESTATE AGENCY
株式会社エステートエージェンシー
定休日:日曜日・祝日 営業時間:09:00~19:00
でお問い合わせ(無料メール 簡単1 電話でお問い合わせ(無料)