フロア詳細情報

新麻布十番(東京都港区麻布十番2丁目3番5号)のフロア情報

新麻布十番のビル詳細を見る
空室状況はお電話一本でスムーズにご案内!まずはお気軽に0120-939-204へどうぞ。
でお問い合わせ(無料メール 簡単1
※上記の写真は人物等が映っている場合、修正・加工が施されています。
物件情報更新日: 2026/05/25

新麻布十番の物件概要

ビル名
新麻布十番
物件番号/物件ID 26343
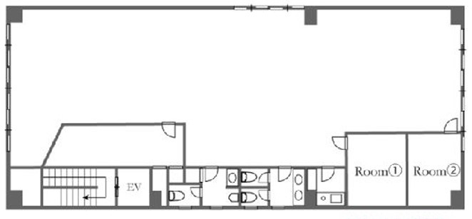
住所 東京都港区麻布十番2丁目3番5号 面積(平米) 158.44㎡
最寄り駅
【最寄り駅1】

都営地下鉄大江戸線 麻布十番駅  徒歩1分

【最寄り駅2】

東京メトロ南北線 麻布十番駅  徒歩2分

【最寄り駅3】

都営地下鉄大江戸線 赤羽橋駅  徒歩10分

【最寄り駅4】

東京メトロ日比谷線 六本木駅  徒歩11分

坪数 47.93坪
実行面積
空調 個別
竣工 1971年12月01日
構造 RC造地上6階建地下0階
エレベーター基数 1 荷物用エレベーター基数
階数 地上 2階 退去日 退去日の詳細につきましては、お問い合わせください。
備考
ビル名
新麻布十番
住所 26343
最寄り駅
【最寄り駅1】

都営地下鉄大江戸線 麻布十番駅  徒歩1分

【最寄り駅2】

東京メトロ南北線 麻布十番駅  徒歩2分

【最寄り駅3】

都営地下鉄大江戸線 赤羽橋駅  徒歩10分

【最寄り駅4】

東京メトロ日比谷線 六本木駅  徒歩11分

エレベーター基数 1
階数 2階
物件番号/物件ID 26343
面積(平米) 158.44㎡
坪数 47.93坪
実行面積
空調 個別
竣工 1971年12月01日
構造 RC造地上6階建地下0階
荷物用エレベーター基数
退去日 退去日の詳細につきましては、お問い合わせください。
備考

新麻布十番の募集価格

総額 坪単価
賃料 814,810円 賃料 17,000円
共益費 200,000円 共益費 4,173円
月額合計 1,014,810円 月額合計 21,173円
保証金/敷金 5,703,670円 保証金/敷金 119,000円
礼金 0円 礼金 0円
賃料条件補足事項
総額
賃料 814,810円
共益費 200,000円
月額合計 1,014,810円
保証金/敷金 5,703,670円
礼金 0円
坪単価
賃料 17,000円
共益費 4,173円
月額合計 21,173円
保証金/敷金 119,000円
礼金 0円
賃料条件補足事項
空室情報や物件見学などお気軽にお問い合わせください。
ESTATE AGENCY
株式会社エステートエージェンシー
定休日:日曜日・祝日 営業時間:09:00~19:00
でお問い合わせ(無料メール 簡単1 電話でお問い合わせ(無料)
※貸主様からのご要望の為、条件を未公開としている場合がございます。詳しくお聞きになりたい場合は、弊社までご連絡ください。
※賃料、共益費、礼金、その他費用には別途消費税が掛かります。
※上記金額は募集条件です。条件交渉などについてはお気軽にお問い合わせください。
※確認時点での情報のため、リアルタイム情報はお問合せください。

新麻布十番の施設情報カテゴリ

1棟貸可能
駅直結
大型EV
大型駐車場
大通り沿い
傘いらず
貸会議室
空中店舗相談
ヴィンテージ・レトロ
シャワートイレ
セキュリティ
SOHO(住居兼事務所)
デザイナーズ・個性派
トイレ男女別
荷物EVあり
ハイグレードオフィス
ネット回線引込可
ビル内貸倉庫
免振・制振構造
有人警備
ランドマーク
リニューアル
フリースペース
レンタルオフィス
新耐震
駅近(出口
築浅
川沿い、公園沿い
自転車置場

自転車置場料金: ー 円

新麻布十番のアクセスマップ

空室情報や物件見学などお気軽にお問い合わせください。
ESTATE AGENCY
株式会社エステートエージェンシー
定休日:日曜日・祝日 営業時間:09:00~19:00
でお問い合わせ(無料メール 簡単1 電話でお問い合わせ(無料)

最近チェックした物件

申し訳ございません。
会員登録をお願い致します。

会員登録のメリット

  • 1、非公開物件情報のご紹介が可能です!
  • 2、ご希望条件をいただきましたら新着物件情報等を定期的に配信いたします!
  • 3、会員登録されたお客様にはご契約時に特別なプレゼントをご用意しております!
会員登録

※会員登録は同業者不可、メールアドレスは企業ドメインのみ
※GmailやYahooなどのフリーメールでは会員登録できないこともありますのでご了承ください。