フロア詳細情報

麻布ネスト(東京都港区元麻布3丁目10番23号)のフロア情報

麻布ネストのビル詳細を見る
空室状況はお電話一本でスムーズにご案内!まずはお気軽に0120-939-204へどうぞ。
でお問い合わせ(無料メール 簡単1
※上記の写真は人物等が映っている場合、修正・加工が施されています。
物件情報更新日: 2025/12/01

麻布ネストの物件概要

ビル名
麻布ネスト
物件番号/物件ID 8782
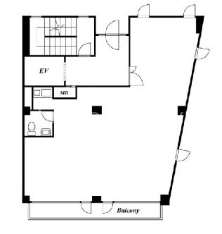
住所 東京都港区元麻布3丁目10番23号 面積(平米) 82.61㎡
最寄り駅
【最寄り駅1】

東京メトロ南北線 麻布十番駅  徒歩5分

【最寄り駅2】

東京メトロ日比谷線 六本木駅  徒歩8分

【最寄り駅3】

東京メトロ日比谷線 広尾駅  徒歩13分

【最寄り駅4】

都営地下鉄大江戸線 麻布十番駅  徒歩5分

坪数 24.99坪
実行面積
空調 個別
竣工 1989年06月01日
構造 RC地上5階建地下1階
エレベーター基数 1 荷物用エレベーター基数
階数 地上 2階 退去日 退去日の詳細につきましては、お問い合わせください。
備考 住居兼事務所契約(賃料課税は有)
ビル名
麻布ネスト
住所 8782
最寄り駅
【最寄り駅1】

東京メトロ南北線 麻布十番駅  徒歩5分

【最寄り駅2】

東京メトロ日比谷線 六本木駅  徒歩8分

【最寄り駅3】

東京メトロ日比谷線 広尾駅  徒歩13分

【最寄り駅4】

都営地下鉄大江戸線 麻布十番駅  徒歩5分

エレベーター基数 1
階数 2階
物件番号/物件ID 8782
面積(平米) 82.61㎡
坪数 24.99坪
実行面積
空調 個別
竣工 1989年06月01日
構造 RC地上5階建地下1階
荷物用エレベーター基数
退去日 退去日の詳細につきましては、お問い合わせください。
備考 住居兼事務所契約(賃料課税は有)

麻布ネストの募集価格

総額 坪単価
賃料 399,909円 賃料 16,003円
共益費 0円 共益費 0円
月額合計 399,909円 月額合計 16,003円
保証金/敷金 2,399,454円 保証金/敷金 96,017円
礼金 0円 礼金 0円
賃料条件補足事項 保証会社加入要、火災保険加入要、償却1ヶ月、更新料1ヶ月
総額
賃料 399,909円
共益費 0円
月額合計 399,909円
保証金/敷金 2,399,454円
礼金 0円
坪単価
賃料 16,003円
共益費 0円
月額合計 16,003円
保証金/敷金 96,017円
礼金 0円
賃料条件補足事項 保証会社加入要、火災保険加入要、償却1ヶ月、更新料1ヶ月
空室情報や物件見学などお気軽にお問い合わせください。
ESTATE AGENCY
株式会社エステートエージェンシー
定休日:日曜日・祝日 営業時間:09:00~19:00
でお問い合わせ(無料メール 簡単1 電話でお問い合わせ(無料)

麻布ネストの基本情報

インフォメーション
この麻布ネストビルは住所東京都港区元麻布3丁目10番23号の1989年竣工、地上5階建の賃貸オフィスビルです。最寄駅は、東京メトロ南北線麻布十番駅徒歩5分のアクセス。設備情報はセキュリティ、SOHO(住居兼事務所)、保証会社加入義務あり、部屋セキュリティ。是非一度ご内覧下さいませ! その他、事務所、オフィス移転、不動産の事なら何でもお気軽にご相談下さい。
※貸主様からのご要望の為、条件を未公開としている場合がございます。詳しくお聞きになりたい場合は、弊社までご連絡ください。
※賃料、共益費、礼金、その他費用には別途消費税が掛かります。
※上記金額は募集条件です。条件交渉などについてはお気軽にお問い合わせください。

麻布ネストの施設情報カテゴリ

1棟貸可能
駅直結
大型EV
大型駐車場
大通り沿い
傘いらず
貸会議室
空中店舗相談
ヴィンテージ・レトロ
シャワートイレ
セキュリティ
SOHO(住居兼事務所)
デザイナーズ・個性派
トイレ男女別
荷物EVあり
ハイグレードオフィス
ネット回線引込可
ビル内貸倉庫
免振・制振構造
有人警備
ランドマーク
リニューアル
フリースペース
レンタルオフィス
新耐震
駅近(出口
築浅
川沿い、公園沿い
自転車置場

自転車置場料金: ー 円

麻布ネストのアクセスマップ

空室情報や物件見学などお気軽にお問い合わせください。
ESTATE AGENCY
株式会社エステートエージェンシー
定休日:日曜日・祝日 営業時間:09:00~19:00
でお問い合わせ(無料メール 簡単1 電話でお問い合わせ(無料)

よく似た物件