フロア詳細情報

SDI五反田(東京都品川区西五反田7丁目13番6号)のフロア情報

SDI五反田のビル詳細を見る
空室状況はお電話一本でスムーズにご案内!まずはお気軽に0120-939-204へどうぞ。
でお問い合わせ(無料メール 簡単1
※上記の写真は人物等が映っている場合、修正・加工が施されています。
物件情報更新日: 2026/04/06

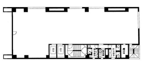
SDI五反田の物件概要

ビル名
SDI五反田
物件番号/物件ID 3368
住所 東京都品川区西五反田7丁目13番6号 面積(平米) 239.63㎡
最寄り駅
【最寄り駅1】

JR山手線 五反田駅  徒歩7分

【最寄り駅2】

JR山手線 大崎駅  徒歩10分

【最寄り駅3】

都営地下鉄浅草線 五反田駅  徒歩8分

【最寄り駅4】

東急池上線 大崎広小路駅  徒歩2分

坪数 72.49坪
実行面積
空調 個別
竣工 1990年06月01日
構造 SRC造地上10階建
エレベーター基数 2 荷物用エレベーター基数
階数 地上 3階 退去日 退去日の詳細につきましては、お問い合わせください。
備考
ビル名
SDI五反田
住所 3368
最寄り駅
【最寄り駅1】

JR山手線 五反田駅  徒歩7分

【最寄り駅2】

JR山手線 大崎駅  徒歩10分

【最寄り駅3】

都営地下鉄浅草線 五反田駅  徒歩8分

【最寄り駅4】

東急池上線 大崎広小路駅  徒歩2分

エレベーター基数 2
階数 3階
物件番号/物件ID 3368
面積(平米) 239.63㎡
坪数 72.49坪
実行面積
空調 個別
竣工 1990年06月01日
構造 SRC造地上10階建
荷物用エレベーター基数
退去日 退去日の詳細につきましては、お問い合わせください。
備考

SDI五反田の募集価格

総額 坪単価
賃料 869,909円 賃料 12,001円
共益費 144,980円 共益費 2,001円
月額合計 1,014,889円 月額合計 14,002円
保証金/敷金 5,219,454円 保証金/敷金 72,003円
礼金 869,909円 礼金 12,001円
賃料条件補足事項 更新料なし
総額
賃料 869,909円
共益費 144,980円
月額合計 1,014,889円
保証金/敷金 5,219,454円
礼金 869,909円
坪単価
賃料 12,001円
共益費 2,001円
月額合計 14,002円
保証金/敷金 72,003円
礼金 12,001円
賃料条件補足事項 更新料なし
空室情報や物件見学などお気軽にお問い合わせください。
ESTATE AGENCY
株式会社エステートエージェンシー
定休日:日曜日・祝日 営業時間:09:00~19:00
でお問い合わせ(無料メール 簡単1 電話でお問い合わせ(無料)
※貸主様からのご要望の為、条件を未公開としている場合がございます。詳しくお聞きになりたい場合は、弊社までご連絡ください。
※賃料、共益費、礼金、その他費用には別途消費税が掛かります。
※上記金額は募集条件です。条件交渉などについてはお気軽にお問い合わせください。
※確認時点での情報のため、リアルタイム情報はお問合せください。

SDI五反田の施設情報カテゴリ

1棟貸可能
駅直結
大型EV
大型駐車場
大通り沿い
傘いらず
貸会議室
空中店舗相談
ヴィンテージ・レトロ
シャワートイレ
セキュリティ
SOHO(住居兼事務所)
デザイナーズ・個性派
トイレ男女別
荷物EVあり
ハイグレードオフィス
ネット回線引込可
ビル内貸倉庫
免振・制振構造
有人警備
ランドマーク
リニューアル
フリースペース
レンタルオフィス
新耐震
駅近(出口
築浅
川沿い、公園沿い
自転車置場

自転車置場料金: ー 円

SDI五反田のアクセスマップ

空室情報や物件見学などお気軽にお問い合わせください。
ESTATE AGENCY
株式会社エステートエージェンシー
定休日:日曜日・祝日 営業時間:09:00~19:00
でお問い合わせ(無料メール 簡単1 電話でお問い合わせ(無料)

申し訳ございません。
会員登録をお願い致します。

会員登録のメリット

  • 1、非公開物件情報のご紹介が可能です!
  • 2、ご希望条件をいただきましたら新着物件情報等を定期的に配信いたします!
  • 3、会員登録されたお客様にはご契約時に特別なプレゼントをご用意しております!
会員登録

※会員登録は同業者不可、メールアドレスは企業ドメインのみ
※GmailやYahooなどのフリーメールでは会員登録できないこともありますのでご了承ください。