フロア詳細情報

(株)ほうらいやビル本館新館(東京都港区六本木5丁目2番1号)のフロア情報

空室状況はお電話一本でスムーズにご案内!まずはお気軽に0120-939-204へどうぞ。
でお問い合わせ(無料メール 簡単1
※上記の写真は人物等が映っている場合、修正・加工が施されています。
物件情報更新日: 2025/08/05

(株)ほうらいやビル本館新館の物件概要

ビル名
(株)ほうらいやビル本館新館
物件番号/物件ID 9175
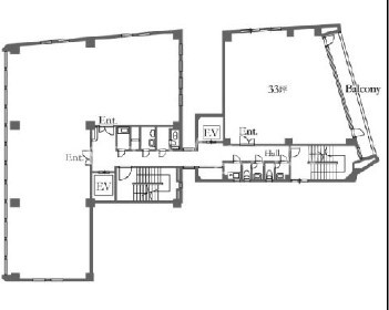
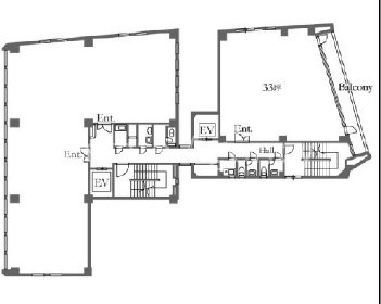
住所 東京都港区六本木5丁目2番1号 面積(平米) 109.09㎡
最寄り駅
【最寄り駅1】

東京メトロ日比谷線 六本木駅  徒歩3分

【最寄り駅2】

東京メトロ南北線 六本木一丁目駅  徒歩8分

【最寄り駅3】

都営地下鉄大江戸線 麻布十番駅  徒歩9分

【最寄り駅4】

東京メトロ千代田線 乃木坂駅  徒歩10分

坪数 33.00坪
実行面積
空調 個別
竣工 1972年09月01日
構造 SRC地上9階建地下1階
エレベーター基数 2 荷物用エレベーター基数
階数 地上 6階 退去日 退去日の詳細につきましては、お問い合わせください。
備考
ビル名
(株)ほうらいやビル本館新館
住所 9175
最寄り駅
【最寄り駅1】

東京メトロ日比谷線 六本木駅  徒歩3分

【最寄り駅2】

東京メトロ南北線 六本木一丁目駅  徒歩8分

【最寄り駅3】

都営地下鉄大江戸線 麻布十番駅  徒歩9分

【最寄り駅4】

東京メトロ千代田線 乃木坂駅  徒歩10分

エレベーター基数 2
階数 6階
物件番号/物件ID 9175
面積(平米) 109.09㎡
坪数 33.00坪
実行面積
空調 個別
竣工 1972年09月01日
構造 SRC地上9階建地下1階
荷物用エレベーター基数
退去日 退去日の詳細につきましては、お問い合わせください。
備考

(株)ほうらいやビル本館新館の募集価格

総額 坪単価
賃料 700,000円 賃料 21,213円
共益費 0円 共益費 0円
月額合計 700,000円 月額合計 21,213円
保証金/敷金 4,200,000円 保証金/敷金 127,273円
礼金 0円 礼金 0円
賃料条件補足事項 定期借家契約:3年、更新料無・償却1ヶ月、保証会社加入義務有
総額
賃料 700,000円
共益費 0円
月額合計 700,000円
保証金/敷金 4,200,000円
礼金 0円
坪単価
賃料 21,213円
共益費 0円
月額合計 21,213円
保証金/敷金 127,273円
礼金 0円
賃料条件補足事項 定期借家契約:3年、更新料無・償却1ヶ月、保証会社加入義務有

(株)ほうらいやビル本館新館のその他空室情報

階数 広さ 賃料合計(税別) 坪単価 保証金・敷金 礼金
4F 64.43坪 1,100,013円 17,073円 6,600,078円 0円
フロア詳細
フロア詳細
3F 33.00坪 700,000円 21,213円 4,200,000円 0円
フロア詳細
フロア詳細
6F 33.97坪 860,000円 25,317円 5,160,000円 0円
フロア詳細
フロア詳細
空室情報や物件見学などお気軽にお問い合わせください。
ESTATE AGENCY
株式会社エステートエージェンシー
定休日:日曜日・祝日 営業時間:09:00~19:00
でお問い合わせ(無料メール 簡単1 電話でお問い合わせ(無料)

(株)ほうらいやビル本館新館の基本情報

インフォメーション
このほうらいやビルは住所東京都港区六本木2番1号の1972年竣工、地上9階建の賃貸オフィスビルです。最寄駅は、東京メトロ日比谷線六本木駅徒歩3分のアクセス。設備情報は大通り沿い、貸会議室、セキュリティ、トイレ男女別、24時間利用可能、光回線、有人警備、OAフロア、部屋セキュリティ。是非一度ご内覧下さいませ! その他、事務所、オフィス移転、不動産の事なら何でもお気軽にご相談下さい。
※貸主様からのご要望の為、条件を未公開としている場合がございます。詳しくお聞きになりたい場合は、弊社までご連絡ください。
※賃料、共益費、礼金、その他費用には別途消費税が掛かります。
※上記金額は募集条件です。条件交渉などについてはお気軽にお問い合わせください。

(株)ほうらいやビル本館新館の施設情報カテゴリ

1棟貸可能
駅直結
大型EV
大型駐車場
大通り沿い
傘いらず
貸会議室
空中店舗相談
ヴィンテージ・レトロ
シャワートイレ
セキュリティ
SOHO(住居兼事務所)
デザイナーズ・個性派
トイレ男女別
荷物EVあり
ハイグレードオフィス
ネット回線引込可
ビル内貸倉庫
免振・制振構造
有人警備
ランドマーク
リニューアル
フリースペース
レンタルオフィス
新耐震
駅近(出口
築浅
川沿い、公園沿い
自転車置場

自転車置場料金: ー 円

(株)ほうらいやビル本館新館のアクセスマップ

空室情報や物件見学などお気軽にお問い合わせください。
ESTATE AGENCY
株式会社エステートエージェンシー
定休日:日曜日・祝日 営業時間:09:00~19:00
でお問い合わせ(無料メール 簡単1 電話でお問い合わせ(無料)

よく似た物件