フロア詳細情報

霊南坂(東京都港区赤坂1丁目14番2号)のフロア情報

霊南坂のビル詳細を見る
空室状況はお電話一本でスムーズにご案内!まずはお気軽に0120-939-204へどうぞ。
でお問い合わせ(無料メール 簡単1
※上記の写真は人物等が映っている場合、修正・加工が施されています。
物件情報更新日: 2026/02/17

霊南坂の物件概要

ビル名
霊南坂
物件番号/物件ID 8889
住所 東京都港区赤坂1丁目14番2号 面積(平米) 104.00㎡
最寄り駅
【最寄り駅1】

東京メトロ南北線 六本木一丁目駅  徒歩4分

【最寄り駅2】

東京メトロ日比谷線 神谷町駅  徒歩7分

【最寄り駅3】

東京メトロ銀座線 溜池山王駅  徒歩9分

【最寄り駅4】

東京メトロ千代田線 赤坂駅  徒歩9分

坪数 31.46坪
実行面積
空調 個別
竣工 1975年01月01日
構造 SRC地上7階建地下0階
エレベーター基数 1 荷物用エレベーター基数
階数 地上 3階 退去日 退去日の詳細につきましては、お問い合わせください。
備考
ビル名
霊南坂
住所 8889
最寄り駅
【最寄り駅1】

東京メトロ南北線 六本木一丁目駅  徒歩4分

【最寄り駅2】

東京メトロ日比谷線 神谷町駅  徒歩7分

【最寄り駅3】

東京メトロ銀座線 溜池山王駅  徒歩9分

【最寄り駅4】

東京メトロ千代田線 赤坂駅  徒歩9分

エレベーター基数 1
階数 3階
物件番号/物件ID 8889
面積(平米) 104.00㎡
坪数 31.46坪
実行面積
空調 個別
竣工 1975年01月01日
構造 SRC地上7階建地下0階
荷物用エレベーター基数
退去日 退去日の詳細につきましては、お問い合わせください。
備考

霊南坂の募集価格

総額 坪単価
賃料 500,000円 賃料 15,894円
共益費 0円 共益費 0円
月額合計 500,000円 月額合計 15,894円
保証金/敷金 3,000,000円 保証金/敷金 95,360円
礼金 0円 礼金 0円
賃料条件補足事項 定期借家契約:3年(再契約相談)、更新料1ヶ月、償却無
総額
賃料 500,000円
共益費 0円
月額合計 500,000円
保証金/敷金 3,000,000円
礼金 0円
坪単価
賃料 15,894円
共益費 0円
月額合計 15,894円
保証金/敷金 95,360円
礼金 0円
賃料条件補足事項 定期借家契約:3年(再契約相談)、更新料1ヶ月、償却無

霊南坂のその他空室情報

階数 広さ 賃料合計(税別) 坪単価 保証金・敷金 礼金
4F 31.46坪 500,000円 15,894円 3,000,000円 0円
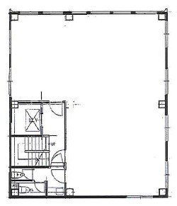
フロア詳細
フロア詳細
空室情報や物件見学などお気軽にお問い合わせください。
ESTATE AGENCY
株式会社エステートエージェンシー
定休日:日曜日・祝日 営業時間:09:00~19:00
でお問い合わせ(無料メール 簡単1 電話でお問い合わせ(無料)

霊南坂の基本情報

インフォメーション
この霊南坂ビルは住所東京都港区赤坂1丁目14番2号の1975年竣工、地上7階建の賃貸オフィスビルです。最寄駅は、東京メトロ南北線六本木一丁目駅徒歩4分のアクセス。設備情報はトイレ男女別、1フロア1テナント。是非一度ご内覧下さいませ! その他、事務所、オフィス移転、不動産の事なら何でもお気軽にご相談下さい。
※貸主様からのご要望の為、条件を未公開としている場合がございます。詳しくお聞きになりたい場合は、弊社までご連絡ください。
※賃料、共益費、礼金、その他費用には別途消費税が掛かります。
※上記金額は募集条件です。条件交渉などについてはお気軽にお問い合わせください。
※確認時点での情報のため、リアルタイム情報はお問合せください。

霊南坂の施設情報カテゴリ

1棟貸可能
駅直結
大型EV
大型駐車場
大通り沿い
傘いらず
貸会議室
空中店舗相談
ヴィンテージ・レトロ
シャワートイレ
セキュリティ
SOHO(住居兼事務所)
デザイナーズ・個性派
トイレ男女別
荷物EVあり
ハイグレードオフィス
ネット回線引込可
ビル内貸倉庫
免振・制振構造
有人警備
ランドマーク
リニューアル
フリースペース
レンタルオフィス
新耐震
駅近(出口
築浅
川沿い、公園沿い
自転車置場

自転車置場料金: ー 円

霊南坂のアクセスマップ

空室情報や物件見学などお気軽にお問い合わせください。
ESTATE AGENCY
株式会社エステートエージェンシー
定休日:日曜日・祝日 営業時間:09:00~19:00
でお問い合わせ(無料メール 簡単1 電話でお問い合わせ(無料)

よく似た物件

最近チェックした物件