フロア詳細情報

Daiwa麻布台(東京都港区麻布台2丁目3番3号)のフロア情報

Daiwa麻布台のビル詳細を見る
空室状況はお電話一本でスムーズにご案内!まずはお気軽に0120-939-204へどうぞ。
でお問い合わせ(無料メール 簡単1
※上記の写真は人物等が映っている場合、修正・加工が施されています。
物件情報更新日: 2026/01/05

Daiwa麻布台の物件概要

ビル名
Daiwa麻布台
物件番号/物件ID 1408
住所 東京都港区麻布台2丁目3番3号 面積(平米) 119.17㎡
最寄り駅
【最寄り駅1】

東京メトロ日比谷線 神谷町駅  徒歩6分

【最寄り駅2】

都営地下鉄大江戸線 赤羽橋駅  徒歩6分

【最寄り駅3】

東京メトロ南北線 麻布十番駅  徒歩9分

【最寄り駅4】

都営地下鉄三田線 御成門駅  徒歩11分

坪数 36.05坪
実行面積
空調 個別
竣工 1984年02月01日
構造 SRC地上9階建地下2階
エレベーター基数 1 荷物用エレベーター基数
階数 地上 2階 退去日 退去日の詳細につきましては、お問い合わせください。
備考
ビル名
Daiwa麻布台
住所 1408
最寄り駅
【最寄り駅1】

東京メトロ日比谷線 神谷町駅  徒歩6分

【最寄り駅2】

都営地下鉄大江戸線 赤羽橋駅  徒歩6分

【最寄り駅3】

東京メトロ南北線 麻布十番駅  徒歩9分

【最寄り駅4】

都営地下鉄三田線 御成門駅  徒歩11分

エレベーター基数 1
階数 2階
物件番号/物件ID 1408
面積(平米) 119.17㎡
坪数 36.05坪
実行面積
空調 個別
竣工 1984年02月01日
構造 SRC地上9階建地下2階
荷物用エレベーター基数
退去日 退去日の詳細につきましては、お問い合わせください。
備考

Daiwa麻布台の募集価格

総額 坪単価
賃料 非公開 賃料 非公開
共益費 非公開 共益費 非公開
月額合計 非公開 月額合計 非公開
保証金/敷金 非公開 保証金/敷金 非公開
礼金 非公開 礼金 非公開
賃料条件補足事項 契約期間3年、日商保加入にてイニシャルコスト削減相談可
総額
賃料 非公開
共益費 非公開
月額合計 非公開
保証金/敷金 非公開
礼金 非公開
坪単価
賃料 非公開
共益費 非公開
月額合計 非公開
保証金/敷金 非公開
礼金 非公開
賃料条件補足事項 契約期間3年、日商保加入にてイニシャルコスト削減相談可
空室情報や物件見学などお気軽にお問い合わせください。
ESTATE AGENCY
株式会社エステートエージェンシー
定休日:日曜日・祝日 営業時間:09:00~19:00
でお問い合わせ(無料メール 簡単1 電話でお問い合わせ(無料)

Daiwa麻布台の基本情報

インフォメーション
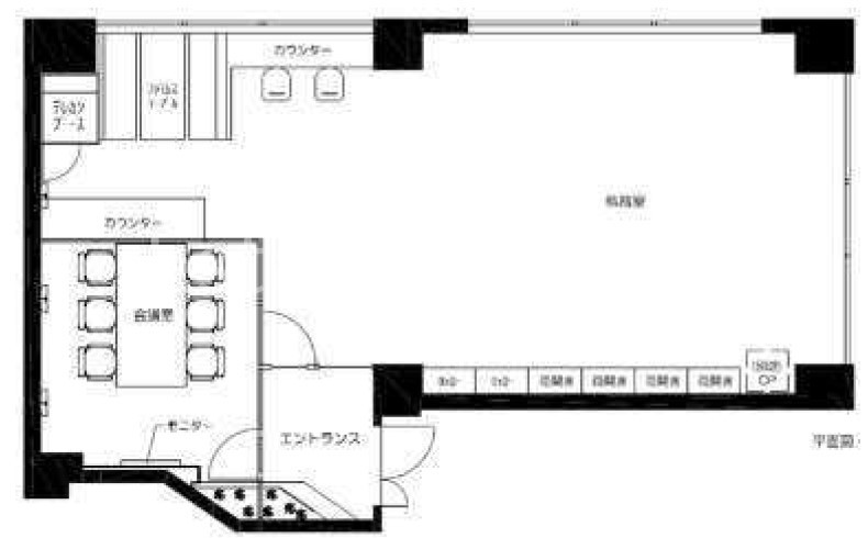
このDaiwa麻布台ビルは住所東京都港区麻布台2丁目3番3号の1984年竣工、地上9階建の賃貸オフィスビルです。最寄駅は、東京メトロ日比谷線神谷町駅徒歩6分のアクセス。設備情報はセキュリティ、トイレ男女別、24時間利用可能、光回線、部屋セキュリティ。是非一度ご内覧下さいませ! その他、事務所、オフィス移転、不動産の事なら何でもお気軽にご相談下さい。
※貸主様からのご要望の為、条件を未公開としている場合がございます。詳しくお聞きになりたい場合は、弊社までご連絡ください。
※賃料、共益費、礼金、その他費用には別途消費税が掛かります。
※上記金額は募集条件です。条件交渉などについてはお気軽にお問い合わせください。
※確認時点での情報のため、リアルタイム情報はお問合せください。

Daiwa麻布台の施設情報カテゴリ

1棟貸可能
駅直結
大型EV
大型駐車場
大通り沿い
傘いらず
貸会議室
空中店舗相談
ヴィンテージ・レトロ
シャワートイレ
セキュリティ
SOHO(住居兼事務所)
デザイナーズ・個性派
トイレ男女別
荷物EVあり
ハイグレードオフィス
ネット回線引込可
ビル内貸倉庫
免振・制振構造
有人警備
ランドマーク
リニューアル
フリースペース
レンタルオフィス
新耐震
駅近(出口
築浅
川沿い、公園沿い
自転車置場

自転車置場料金: ー 円

Daiwa麻布台のアクセスマップ

空室情報や物件見学などお気軽にお問い合わせください。
ESTATE AGENCY
株式会社エステートエージェンシー
定休日:日曜日・祝日 営業時間:09:00~19:00
でお問い合わせ(無料メール 簡単1 電話でお問い合わせ(無料)