フロア詳細情報

第3虎ノ門電気ビルディング(東京都港区虎ノ門1丁目2番20号)のフロア情報

空室状況はお電話一本でスムーズにご案内!まずはお気軽に0120-939-204へどうぞ。
でお問い合わせ(無料メール 簡単1
※上記の写真は人物等が映っている場合、修正・加工が施されています。
物件情報更新日: 2026/02/02

第3虎ノ門電気ビルディングの物件概要

ビル名
第3虎ノ門電気ビルディング
物件番号/物件ID 8593
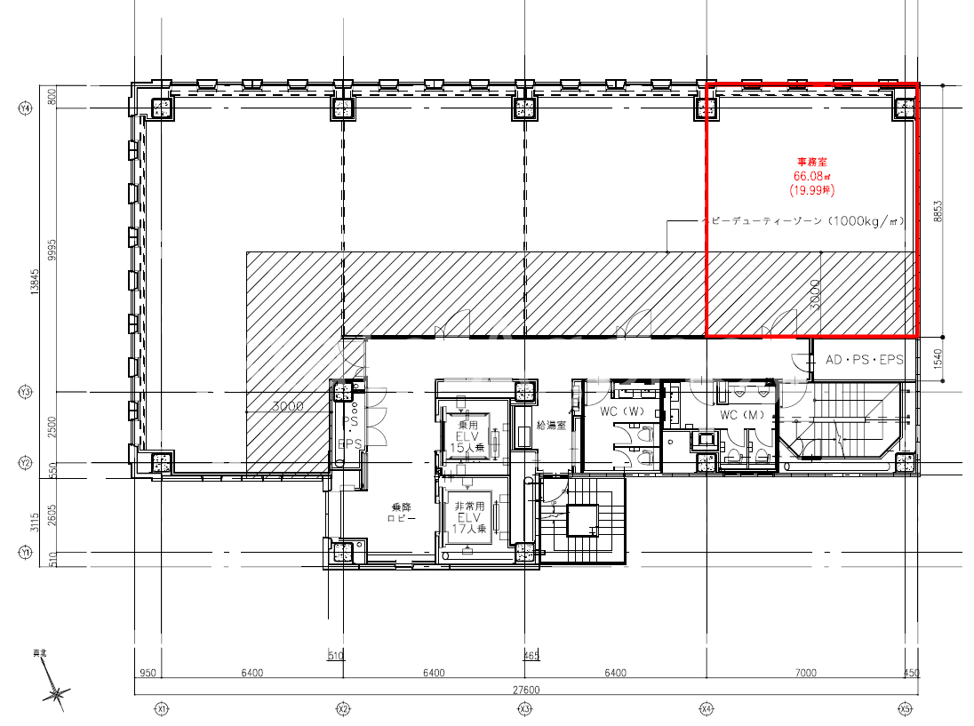
住所 東京都港区虎ノ門1丁目2番20号 面積(平米) 66.08㎡
最寄り駅
【最寄り駅1】

東京メトロ銀座線 虎ノ門駅  徒歩3分

【最寄り駅2】

東京メトロ丸ノ内線 国会議事堂前駅  徒歩7分

【最寄り駅3】

東京メトロ千代田線 国会議事堂前駅  徒歩7分

【最寄り駅4】

東京メトロ日比谷線 虎ノ門ヒルズ駅  徒歩7分

坪数 19.99坪
実行面積 100.00%
空調 個別
竣工 2013年02月01日
構造 鉄骨地上12階建地下1階
エレベーター基数 2 荷物用エレベーター基数
階数 地上 11階 退去日 退去日の詳細につきましては、お問い合わせください。
備考 2026年1月入居可能予定
ビル名
第3虎ノ門電気ビルディング
住所 8593
最寄り駅
【最寄り駅1】

東京メトロ銀座線 虎ノ門駅  徒歩3分

【最寄り駅2】

東京メトロ丸ノ内線 国会議事堂前駅  徒歩7分

【最寄り駅3】

東京メトロ千代田線 国会議事堂前駅  徒歩7分

【最寄り駅4】

東京メトロ日比谷線 虎ノ門ヒルズ駅  徒歩7分

エレベーター基数 2
階数 11階
物件番号/物件ID 8593
面積(平米) 66.08㎡
坪数 19.99坪
実行面積 100.00%
空調 個別
竣工 2013年02月01日
構造 鉄骨地上12階建地下1階
荷物用エレベーター基数
退去日 退去日の詳細につきましては、お問い合わせください。
備考 2026年1月入居可能予定

第3虎ノ門電気ビルディングの募集価格

総額 坪単価
賃料 非公開 賃料 非公開
共益費 非公開 共益費 非公開
月額合計 非公開 月額合計 非公開
保証金/敷金 非公開 保証金/敷金 非公開
礼金 非公開 礼金 非公開
賃料条件補足事項 償却・更新料無、礼金無し、定借(期間相談)
総額
賃料 非公開
共益費 非公開
月額合計 非公開
保証金/敷金 非公開
礼金 非公開
坪単価
賃料 非公開
共益費 非公開
月額合計 非公開
保証金/敷金 非公開
礼金 非公開
賃料条件補足事項 償却・更新料無、礼金無し、定借(期間相談)

第3虎ノ門電気ビルディングのその他空室情報

階数 広さ 賃料合計(税別) 坪単価 保証金・敷金 礼金
6F 85.02坪 非公開 非公開 非公開 非公開
フロア詳細
フロア詳細
空室情報や物件見学などお気軽にお問い合わせください。
ESTATE AGENCY
株式会社エステートエージェンシー
定休日:日曜日・祝日 営業時間:09:00~19:00
でお問い合わせ(無料メール 簡単1 電話でお問い合わせ(無料)

第3虎ノ門電気ビルディングの基本情報

インフォメーション
この第3虎ノ門電気ビルディングビルは住所東京都港区虎ノ門1丁目2番20号の2013年竣工、地上12階建の賃貸オフィスビルです。最寄駅は、東京メトロ銀座線虎ノ門駅徒歩3分のアクセス。設備情報は表玄関OPEN(土曜日)、シャワートイレ、セキュリティ、トイレ男女別、24時間利用可能、光回線、保証会社加入義務あり、免振・制振、OAフロア、天井高2.6以上、部屋セキュリティ。是非一度ご内覧下さいませ! その他、事務所、オフィス移転、不動産の事なら何でもお気軽にご相談下さい。
※貸主様からのご要望の為、条件を未公開としている場合がございます。詳しくお聞きになりたい場合は、弊社までご連絡ください。
※賃料、共益費、礼金、その他費用には別途消費税が掛かります。
※上記金額は募集条件です。条件交渉などについてはお気軽にお問い合わせください。

第3虎ノ門電気ビルディングの施設情報カテゴリ

1棟貸可能
駅直結
大型EV
大型駐車場
大通り沿い
傘いらず
貸会議室
空中店舗相談
ヴィンテージ・レトロ
シャワートイレ
セキュリティ
SOHO(住居兼事務所)
デザイナーズ・個性派
トイレ男女別
荷物EVあり
ハイグレードオフィス
ネット回線引込可
ビル内貸倉庫
免振・制振構造
有人警備
ランドマーク
リニューアル
フリースペース
レンタルオフィス
新耐震
駅近(出口
築浅
川沿い、公園沿い
自転車置場

自転車置場料金: ー 円

第3虎ノ門電気ビルディングのアクセスマップ

空室情報や物件見学などお気軽にお問い合わせください。
ESTATE AGENCY
株式会社エステートエージェンシー
定休日:日曜日・祝日 営業時間:09:00~19:00
でお問い合わせ(無料メール 簡単1 電話でお問い合わせ(無料)

最近チェックした物件