フロア詳細情報

不動前MK(東京都品川区西五反田5丁目6番30号)のフロア情報

不動前MKのビル詳細を見る
空室状況はお電話一本でスムーズにご案内!まずはお気軽に0120-939-204へどうぞ。
でお問い合わせ(無料メール 簡単1
※上記の写真は人物等が映っている場合、修正・加工が施されています。
物件情報更新日: 2025/12/02

不動前MKの物件概要

ビル名
不動前MK
物件番号/物件ID 25109
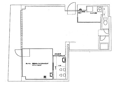
住所 東京都品川区西五反田5丁目6番30号 面積(平米) 76.36㎡
最寄り駅
【最寄り駅1】

JR山手線 五反田駅  徒歩11分

【最寄り駅2】

東急目黒線 不動前駅  徒歩3分

【最寄り駅3】

東急池上線 大崎広小路駅  徒歩9分

【最寄り駅4】

東急池上線 戸越銀座駅  徒歩12分

坪数 23.10坪
実行面積
空調
竣工 1993年06月01日
構造 鉄骨地上3階建地下0階
エレベーター基数 荷物用エレベーター基数
階数 地上 1階 退去日 退去日の詳細につきましては、お問い合わせください。
備考
ビル名
不動前MK
住所 25109
最寄り駅
【最寄り駅1】

JR山手線 五反田駅  徒歩11分

【最寄り駅2】

東急目黒線 不動前駅  徒歩3分

【最寄り駅3】

東急池上線 大崎広小路駅  徒歩9分

【最寄り駅4】

東急池上線 戸越銀座駅  徒歩12分

エレベーター基数
階数 1階
物件番号/物件ID 25109
面積(平米) 76.36㎡
坪数 23.10坪
実行面積
空調
竣工 1993年06月01日
構造 鉄骨地上3階建地下0階
荷物用エレベーター基数
退去日 退去日の詳細につきましては、お問い合わせください。
備考

不動前MKの募集価格

総額 坪単価
賃料 369,636円 賃料 16,002円
共益費 0円 共益費 0円
月額合計 369,636円 月額合計 16,002円
保証金/敷金 2,957,088円 保証金/敷金 128,013円
礼金 369,636円 礼金 16,002円
賃料条件補足事項
総額
賃料 369,636円
共益費 0円
月額合計 369,636円
保証金/敷金 2,957,088円
礼金 369,636円
坪単価
賃料 16,002円
共益費 0円
月額合計 16,002円
保証金/敷金 128,013円
礼金 16,002円
賃料条件補足事項
空室情報や物件見学などお気軽にお問い合わせください。
ESTATE AGENCY
株式会社エステートエージェンシー
定休日:日曜日・祝日 営業時間:09:00~19:00
でお問い合わせ(無料メール 簡単1 電話でお問い合わせ(無料)
※貸主様からのご要望の為、条件を未公開としている場合がございます。詳しくお聞きになりたい場合は、弊社までご連絡ください。
※賃料、共益費、礼金、その他費用には別途消費税が掛かります。
※上記金額は募集条件です。条件交渉などについてはお気軽にお問い合わせください。
※確認時点での情報のため、リアルタイム情報はお問合せください。

不動前MKの施設情報カテゴリ

1棟貸可能
駅直結
大型EV
大型駐車場
大通り沿い
傘いらず
貸会議室
空中店舗相談
ヴィンテージ・レトロ
シャワートイレ
セキュリティ
SOHO(住居兼事務所)
デザイナーズ・個性派
トイレ男女別
荷物EVあり
ハイグレードオフィス
ネット回線引込可
ビル内貸倉庫
免振・制振構造
有人警備
ランドマーク
リニューアル
フリースペース
レンタルオフィス
新耐震
駅近(出口
築浅
川沿い、公園沿い
自転車置場

自転車置場料金: ー 円

不動前MKのアクセスマップ

空室情報や物件見学などお気軽にお問い合わせください。
ESTATE AGENCY
株式会社エステートエージェンシー
定休日:日曜日・祝日 営業時間:09:00~19:00
でお問い合わせ(無料メール 簡単1 電話でお問い合わせ(無料)

よく似た物件