
住所:東京都千代田区神田神保町1丁目28番1号
【ポイント】
都営地下鉄・東京メトロ各線 神保町駅 徒歩3分の新築オフィスビル。
今回内覧会に参加させて頂き、写真撮影もしてきましたのでレポートさせて頂きます。(2024年10月現在)
【アクセス・MAP】

★都営地下鉄三田線・・・・・・・・・【神保町駅】徒歩 約3分
★都営地下鉄新宿線・・・・・・・・・【神保町駅】徒歩 約3分
★東京メトロ半蔵門線・・・・・・・・【神保町駅】徒歩 約3分
★JR中央快速線・・・・・・・・・・【御茶ノ水駅】徒歩 約9分
【ビルスペック】
▲ 竣工年月日/耐震基準・・・・・・・2023年8月(新耐震基準)
▲ 構造・・・・・・・・・・・・・・S造(鉄骨造)
▲ ビル規模・・・・・・・・・・・・地上14階
▲ 述床面積・・・・・・・・・・・・約 1,172.74坪
▲ 基準階面積・・・・・・・・・・・約 79.27坪
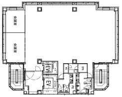
【基準階図面】

【建物設備/施設】
▲ エレベーター台数
2基(11人乗・17人乗)
▲ セキュリティ
機械警備
▲ トイレ
専有部に有り(男女別・シャワートイレ)
▲ 共用部写真 等
<1階>
エントランス


<基準階>
EVホール

<屋上テラス>


【室内設備】
▲ 個別空調
▲ OAフロア 有(40mm)
▲ 基準階天高 梁上3,285mm、梁下2,500mm
▲ 机上平均照度:500Lx
【レポート担当者コメント】
2023年8月に神保町エリアに竣工した新築オフィスビル。
基準階面積 約80坪、通常フロア・セットアップオフィスフロアと分かれて募集中です。
セットアップオフィスについては3種類のレイアウトがあり、
空室状況によっては好きなレイアウトをお選び頂けるようになっております。
◆セットアップ タイプA




◆セットアップ タイプB




◆セットアップ タイプC




以上になります。
最後までお読み頂きありがとうございました!
次回もお付き合い下さい◎